查看完整案例


收藏

下载
Studio Jencquel是一家位于印度尼西亚艺术和文化之都乌布的国际精品设计工作室,由创始人Maximilian Jencquel成立于2010年。工作室借鉴了慢速设计的原则,注重通过建筑、家具和室内设计的和谐构成。创始人Maximilian Jencquel从南美、北美、欧洲和东南亚的不同文化影响出发,与客户展开了一段个人旅程,设计过程的每个部分都有其目的,并讲述了一个独特的故事。
△Maximilian Jencquel
Maximilian Jencquel 于1978年出生于南美的委内瑞拉,精通英语,西班牙语,法语,德语和印尼语。曾为迈阿密著名的电影制片人Jerry Bruckheimer设计私宅。2006年加入Christian Liaigre在巴黎的工作室,2010前往巴厘岛后就深深爱上了这里的人文与自然,2011年在巴厘岛成立Studio Jencquel工作室,Maximilian对本地建筑和热带景观充满了热情,这源于他在委内瑞拉的童年。而今天,这些正是他充沛创造力的源泉。
在巴厘岛生活与工作十年,Maximilian Jencquel 喜欢与本地的工匠研究工艺,尽管东西方文化差异巨大,而且印尼工匠与西方工匠有一个最大的不同就是,印尼工匠至今依然使用一些非常原始而简单的工具,而且也不怎么会使用电脑绘图。在这个过程,他需要克服很多困难,但同时也学到了很多设计师的新技艺。
2010年,Maximilian Jencquel在印度尼西亚旅行后决定离开巴黎,在那里他发现了与巴厘岛的文化和艺术中心乌布发自内心的联系。在成立了Jencquel工作室后,Maximilian Jencquel现在追求他对乡土建筑和热带景观的热情,这些灵感来自他在委内瑞拉的童年。如今,它们是他创造力的DNA。
为了保持周围世界的物理元素和社会元素之间的和谐感,Studio Jencquel 在创造过程的每个部分中进行了深刻的个人旅程通过借鉴“慢设计”的原则,利用适应性、可持续的设计方法,Jencquel工作室寻求与材料和物理结构的丰富意义和独特的情感联系。
Studio Jencquel
Rumah Fajar
Rumah Fajar在印尼语中的意思是“黎明之家”,是对传统巴厘长屋的现代建筑诠释。该住宅拥有巴厘岛最神圣的火山Gunung Agung的壮观景色,其设计和材料的选择浸透了当地的乡土气息。Jencquel工作室于2017年8月开始建设,与Gunung Agung火山爆发同时进行,并于两年后的2019年8月完成建设。
火山石的大量使用代表了完成设计的寓意元素,在其阴影中缠绕着巨大的火山和“大亭子”。天衣无缝地坐落在郁郁葱葱的山坡上,面对着冉冉升起的太阳,豪华的4居室鲁玛法贾尔提出了一个简陋的住所,毕竟不是那么简陋。
Studio Jencquel
Idyllic Villa in Bali
位于印尼巴厘岛的一座田园别墅,由当地的室内设计工作室Studio Jencquel设计,并将其填充以天然木材、竹子、黄麻和芦苇。该建筑位于茂密丛林之上的一座小山上。由于意识到保护雨林的重要性,Jencquel设计了这个房子,所以没有一棵树会受到伤害。
Studio Jencquel
Umah Hati Villa
Umah Hati(宁静的心)是一个低调和谦逊的私人别墅,但也是一个微妙的大胆混合,连接了西方和东方。它与环境无缝融合,给人一种大客舱的感觉——但更珍贵的是。Jencquel工作室负责该项目的建筑和室内设计,该项目位于巴厘岛乌布郊区的Sayan。使用高质量的材料和复杂的工艺,Umah Hati充分利用了它的环境和背景,从房子的中心散发宁静到周围的环境。
Studio Jencquel
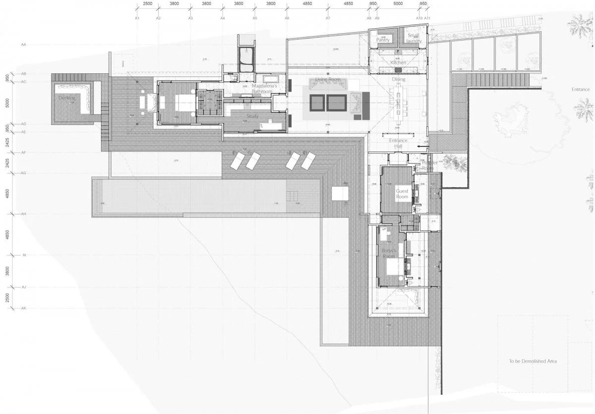
Rumah Hujan
Rumah Hujan主要是一个私人住宅,由Jencquel工作室从整体上构思——建筑、室内和景观。别墅坐落在Tjampuhan山脊的边缘,俯瞰着沃斯河上郁郁葱葱的热带山谷。该物业被丰富的自然环境包围,因此需要认真的规划和景观考虑,所有的树木保持不变,土地保持原状。该房产面积2400平方米,房子本身的地板面积约300平方米。
外部有广泛的室外露台,和一个15米x 4米的盐水无限游泳池。房子的东侧满足了一定的功能需求,例如对环境开放,同时仍然允许一种舒适的保护感。
Studio Jencquel
Hartland Estate
Hartland是一个私人庄园,坐落在印度尼西亚巴厘岛风景秀丽的Sayan的山坡上,面积约6200平方米。与建筑师Yew Kuan Cheong一起,Maximilian Jencquel设计了一个豪华的热带住宅。Linda Garland的乡土风格和Axel Vervoordt的“Wabi”精神都是最初的灵感的一部分。场地规划是松散和有机的,有5间平房无缝地融入周围的风景。
客服
消息
收藏
下载
最近









































































































































