查看完整案例


收藏

下载
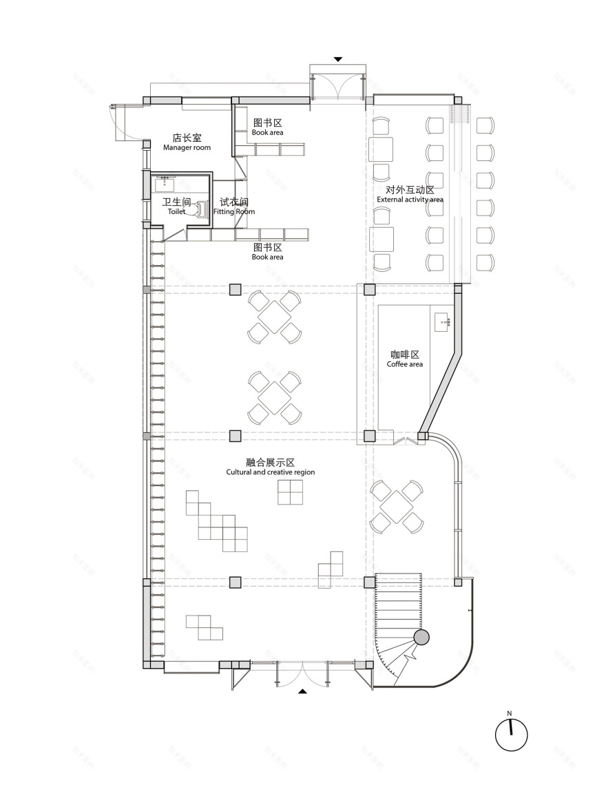
循着青春河畔,漫步于华东理工大学徐汇校区内,项目坐落在河、桥、路的交汇处,晨园(艺术与传媒学院)与图书馆分列西北,原建筑是两层四坡顶老旧小楼。作为校园历史环境中视线与流线聚焦的重要节点,学校希望其更新后是兼有“书店、咖啡、文创、沙龙”等复合功能的校园重要公共空间,名为“陇上书店”(晨园店)。
▼陇上书店两面临河,三面临街,点亮校园
在当下校园历史环境的更新中,仅仅风貌统一与功能实用已不能满足未来校园的空间需求。身为教育者与设计者,我们一直在思考如何更新并构建一个面向未来的大学校园,让开放、共享、复合的校园环境促进科艺融合,达成环境育人的目标。
▼陇上新生
改造教育公共空间的实践或许更需要感知力与艺术性的介入,因循场地势能,梳理场所记忆,在有限的创新框架中,营造一个尽染艺术、文化与记忆的空间容器,一个无边界交流互动的非正式学习场所。探索如何与校园肌理融合,界面如何以不同语言与校园室外环境互动,创造一个激发大学社区活力的空间媒介。
▼艺术气息渗透到理工校园
03.场地记忆
初入场地时,残破现状中充满仪式感的旋转楼梯触动人心,它驻于街角环视青春河畔,凝结了廿年华理人的集体记忆。但鲜有人踏上楼梯走上二层,原建筑的金属坡顶低矮且结构损坏,仅作仓库使用。一层空间隔墙多,采光差。因此在提升空间与结构品质之余,我们以光为媒介重塑场所记忆。
▼改造策略
04.光之容器
Vessel of Light
建筑容纳着光,如同乐器捕捉音乐,“梯、墙、顶、窗”作为基本的建筑元素,在此处以光为媒介,转译内外语境的空间艺术装置。趣味性和艺术性的植入,让光影在虚实之间与身体产生互动。
▼捕捉光的容器
梯——包裹身体的光 Stairs – the light that wraps the body
原混凝土旋转楼梯虽破旧,却在河畔与道路转角处,如雕塑般凝集了一个时期的集体记忆。为梳理流线同时重塑记忆,我们将其结构转换为室内钢楼梯,赋予“华理蓝”的色彩属性,并在外侧界面以双层 U 型玻璃构筑半透轻盈的介质。
▼轻盈的 U 玻,工业感的钢楼梯,手工感的梁柱
内观,U 玻的物质性近乎消失,只留下由光演奏的琴弦;拾级而上,与时幻化的温柔光线包裹着身体,似是重温旧日时光,为通往二层沙龙区平添几许沐浴圣光般的仪式感。
▼U 玻捕捉的光包裹着身体
遥望,不同光线下的漫反射雕琢出蓝色旋梯的朦胧质感,楼梯上人影摇曳,暧昧而动人,演变为人与光互动的艺术装置,重新营造了“看与被看”的视觉焦点。校园的场所记忆再生,功能性的楼梯升华为形而上的精神空间。
▼U 玻掩映下,旋梯朦胧暧昧的影像
1912 年,马塞尔·杜尚尝试在画作中表达时间而创作《下楼梯的裸女》,U 玻对光影的折射也让时间仿佛在空间中延展。
▼拾级而上,人影与光影的互动
墙——捕捉光的界面 Wall – the interface that captures light
有趣的是,书店西墙与晨园之间有两米宽狭长缝隙,不禁想到江南古典园林中因地制宜而设的采光狭院;为捕捉这抹狭长的天光,我们借助多种材料将整面的实墙置换为多层而连续的半透明介质,形成以阴翳为基调的“四面厅”。
▼半透的墙体为通透的空间带来四面光影
以木方为结构框架与聚碳酸酯板,磨砂亚克力板榫卯相接,构成一整面 14 米长的半透明展柜界面。
▼半透的柜体榫卯相接,光影律动
▼漫步的光线赋予空间生命力
不同透度柜体中植入大小不一的透明孔洞,透明度微妙转化中,开放的界面捕捉释放了跳跃变化的光影。渐变通透的格窗悄悄吸引人窥探对面艺术实验室在发生着什么,偶发性的互动触发了探索的欲望。
▼半透明柜墙引发内外的窥探与互动
书店内部以几片半透明柜体作为隔墙,提升了空间整体通透性,视线在空间中蔓延,人影晃动,书籍层叠,交织如一。
▼半透明柜墙与隔墙配合,空间整体而流动
顶——倾泻光的装置 Roof- An installation for pouring light
老楼四坡顶使二层空间局促而昏暗,结构经久损害较重,我们再三思虑,为满足党建会议和学术沙龙的特殊功能,将部分屋顶抬升,三面设侧高窗,引入有力光线,塑造略带崇高感的内向空间。
▼光线的力量带给空间崇高感
在白天的不同时间中,锋利的光影如时针漫步,从不同角度斜切打破空间,与人影引发空间对话。发光天花以杜邦纸代替普通灯膜以保证空间的整体性,杜邦纸绷紧时产生的褶皱呈现出意外的手工感,夜间形成带肌理的整体发光顶面。无论白昼与夜晚,这个倾泻光的顶层装置均为高质量的集体活动营造了特别的空间氛围。
▼光线下,透出肌理的杜邦纸
窗——诗意互动的存在
Window – the existence of poetic interaction
窗是链接人、街道、自然的诗意存在。我们解析了各扇窗联通内外空间的不同需求,探讨了不同窗洞尺寸与形式,及开启或固定的方式,同时限定不同的坐与观的行为,呈现出对坐窗、背坐窗、落地窗、窥探窗、转角弧形窗、侧高窗等一系列窗的语言。
▼光影下的窗与梯
▼弧形窗的树影,侧高窗的天空,与 U 玻的春意朦胧
▼折叠窗吸引人内外互动
在空间界面上调节视线、光线、行为的联通范围。南侧朝向喧闹的迎宾路采取窄窗,东侧朝向青春河则尽可能开敞通透,北侧与晨园之间形成室外窗下座,将城市街道的日常带入校园。这些窗或抒写了绿影长卷、碧天飞鸟与水街喧嚣,或激起了隐秘探索、街头观望与偶发互动。
05. 场所记忆——手工建造的过程 Memory of the Place – hand-made traces layered in the construction
施工中老楼吊顶拆除后,顶面呈现出最初建造时浇筑的木模混凝土凹凸肌理;待结构加固后,我们又惊喜于梁与柱包钢的秩序感及手工感与混凝土木模肌理产生的奇妙碰撞,于是现场决定保留 90 年代混凝土浇筑及改造结构加固的建造痕迹。
▼施工中,拆除吊顶,结构包钢加固后
但并非直白的留,而是用细腻的暖白色涂料覆盖顶面及包钢,赋予整体空间暧昧统一的调性。这与混凝土柱凿除旧面层后的露骨料粗糙肌理,在空间中不断重复延伸,产生戏剧性的冲击。连续性、多层次叠加的手工痕迹,新与旧,显与隐的对立并置,暗示了建筑的历史,同时构成新的场域能量。
▼在通透流动的空间中,如行走在建造与记忆的隧道中。
06. 艺术与活动的活性植入
Implantation of art and activities
为达到空间整体流动性,我们设计了自由组合的可移动家具——单侧滚轮的耐候钢展柜,依不同活动内容,或随性组合展示文创产品,或有秩序感的阵列组合形成特殊的展览空间,空间流线灵活变化,触发偶发性的观看和交流。原本耐候钢背面的渐变肌理被巧妙设计,随意有趣的表面无意中赋予空间动态的艺术氛围。
▼耐候钢淬火的肌理
考虑到书店的信息展示,我们延伸了顶部藏设备、桥架、灯光轨道的木质整体网格化系统,在咖啡制作区上部预留了数块黑色画板,在另一侧预留了双层亚克力海报板。可拆卸的设计便于根据不同活动更替展示内容,与学校师生合作,进行商品信息或文艺展示的艺术创作,作为产学研一体化的试验。
▼与艺术与传媒学院合作的黑板画活跃了空间氛围
▼半透展柜后隐藏的洗手间
07. 畅想进化:华理未来校园空间再生计划
Future Campus Regeneration Program
如今陇上书店亦融入校园整体氛围,与晨园并行开放的街道界面,让艺术文化的日常活动蔓延渗透至周边校园空间。陇上书店呈现出校园公共空间自由、流动、多元、艺术等多重特质,吸引师生聚集并激发他们对同一空间进行不同活动的自发使用,创造出无限的交流可能性;希望陇上书屋的一体化设计本身,成为本专业的产学研一体化的试点;同时它成为开放共享的、跨学科交流的大学校园更新的试点。
在未来,华理未来校园更新计划将持续延伸,串联蓝绿线索,形成活力有机的公共空间体系,构建一个持续进化的开放、多元、复合的未来校园。
▼华理未来校园空间再生计划
项目名称: 陇上书店
设计单位: 畎亩建筑设计事务所 A.C.R.E Atelier
建成时间:2021.04
建筑面积:260 平方米
项目地址: 上海市徐汇区梅陇路 130 号 华东理工大学徐汇校区
主创建筑师: 尹舜
设计团队: 尹舜、师琦、卢欣和、朱思怡、续爽
委托方:华东理工大学出版社
照明设计: 杨秀
施工方: 上海住安建设发展股份有限公司平山项经部
摄影师: WDi
客服
消息
收藏
下载
最近









































