查看完整案例


收藏

下载
© Ketsiree Wongwan
c.凯西里·王湾
架构师提供的文本描述。这家简单的香港实体店于2013年开业,DestinAsia 1杂志将其命名为“20世纪50年代的美国餐厅”,“粉红色霓虹灯”和“复古瓷砖地板”暗示了一家“王家卫与油脂相遇”的香港风格咖啡馆。正是在此基础上,JJA/Bespoke建筑的设计师JamesJJ Acuna在曼谷的72个庭院建筑群中建立了他们的第二个全球位置的基础。
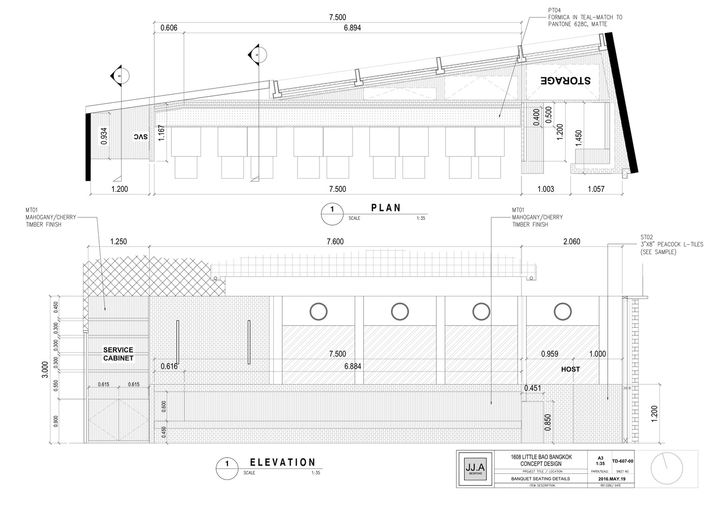
Text description provided by the architects. The simple Hong Kong brick-and-mortar shop which opened in 2013, has been de- scribed by DestinAsian 1 magazine as a "1950s American diner", where the "pink-neon logo" and the "retro-tiled floor" suggests a Hong Kong style cafe where "Wong Kar-Wai meets Grease." It is from this basis that designer, James JJ Acuna of JJA / Bespoke Architecture formulated the basis of their second global location, at the 72 Courtyard complex in Bangkok.
© Ketsiree Wongwan
c.凯西里·王湾
作为香港的目的地餐厅的下一代版本,̃a与品牌顾问奥利维亚庞(OliviaPong)和平面设计师恩登德工作室(EntendreStudio)合作,构思出了一个真正的香港风格,但它却是“小宝”这个期待世界、但仍以香港为根基的品牌的非猫式代表,浪漫的设计细节和元素,让人回想起旧世界中国咖啡馆的魅力和80年代香港流行音乐的怀旧情怀。使用双色手釉瓷砖和粉红马赛克的自由使用,让人想起了数百座以类似颜色呈现的香港铅笔塔。
Seen as a next-generation version of the destination restaurant in Hong Kong, Acuña, in collaboration with branding consultant, Olivia Pong and graphic designers, Entendre Studio, conceptualised a true-to-Hong Kong, yet non-kitschy representation of the Little Bao brand that looks forward to the world, yet still honours its Hong Kong roots, romanticised through design details and elements which hark back to the glamour of the Old World Chinese cafe and Hong Kong 80's pop nostalgia. The liberal use of two-tone teal hand-glazed ceramic tiles and pink mosaics recall hundreds of Hong Kong's pencil towers which are rendered in similar colours.
© Ketsiree Wongwan
c.凯西里·王湾
© Ketsiree Wongwan
c.凯西里·王湾
光滑的海军蓝粉末涂层钢和铁丝网工程的经验和内部回忆当代小贩摊档,香港的街道。为了增加用餐区的材料保暖,红樱桃木被放置在所有的顶部表面和低矮的餐椅上。为了将这些颜色-不锈钢、铬、白色和灰色的水磨石地板-的交汇点铺设在整个项目的整个过程中,这个品牌的当代性质都被它的中国根基所束缚。
Glossy Navy-blue powder coated steel and wire mesh on the project's exte- rior and interiors recall the contemporary hawker stalls which line Hong Kong's streets. To add material warmth to the dining areas, the use of Red Cherry timbers are placed on all ta- ble top surfaces and low dining seats. To ground these intersection of colours stainless steel, chrome, white and grey terrazzo floors, and a grey pigmented formica were placed throughout the project to speak to both the contemporary nature of the brand yet under- pinned by its Chinese roots.
© Ketsiree Wongwan
c.凯西里·王湾
Architects JJA / Bespoke Architecture
Location Bangkok, Thailand
Category Restaurants & Bars
Area 1250.0 ft2
Photographs Ketsiree Wongwan
Manufacturers Loading...
客服
消息
收藏
下载
最近




































