查看完整案例

收藏

下载
简介:沙家浜天堂卡通假日休闲酒店
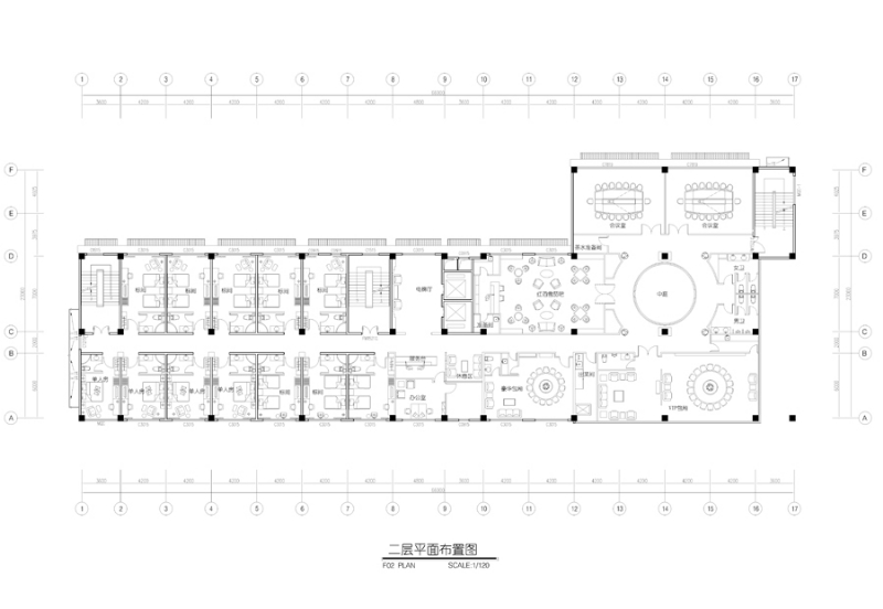
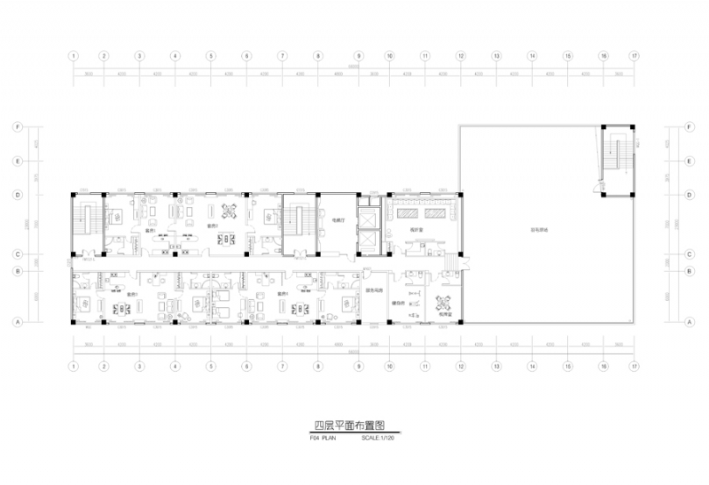
天堂卡通大酒店位于苏州市沙家浜风景区,周围风景秀丽,景色怡人。一楼大堂打破原建筑呆板的方盒子,采用椭圆状设计,带给客人独特的空间感受,同时模糊室内外的界限,造成室内与室外水乳交融的感觉。酒店三楼客房走道特别采用斜向设计,既使本来呆板狭长的走道豁然开朗,增强了空间的表现力,同时功能上又使相邻的房间不受影响,形成一个个独立的房间入口,彰显尊贵气质。整个空间规划新颖而不落俗套,运用简约的设计语言,使整个空间更加生动活泼,给人一种区别于传统奢华的内敛气度。同时通过造型,材质、灯光、家具、软装的精心组织和综合表现,力求营造一个简约大气,低调奢华的酒店空间。
天堂卡通大酒店位于苏州市沙家浜风景区,周围风景秀丽,景色怡人。一楼大堂打破原建筑呆板的方盒子,采用椭圆状设计,带给客人独特的空间感受,同时模糊室内外的界限,造成室内与室外水乳交融的感觉。酒店三楼客房走道特别采用斜向设计,既使本来呆板狭长的走道豁然开朗,增强了空间的表现力,同时功能上又使相邻的房间不受影响,形成一个个独立的房间入口,彰显尊贵气质。整个空间规划新颖而不落俗套,运用简约的设计语言,使整个空间更加生动活泼,给人一种区别于传统奢华的内敛气度。同时通过造型,材质、灯光、家具、软装的精心组织和综合表现,力求营造一个简约大气,低调奢华的酒店空间。
客服
消息
收藏
下载
最近

















