查看完整案例


收藏

下载
设计师:Labcity
面积:320 m²
年份:2019
摄影:Haruo Mikami
负责建筑师:Gustavo Ribeiro
Outros Participantes:Engenheiro Iberê Pinheiro de Oliveira
Cidade:Brasília
País:Brasil
设计师描述 | Designer description:
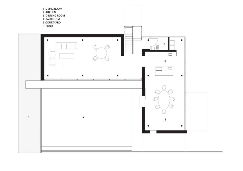
Este projeto foi desenvolvido a partir do aproveitamento de uma estrutura de alvenaria de pedra existente no local que tinha como uso original o cultivo de orquídeas. As paredes de pedra existentes definiram a disposição da planta baixa em torno de um pátio externo rebaixado que serve como extensão para a sala de estar, cujas portas de vidro de correr podem ser abertas para proporcionar total integração entre o espaço interno e o externo. Este pátio é definido em duas laterais pela edificação, em uma lateral por um banco de concreto e muro de arrimo também de concreto, e na última lateral por um espelho d´água.
Fez-se a escolha de uma estrutura de aço delgada para erguer o primeiro pavimento entre um conjunto de árvores (amendoeiras de cedros) adultas que cresceram à volta da estrutura de alvenaria de pedra original. Sendo delimitada pelo perímetro da estrutura original, a nova construção foi posicionada exatamente no vazio entre o conjunto de árvores existentes que proporcionam um filtro natural para raios solares, regulando a luminosidade e temperatura interna da edificação.
O primeiro pavimento é fechado com fachadas de vidro com portas de correr que permitem um alto grau de ventilação cruzada para melhor conforto ambiental. A transparência das fachadas proporciona ao usuário uma conexão próxima com a flora e fauna locais (macacos saguis e diversas espécies de pássaros). A sala de estar do primeiro pavimento é circundada por vegetação em três
A escada permite leva ao primeiro pavimento e à cobertura de onde se tem a vista do Plano Piloto e o Eixo Monumental. Além da alvernaria de pedra mantida em seu estado e layout original com pequenas alteraçoes, da estrutura de aço e das fachadas de vidro, os materiais usados na construção da obra incluem um piso de granitina no pavimento térreo e um piso de medeira ipé no primeiro pavimento. Os forros foram executados em madeira kumarú assim como as bancadas e acabamento da cozinha.
项目完工照片 | Finished Photos
设计师:Labcity
图片©Labcity
语言:葡萄牙语
客服
消息
收藏
下载
最近





































