查看完整案例


收藏

下载
孙川是韩国南部的一座独特的宝库。顺川市有着丰富的历史背景和无可替代的卓越生态价值,为这座城市的形象做出了不可替代的贡献。由于顺川旅游业的良好发展条件,旅游业正处于快速发展阶段,对新兴旅游设施的需求是必要的。艺术平台不仅可以让居民和游客更多地了解顺川,而且对其生活质量有着深远的影响和改善。孙川艺术平台无疑将成为传达历史的文化活动和建筑的核心。
顺川市的发展不应忽视过去。孙川的身份应包括城镇历史提供的要素和当前的创新思维。未来的艺术平台靠近“旧城”孙川的重要遗迹。这一历史事实为利用旧地籍图在艺术平台上重新引入旧城提供了启示。该设计结合了“太阳墙”的形状,在旧城市周围的艺术平台,唤起了‘旧城’的记忆和外观。此外,旧城的小径成了艺术平台上的小径。利用孙川的历史背景成为设计的重要组成部分。
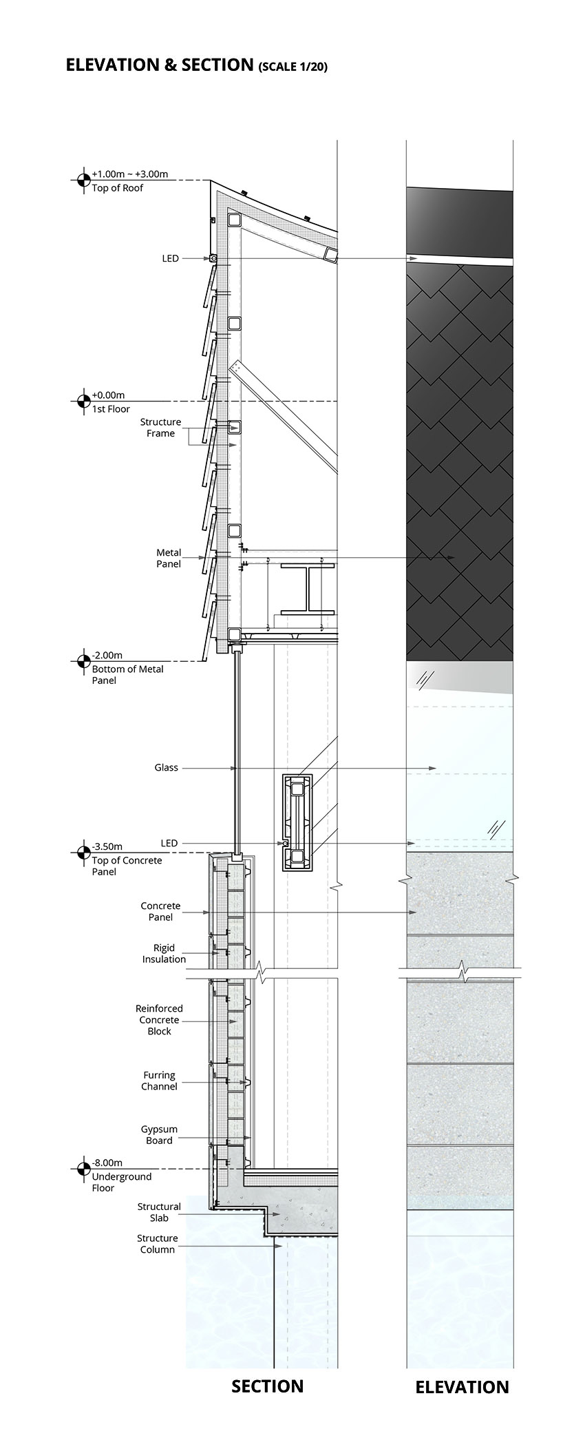
此外,艺术平台是有意建造在地下,以便连接到地下商场。这一战略的目的是振兴地下竞技场,为城市创造了一种新的地理特色类型,丰富了城市景观的语言。沉陷的景观将成为居民全新的体验。因此,它可以作为文化和休闲活动的公共空间。
美丽的太阳的另一个特点是它的宝贵的生态价值。与韩国其他城市相比,顺川的农业活动比例很高。艺术平台的景观设计是为了模仿农田的布置。人类将经历一个壮观的自然环境。道路的方式自然是由草原的形状产生的。景观设计为人们提供了多方向的通道,让人们在场地内自由通行,并为他们提供公共绿地。
圣川艺术平台被设想为场地的周围区域带来生机。
Firm TheeAe Architects
Type Cultural › Cultural Center Museum
STATUS Concept
SIZE 25,000 sqft - 100,000 sqft
BUDGET Unknown
keywords:architecture, architecture news, interiors, interior design, portfolio, spec, brands, marketplace, products TownReincarnation
关键词:建筑,建筑新闻,室内设计,产品组合,规格,品牌,市场,产品市场
客服
消息
收藏
下载
最近














