查看完整案例


收藏

下载
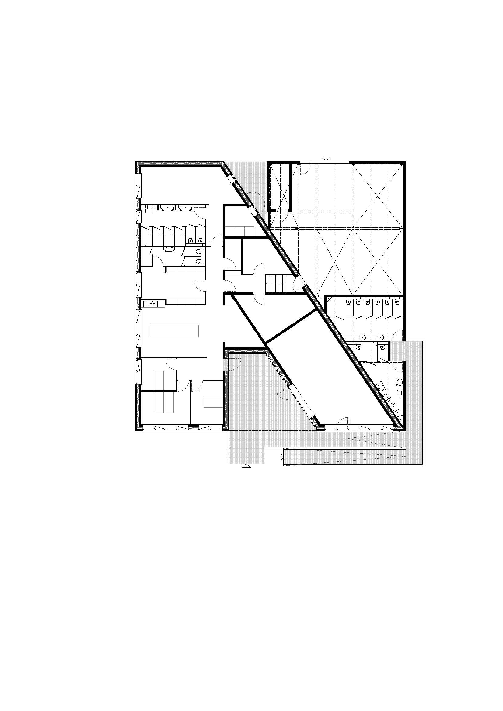
这座建筑位于法国卡昂的一个公园里。它是为城市的园丁设计的。它包括车间、办公室和衣帽间。建筑的特殊性在于它产生的能量比消耗的要多。这是因为绝缘是非常重要的,而且计划是以生物气候和日性原理为主导的。然后建筑被太阳能电池板覆盖,太阳能电池板能产生电能,建筑的概念是将这些太阳能电池板作为建筑的一部分。例如,为支持这些嵌板而建的棚屋朝向完美的南方,以优化它们的性能,从而使该计划以其在公园的位置为主导。然后,设计了一个图案,使面板看起来像屋顶上的皮肤。
Firm REMINGTONSTYLE
Type Cultural › Government + Health ›
STATUS Built
YEAR 2010
keywordsarchitecture, architecture news, interiors, interior design, portfolio, spec, brands, marketplace, products CAEN Bâtiment pour les services des Parcs et Jardins
关键词:建筑、建筑新闻、室内设计、组合、规格、品牌、市场、产品和产品
客服
消息
收藏
下载
最近





















