查看完整案例


收藏

下载
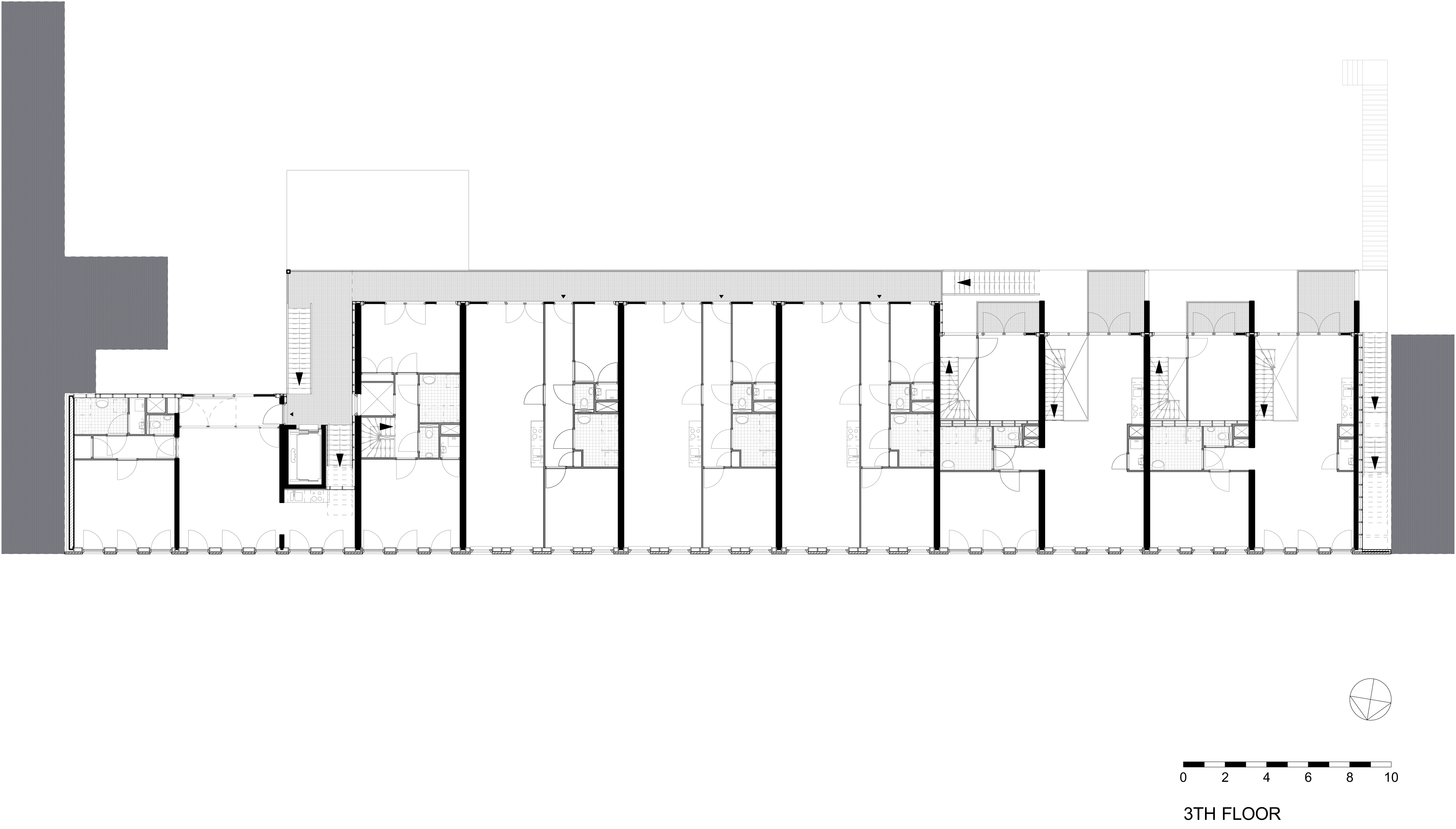
阿姆斯特丹Lootsbuter的14处相邻的地块已被34处地下停车场上的现代住宅所取代。区分历史结构与现代建筑技术的标准化特征之间的张力被转化为一个混合块。在花园一侧,这座街区遵循了原始建筑蜿蜒的轮廓。这条蜿蜒的轮廓与地下停车场决定的建筑支架一起,为住宅类型、室外空间和通道类型创造了各种条件。这样,太阳定位、隐私和南面进入的矛盾目标就可以同时得到解决。在街边,该街区轻轻地适合现有的城市结构,并反映混合的街区结构,以一种微妙的方式显示出住宅的多样性。一种宽度相同的窗户的节奏,受不同的居住类型的影响,上下起舞。通过这种方式创建了外观的同构和区分布局。花园的立面有一种非正式的特点。画廊,阳台和露台的存在创造了很强的可塑性的体积。外墙被视为透明的过滤器,提供日光进入住宅,并提供隐私时,需要。
Firm ANA architects
Type Residential › Multi Unit Housing
STATUS Built
YEAR 2008
SIZE 25,000 sqft - 100,000 sqft
BUDGET $5M - 10M
Photos sander
keywords:architecture, architecture news, interiors, interior design, portfolio, spec, brands, marketplace, products Lootsbuurt
关键词:建筑,建筑新闻,室内设计,组合,规格,品牌,市场,产品
客服
消息
收藏
下载
最近





















