查看完整案例


收藏

下载
今天(2016年12月8日),罗杰斯·施蒂尔克港合作伙伴庆祝悉尼国际塔的最后一座塔落成。这标志着该做法的第一个重要部分的结束,为巴拉加鲁南部的总体规划。
目前正在进行的重建是自2000年奥运会以来悉尼最大的城市重建项目,将CBD与滨水区结合起来,提供了一个新的金融服务中心,并将在市中心创建一个充满活力的新的碳中和区。该项目是由Lend Leases开发的。
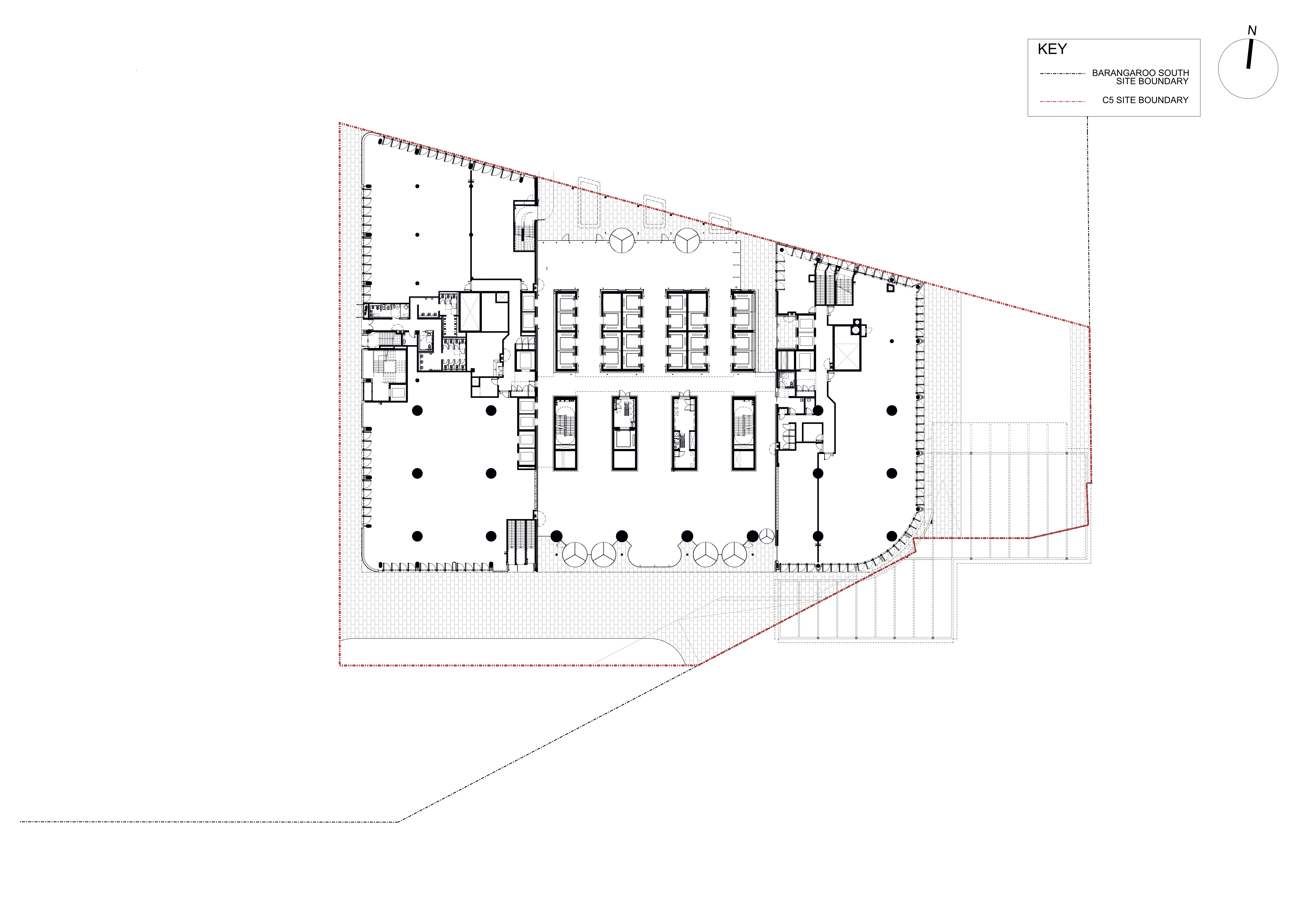
悉尼国际大厦的建造一直是Barangaroo项目背后的推动力。构思为三个兄弟建筑,和谐但具有独特的细节提供个性,塔仔细定位在径向几何,以最大限度地提高阳光和意见。他们打开了西港,现在是mark Sydney的新前门。
双子塔的设计颠覆了传统,为未来创造了一个工作场所。23,000名办公室工作人员将被安置在这三座大楼内大约30万平方米的高级办公空间内。灵活的2,500平方米楼板将使居住者,其中已经包括吉尔伯特托宾,汇丰,毕马威,租赁,沼泽地
这些非传统的大堂是透明的,吸引人的,编织在巴兰加鲁南部严密的街道和车道网络中,丰富了发展,为悉尼的户外文化增添了一个新的维度,并帮助赋予了塔楼的人情味和地面影响力。立面的功能和优雅,利用水平和垂直遮阳的结合,以保护免受太阳能负荷,减少了冷却所需的能量,同时也提供了独特的颜色,规模,丝线和谷物的个别塔。
这两座塔楼获得了享有盛名的6星级绿星评级,此外,它还利用了广泛的环境特征,包括海港水的散热、太阳能电池板、雨水收集和循环利用、黑水处理以及比汽车多三倍的地下室住房。
当双子塔发射时,
高级合伙人理查德·罗杰斯说:“悉尼是世界上最宏伟的港口城市之一,但从历史上看,悉尼从未到达过海滨。该项目的主要目标之一是将CBD延伸到海滨,创造一个新的工作和休闲区,拥有50%的开放空间。自塔楼建成以来,该地区充满了人、生命和活力,这表明这是对该地区的绝对正确的反应。在这样一个规模的项目上工作,对实践来说是一个难以置信的机会,可以从事高质量的场地制作。“
高级合伙人伊万·哈伯说:“巴兰加鲁的商业大厦和街道已经建成八年了,现在正迅速被占领。这段旅程很长,但比2008年想象的要快得多。
“我们从整体上设计了这些塔楼及其周围的街景和滨水景观,并努力确保这些建筑的交付达到了高标准,保留并加强了核心位置,使它们在几年前成为与众不同的概念。”
“这是一个全球优秀的城市中心再生项目,将在全世界建立一个新的基准,我非常自豪地扮演了角色。”
项目主管Avtar Lotay说:“这个分局是从场地、环境和国家的角度雕刻而成的。塔的径向排列打破了传统的笛卡儿网格,径向排列利用了城市和水的视野,最大限度地利用了太阳能通道。由此产生的街道模式及其比例提供了一个人类规模的公共领域,丰富了智能混合活动,这是与“生物多样性公约”紧密相连的。
他说:“我们有创新的措施,以配合开明的可持续发展议程。塔楼地板的形状与优化的太阳能遮阳相关联,并为进步的用户组织提供了民主灵活的空间,使它们能够在全球悉尼创造灵活、动态的工作场所和21世纪社区。
“从宏观总体规划到微观装配细节;从立面到大堂;与我们的设计合作伙伴和客户一起,为独特的结果而考虑的各个方面;精湛工程的个性化设计。”
项目设计师保罗·汤普森(Paul Thompson)说:“每座大楼都必须有一个单独的、低能耗的外墙,这样才能让我们有机会开发和开发三个符合其独特位置的外部立面系统。立面采用了细致的、丝状的太阳遮阳,在整个区域内形成了一个统一的整体,并提供了从城市到人类尺度的清晰性。
对这些创新外观进行基准测试、建模、原型、测试和交付的机会,在全球范围内汇集了专家顾问、外观工程师、制造者和制造商,这是一次非同寻常和高度有益的经历。
摩天大楼和街道的径向风扇总体规划在大厅之间创造了一个变化,它们的南北体积之间存在关系,街道空间的扩展,创造了6个不同的大厅,同时保留了一个公共的“Barangaroo的大厅”。
大厅的设计原则是通过现场链接、塔楼落地和以北南光为取道手段,提供了一个共同的顺序要素,当这些元素与大厅体积的变化相叠加时,以及改变材料调色板、颜色和纹理,使租户身份清晰,同时保持一个明确的总体框架。“
Firm Rogers Stirk Harbour + Partners
Type Commercial › Office Landscape + Planning › Masterplan
STATUS Built
YEAR 2016
Photos The Moment It Clicks Pty Ltd, Brett Boardman Photography, CPY Document Author
keywordsarchitecture, architecture news, interiors, interior design, portfolio, spec, brands, marketplace, products International Towers Sydney
关键词-建筑,建筑新闻,室内设计,组合,规格,品牌,市场,产品国际塔悉尼
客服
消息
收藏
下载
最近




































