查看完整案例

收藏

下载
计划:扩建现有宿舍
2017年,有必要扩建位于一座历史悠久的公寓楼内的大道旅舍,由于客人数量的增加,这里有了新的社区空间。为了解决这一问题,管理部门将一些相邻的房地产公司合并到原来的三层公寓楼。一个接待区,一个休息室,一个带食堂的社区厨房,一个酒吧,和一些新的宿舍被安置在新占据的空间里。
挑战:如何利用历史公寓楼的“空间储备”?
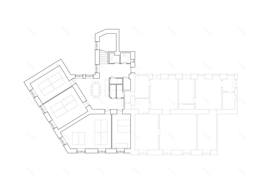
在设计过程中,主要的挑战是将一座布局结构零散的历史公寓楼改造成一个宽敞、空间广阔的地方,以便为可容纳150多人的社区住宿提供公共服务。我们在寻找如何利用这些最初作为公寓建造的房地产的“空间储备”的方法,形成密集使用的社区空间。
项目:建造空间区域和柔性家具,以适应变化的用途。
在十九世纪末进入二十一世纪,市中心的公寓楼为各种功能和用途的建立提供了许多机会。中间的一堵承重墙将平面图分成两块:一条面向Oktogon广场,另一条面向内院。除此之外,只有正面开口的统一顺序才会影响室内空间的可转换性。4m的内部高度使得在没有令人不安的压缩比例的情况下创造出长的空间成为可能。
在一楼,我们设计了两个有代表性的空间,拆除了几堵隔墙:一间带有酒吧和社区厨房的食堂被指定在面向Oktogon广场的区域,而接待处和休息室则放在另一间。中间承重墙的开口确保两侧之间的连接,以便客人进入招待所时能体验到面积为150平方米的空间。
我们也想垂直地扩大这个区域的尺寸,所以我们把照明系统安装在一个横跨的钢丝网上,上面的机械电缆仍然可见。这种干预使得电气系统的简单和不受限制的可变换性,同时给空间提供统一的特性。地板上覆盖着灰色的油毡,能承受各种用途带来的荷载。因此,可以在不更换地板盖的情况下重新布置功能。因此,顶部和地面的表面被设计成促进适应物理和功能变化的方式。
Firm PRTZN Architecture
Type Hospitality + Sport › Hotel
STATUS Built
YEAR 2017
SIZE 10,000 sqft - 25,000 sqft
keywords:architecture, architecture news, interiors, interior design, portfolio, spec, brands, marketplace, products Avenue Hostel
关键词:建筑、建筑新闻、室内设计、组合、规格、品牌、市场、产品大道招待所
客服
消息
收藏
下载
最近

















