查看完整案例


收藏

下载
UPHouse是一个关于嵌入的项目,展示了如何将一个尺度亲密的空间,转变成另外一个对于家庭来说开敞而公共的场所。设计通过在公寓里植入轻钢结构,为项目增加了50%的使用面积;在此基础上,新增的楼梯让人们可以进入新建的上层空间。
UPHouse is the tale of an implant, the introduction of a space of intimate scale into another space, which, within a domestic diagram, is exposed and social. The project adds 50% more area to the apartment by installing a light steel structure and a staircase that allows access to the new upper floor.
▼空间概览,overall view of the space ©Javier de Paz Garcia
为了支撑新的楼层,设计师安装了六个与墙面平行的框架以稳定和分担荷载,框架中央是卫生间,这是住宅内唯一封闭的空间。新楼层位于卫生间上方,两侧各留下了一个通高空间:东侧的空间较大,更为开放;西侧的空间较小,更加私密。新的夹层将公寓分成了两部分,分别设置私密和公共的功能。
To support this floor, six frames that would stabilize and distribute the weight, are located parallel to the walls and surrounding the central and only closed room of the house, the restroom. The new level is built on top of this central room of the apartment, leaving two double-height spaces in each side of it. One bigger and public in the east side and a smaller and more private one in the west side. The new upper floor divides the apartment into two spaces, a private and a public function.
▼轴测图,axonometric ©Cumulolimbo
▼通过移动楼梯上到夹层,access to the mezzanine through movable stairs ©Javier de Paz Garcia
两个空间选用的材料也体现出了这种二元性。一方面,在私密的拱顶区域,墙和门面覆以从旧电器箱中回收的胶合板。另一方面,厨房、客厅和娱乐空间的墙面被涂成白色,反射从露台射入的阳光,照亮整个空间。设计避免不必要的完成面,将材料的使用控制在最少。
The choice of materials for these two spaces reflects this duality. On one hand, in the private vaulted area the walls and doors are covered with recycled plywood (from old electronic equipment containers). On the other hand, white walls reflect light from the patio to fill the kitchen, living room and recreational space with light. The use of materials is minimized, avoiding unnecessary finishes.
▼明亮的公共空间,public area full of light ©Javier de Paz Garcia
▼开放厨房,灵活多变的空间,flexible space with open kitchen ©Javier de Paz Garcia
▼从公共区域看向私密区域,view to the private area from the public area ©Javier de Paz Garcia
▼黑色的支撑框架,black supporting frames ©Javier de Paz Garcia
▼新增夹层下的卫生间,restroom under the new floor ©Javier de Paz Garcia
▼私密区域墙面覆盖胶合板,private area with plywood covered on the walls ©Javier de Paz Garcia
公寓的公共空间采用开放平面,内设厨房。该空间灵活多变,与一个东向的小露台相连,可以获得晨光照射。和许多首层公寓一样,缺少光照是设计需要解决的主要问题之一。为了让新建的上层空间获得最多自然光,设计在私密区域建造了一个由镜面木材组成的拱顶。自然光通过拱顶反射叠加,形成了丰富的视觉效果。
The public area of the apartment, which includes the kitchen, has an open floor plan. This flexible space opens to a small east-oriented patio that gets morning light. As many ground-level apartments, the lack of light is one of the keystones of the proposal. In order to maximise natural light in the new upper level, a mirror-faced wood vault is built in the private side. Natural light is reflected and multiplied with a great visual effect.
▼通高的私密区域,设有拱顶,double height private area with vaulted ceiling ©Javier de Paz Garcia
▼镜面木材制成的拱顶反射自然光,mirror-faced wood vault reflecting natural light ©Javier de Paz Garcia
▼夹层空间,mezzanine ©Javier de Paz Garcia
▼细部,details ©Javier de Paz Garcia
▼一层平面图,first floor plan ©Cumulolimbo
▼夹层平面图,mezzanine plan ©Cumulolimbo
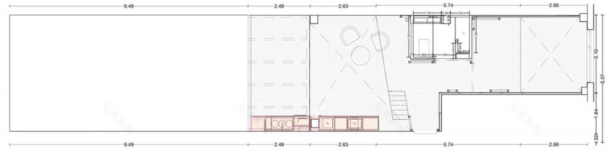
▼剖面图,section ©Cumulolimbo
客服
消息
收藏
下载
最近








































