查看完整案例


收藏

下载
Apartments, Renovation, Praga 2, Czech Republic
设计师:caraa.cz
面积: 200 m²
年份:2020
摄影:Andrea Thiel Lhotakova
Construction:Engram s.r.o.
Lead 设计师:Stepan Kubicek, Martina Buricova
City: Praga 2
Country:Czech Republic
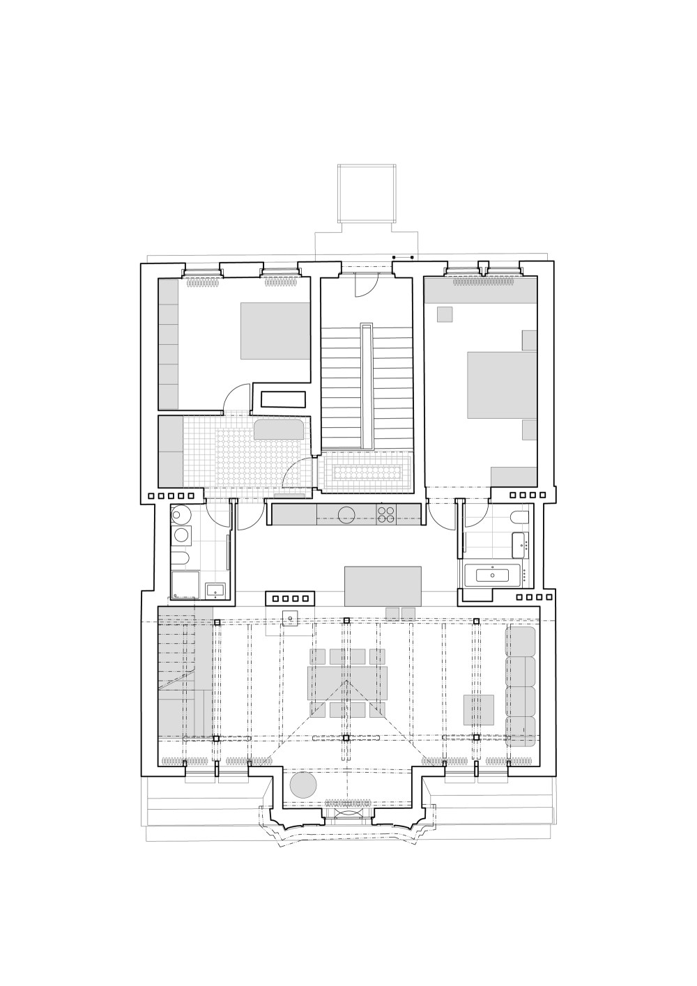
The attic flat was part of the overall reconstruction of an apartment building. The Art Nouveau house was damaged and neglected by time and use, but remained authentically original. The aim was to find the original condition of the house and restore the historic features with minimal interference. There were two major interventions. The extension of the elevator - steel tower with a glass facade and the attic construction of the apartment unit.
The investor's assignment was defined as the creation of a generous attic apartment on an area of approximately 200 sqm with facilities and a terrace. No further specification was given. Everything was created gradually, the investor participated in the design process, the design was continuously modified.
The attic apartment is contemporary, airy, and bright. The essence of the design is based on the character of an Art Nouveau house. The house has preserved the original railings, etched glass… The interior design is not a replica, but we use the specific morphology of the original.
The materials used are honest and traditional. Authentic original brick, solid oak and walnut wood, glass, admitted raw steel elements, fired unglazed hand-made historical tiles, glass, linen, wool, etc. The pattern of paving in the hall of the apartment is based on a full-color pattern of historical paving in the corridors of the house. It is abstracted and converted into black and white form.
Almost all furniture is made to measure from solid oak and walnut wood. Emphasis is placed on the processing of detail and the quality of used materials. Everything is based on substance, ordinary, but high quality and beautiful. The technological solution for heating, cooling, and air conditioning corresponds to the current standard.
项目完工照片 | Finished Photos
设计师:caraa.cz
图片©caraa.cz
语言:英语
客服
消息
收藏
下载
最近



























