查看完整案例


收藏

下载
We are introducing the unique interior in a 19th century building. We focused on natural materials and stout colors. A lot of original solutions were created especially for this apartment, such as wooden doors or brass handles. We invite you to our world where functionality and atmosphere are the priority.
项目完工照片:
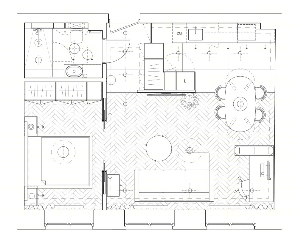
平面与结构图:
效果与概念图:
待补充……
设计师:Kohlrabi
坐落:Wrocław / Poland / 2019
语言:English
客服
消息
收藏
下载
最近



































