查看完整案例


收藏

下载
该项目是靠近布拉迪斯拉发历史中心的loft式周末公寓,原本是稍大且呆板的“单间”,具有隐藏的潜力并且享有新艺术风格建筑“蓝色教堂”的美景。设计师不追求精细的设计或工艺,它不会为居住者带来幸福的体验,因此对设计师也不重要,设计师注重的是公寓的视野、开窗、氛围、位置以及光影效果。因此,材料大多透明而实用,开放空间通过高天花显得格外醒目。
The apartment Next to The Blue Church is a kind of weekend loft close to the historical center of Bratislava. In its original state, it was rather a larger and rigid “cell” with a hidden potential and beautiful view of the Art Nouveau monument called “The Blue Church”. We were not looking for a design or a careful and meticulous craft for this apartment, it was not important for us, because it would not give you that experience of well-being. For us, it was mainly about views, openings, atmospheres, location, the play of light and shadow. Therefore, the materials are largely transparent and functional. We let the open space stand out with its high ceilings.
▼室内概览,preview © Matej Hakár
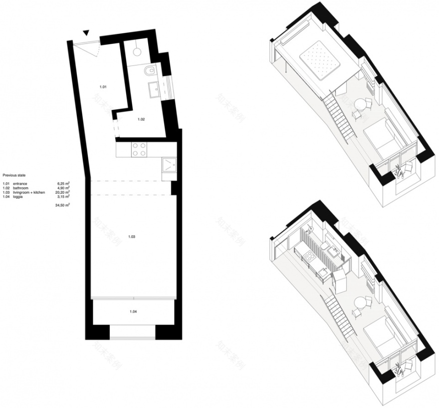
原有布局包括独立浴室、隐藏管线和设备的低矮天花、背对蓝色教堂的靠墙厨房。经过拆除天花、重置设备以及置入夹层,这里变成完整的公寓,具有独立的夜间区域和舒适的楼梯。夹层使面积扩大了约15平米。设计师在浴室和厨房之间建立玻璃砖墙,使日光进入厨房,空间也看起来更大。这套公寓只配备大尺寸的基本家具,用1.2米的大床代替传统的沙发,用大面积投影墙代替电视。楼上是寝区,配有整套衣架和日常休闲用的地毯。
▼原始状态和改造后轴测,previous state and renovated axon © Kilo/Honč
The original standard layout offered a separate bathroom, a lowered plasterboard ceiling with all possible hidden wiring and technology and a kitchen leaning against the wall turned with its back towards the view of the Blue Church. By removing the ceiling, reorganizing the technological infrastructure, and inserting a mezzanine floor, this studio became a full-fledged apartment with a separate night zone and a comfortable staircase. The inserted floor expanded the floor area about additional 15 square meters. By using a wall from translucent glass blocks between the bathroom and the new kitchen, we brought daylight into the kitchen area, so that the space appears optically larger. The apartment is equipped only with the most essential objects with generous proportions. There is a 1.2-meter-deep daybed instead of a traditional sofa, the generous white walls are used as projection screen instead of holding a big TV. On the upper floor there is a sleeping area, a set of shelves for clothes and a large rug for daily lounging.
▼由入口望向内部 © Matej Hakár view to the inside area from the entrance
▼开放式厨房,open kitchen © Matej Hakár
▼玻璃砖墙将厨房和浴室隔开,the glass brick wall separates the kitchen with the bathroom © Matej Hakár
▼由客厅望向用餐区 © Matej Hakár view to the dining area from the living room
▼由用餐区望向客厅 © Matej Hakár view to the living room from the dining area
▼用餐区,dining area © Matej Hakár
▼细部,details © Matej Hakár
▼客厅,living room © Matej Hakár
▼1.2米的大床代替传统的沙发,the 1.2-meter-deep daybed instead of the traditional sofa © Matej Hakár
▼从夹层俯瞰客厅,view overlooking the living room from the mezzanine © Matej Hakár
▼夹层用作寝区,the mezzanine serves as a sleeping area © Matej Hakár
▼夹层内部,inside view © Matej Hakár
设计师喜欢公寓没有严格的秩序,居住者与周围环境不断地互动,可以随着时间推移重新发现并调整公寓。当空间激发创造力,当空间特质可以在不降低品质的情况下改变,当空间为人们提供多种互动尺度,设计师会感到高兴。
We like when there does not have to be strict order in the apartment, when a person is in constant interaction with the surrounding environment, allowed to rediscover and modify it over time. We enjoy when space encourages creativity, when its character can change without the loss of quality, when it offers a variety of different scales for people to interact with.
▼盥洗台,washstand © Matej Hakár
▼淋浴间,shower © Matej Hakár
▼平面图,floor plan © Kilo/Honč
▼夹层平面图,mezzanine plan © Kilo/Honč
客服
消息
收藏
下载
最近
































