查看完整案例


收藏

下载
项目坐落在布特蒙马特山陡峭地势塑造成的高密度城市肌理中,临近圣心大教堂。场地位于角落地块,一面朝向Trois Frères街,另一面对着Drevet室外楼梯。
Near Sacré Coeur, the site is located within a dense urban fabric marked by the steep relief of the Butte Montmartre. A corner plot, one facade is on rue des Trois Frères, another on the rue Drevet stairway.
▼项目概览,overview ©Luc Boegly
建筑师在立面设计中采用了典型的“Faubourg”建筑语汇,展现出街区特有的巴黎市郊风貌。“市郊建筑”的特色包含以下几点:建筑的虚实体量形成了规整的网格;墙体立面排布着120厘米宽的垂直开口;两侧外墙顺应转角场地;采用起伏的锌制屋顶、折叠式波斯百叶窗和华丽护栏。
The building facades apply a faubourg architectural vocabulary to integrate within the neighbourhood: regular grid of solids and voids; vertical 120cm wide openings; facades on both sides of the corner site; zinc roof with multiple pitches, folding persian shutters, ornate guardrails.
▼公寓楼夹在街道与楼梯之间,the building on the corner of the street and the stairs ©Luc Boegly
▼从街道看建筑,view from the street ©Luc Boegly
▼建筑一侧面对楼梯,one facade on the rue Drevet stairway ©Luc Boegly
项目极具现代感,体量干净,建筑框架凸显了立面厚度,线脚精致的白色砌块与锈色窗口形成了鲜明的对比。位于一层的两家商店在外观上各具特色,与Trois Frères街的店面相得益彰。
Clean volumes, subframes that emphasise the facade thickness, white brick with delicate mouldings which converse with the rust-coloured openings give the project its contemporary expression. Each with their own expression in facade, the two shops on the ground floor harmonise with the diverse shopfronts along the rue des Trois Frères.
▼楼梯视角,view from stairway ©Luc Boegly
▼白色砖砌外墙,white exterior wall of bricks ©Luc Boegly
▼细部,details ©Luc Boegly
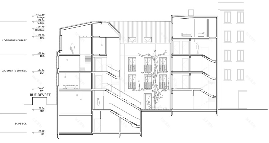
为了使高密度地块适合居住,项目中 的14 个住宅单元沿街排开,拓展了立面长度。大楼包含一个中央庭院与一个对应内院,住房单元可以具有双重、三重或四重朝向,为厨房和浴室都带来了良好采光。
To render the high-density plot habitable – 14 units in the programme – to increase the facade length, the project provides a central courtyard as well as another courtyard aligned with the neighbouring courtyard. Housing units thus have double, triple or quadruple orientation – kitchens and several bathrooms have daylight.
▼从内部看建筑立面,view of the facade from the courtyard ©Luc Boegly
▼内院与露台,courtyard and terrace ©Luc Boegly
▼首层庭院空间,courtyard on the ground floor ©Luc Boegly
从街道望去,一条小路将引领人们来到石砌块铺就而成的中央庭院。粉刷成白色的混凝土外墙上装饰着木材和铝制成的工艺栏杆和百叶窗。立面窗户密布,让人联想起毗邻街区的车间建筑。这些窗户不仅为室内带来了更多采光,外部栏杆还可以用于布置盘绕的茉莉花。
Furthermore, the central courtyard creates a passage that enables it to be seen from the street. The courtyard is paved and its white façades, (painted concrete, timber/aluminium joinery, railings and blinds) with many windows, are reminiscent of the adjoining 18th arrondissement workshops. They increase the day light inside and support false climbing jasmines.
▼从阳台看庭院,view of the courtyard from the balcony ©Luc Boegly
▼室内视角,interior view ©Luc Boegly
▼从厨房看向一侧楼梯,view of the stairs from the kitchen ©Luc Boegly
▼采光充足的厨卫空间,the kitchen and bathroom with sufficient lighting ©Luc Boegly
为了充分利用空间,建筑师将复式公寓布置在阁楼中,利用屋顶增加了额外的天窗。
To fully exploit the built volume, duplexes are located in the attics – the roof is also an opportunity to provide additional skylight windows.
▼复式公寓,duplexes ©Luc Boegly
▼阁楼内的楼梯,stairs in the attic ©Luc Boegly
▼楼梯视角,view of the interior space from the stairs ©Luc Boegly
▼阁楼浴室,the attic bathroom ©Luc Boegly
庭院两侧的楼梯带有宽敞的平台,为邻里居民创造了高质量的活动空间。位于外部的楼梯则呈灰色调,与内部空间形成了鲜明的对比。
Located on the sides of the courtyard are staircase A, with its large landings which could be gainfully shared by neighbours, and the external staircase B, whose grey tone, contrasts with this volume.
▼庭院内侧的楼梯,staircase on the sides of the courtyard ©Luc Boegly
▼鸟瞰庭院,top view of the courtyard ©Luc Boegly
▼夜间街景,night view from the street ©Luc Boegly
▼总平面图,general plan ©MAO architectes
▼首层平面,the ground floor plan ©MAO architectes
▼公寓平面,the standard floor plan ©MAO architectes
▼复式公寓平面,plan of duplexes ©MAO architectes
▼立面图,elevation ©MAO architectes
▼剖面图,section ©MAO architectes
Project owner: Paris Habitat Architects: mobile architectural office Fabien Brissaud, managing architect Marine de Froberville, architect Photographies: Luc Boegly Location: 32 bis, rue des Trois Frères, Paris (18ème arrond.) Environmental performance: RT 2012 -20% – Plan Climat ville de Paris H&E Profil A Area: 952㎡ + 186㎡ (commercial premises) / 895㎡ Cost of works: 3,5 M€ Calendar: Building permit October 2016; Delivery March 2021
客服
消息
收藏
下载
最近














































