查看完整案例


收藏

下载

翻译
DB Studio recently completed the office design for coffee roasters, Tran Quang Sales, located in Ho Chi Minh City, Vietnam.
Tran Quang Sale Office is designed to provide employees with high-spirited energy and great comfort. The office was transformed from a number of unused rooms on the top floor of the three-story industrial building. We redesign the space to be an open floor plan filled with natural daylight and greenery. A celebration of vibrant colors is displayed with a background of white open ceiling and grey carpeted floor. The warmth of wood, in addition to other industrial materials such as perforated metal and mosaic tiles, helps to create a collage of materials that is contrasting and balancing at the same time.
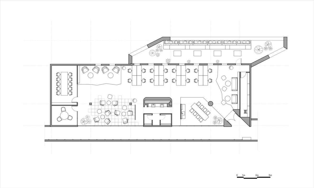
Located within an industrial park, Tran Quang Sale Office is intended to become the opposite of any regular office – an office that inspires and enables staff to work and enjoy at work. The office is dedicated to marketing and sales and aims to stimulate a high-spirited energy. One of the biggest challenges was to create a colorful yet tasteful interior that involves the yellow color of a new product line. To obtain an uplifting working environment, we approach to utilize open floor plan and open ceiling in our design solution. That helps not only to maximize space but also to let natural light penetrate the entire office. An open plan encourages interaction among staff and generates aspired energy.
Meanwhile, natural light is believed to positively contribute to the satisfaction in workplace. We select different furniture designs and different floor materials and patterns to visually divide space without physical barriers. A strong diagonal entrance introducing a sneak peek into the office is juxtaposed by a waiting area and a small pantry that accommodates 8 to 10 people. Followed are workspaces for 16 staff, a restroom, a reading corner and an area for collaboration. A large meeting room for 10 and a small one for 3 are located at the furthest wall to avoid blocking natural light. The treatment of colors is a highlighted feature of the project. Fifteen shades of yellow, orange, red, grey, mint and green combine altogether to create a vibrant palette. White walls and ceiling and grey carpeted floor create a perfect background for all the colors to speak. The use of industrial materials such as perforated metal and mosaic tiles generate a sense of productivity and durability while the use of wood brings warmth to the interior. It is then softened by the employment of fabric, carpet and upholstery. Upholstery provides not only comfort but also acoustical advantages. Linear suspended wood slat ceiling in contrast with round shape elements creates a dynamic interior space. A series of different sizes of cloud lights by Belux completes the soaring effect created by the suspended ceiling and lighting fixtures. It is also a poetic addition to the space which conveys “the feeling of freedom and eccentricity.” A large unused balcony is converted into an outdoor lounge area surrounded with greenery, providing a source for everyone to recharge.
Design: DB Studio
Design Team: Minh Le, Hoa Vu, Thao Pham, Nhu Phuong
Photography: Quang Tran
12 Images | expand for additional detail
客服
消息
收藏
下载
最近














