查看完整案例

收藏

下载

翻译
Studio 13 Architects has incorporated Unilever‘s global identity into their new Knorr and Lipton offices with brands located in Istanbul, Turkey.
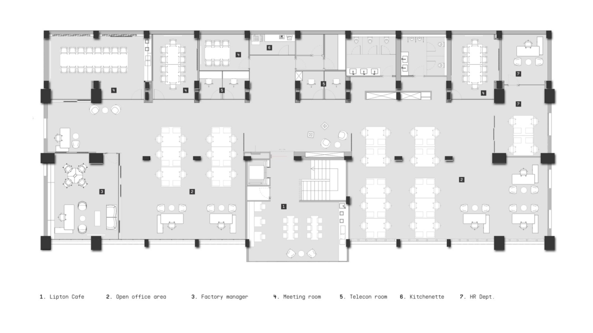
Unilever Besan Istanbul Office project is located in Istanbul,Tuzla. As we all know, Unilever has a very strong brand identity and we wanted to emphasize this brand identity from the facade to every corner of the interior of the factory. The color scheme of the facade is chosen from color wheel in the brand identity of the Unilever.
A remarkable but also fast and economical solution was made for facade design of the factory. Boardex panel, plaster and paint were preferred. In order to exhibit the products in the interior, the product exhibition cabinets were used for entrance area. The simple and neutral colors were generally used for interior.But with the use of colorful furniture the cold feeling of the “ lab” is balanced.
Lipton and Knorr are the brands of the food and beverage industry because of that hygienic atmosphere has been designed for interior and laboratory areas. The partially use of white light also increased this effect for certain areas.
In order to avoid feeling of the “lab” balance was achieved with wood veneers with colorful furniture and plant use. Each meeting room was inspired by the icons on the Unilever’s logo, and different color themes were used for each one. Colorful and vivid color palette was used.
Designer: Studio 13 Architects
Photography: Ümit Uygun
22 Images | expand for additional detail
客服
消息
收藏
下载
最近
























