查看完整案例


收藏

下载
暗夜与光芒涌动,牵动你我,却不失独立。
affect you and me without losing independence.
人类作为大地的一部分,天生便有着亲近自然、寻求与自然元素联结的倾向。
本案设计将“暗夜与光”作为关键元素营造主题,以材质、色彩、氛围的设计手法表现出截然不同、彼此独立的空间气质,却又暗藏自然环境的融合、包容。
从物质层面到精神层面,运用自然元素,使现代繁华喧嚣回归到那一片大地的静谧居所。
概述
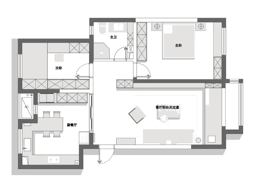
▲ 平面布局
▲ 软装方案
▲ 主题表现本案根据男女主人的喜好大面积使用静谧沉稳的木质,贯穿大地的暖流(火光、温暖)及皎洁如月光的断臂雕塑,打造独属于这个暗夜区域的沉淀、静谧,公私区彼此联通又互相独立,围绕于家的边境,风的流动加深每一区的联结,牵动你我,又不失各自独立的领域。
实景 01【入户玄关】
纯黑与木质的材质在墙面一分为二,隐形满足功能。
明亮的壁炉悄然跃动,仿佛是欢迎进入者的待客仪式。
02【公共客厅】
壁炉的火光、天花板灯光、石材地面在公区的玻璃门板上倒映出来,多种材质的融合显的如此丰富。
暗色系的主色调里,客厅空间与地台做了高低的起伏,功能分区明显且各司其职,常规的客厅有了不一样的打开方式。
以白色棉麻的沙发和考究的家具单品和雕塑给这里增添了几分艺术的美感。定制的艺术挂画和断臂雕塑,营造柔和的空间冲击感。
采用棉麻布料和石材边几,搭配细腻地毯,材质转换让空间更有层次感。
维纳斯(Venus),是罗马神话中美的女神,微微扭转的姿势,使身体构成一个和谐而优美的螺旋上升体态,富有音乐的韵律感,充满了巨大的艺术魅力。
陶瓷石膏雕塑,质朴的粗糙表面却拥有优美的曲线,营造艺术感空间氛围。
向阳区域用两阶的地台做出了鲜明划分,各司其职却又彼此独立。无论是喝茶还是冥想,都有了绝佳的生活体验。墙面线条处理是客厅墙面的延伸,波浪纹理打破空间局限。明亮规整的另一个角度,暗与光,明暗对比,感受身边包容一切日常细节的美好。
金属置物架、黑色台面的处理,餐厨空间有着最简约的冷静表达。
纯黑的空间里,极好打理不是唯一的答案。定制化的哑光橱柜、餐桌甚至电器,简洁硬朗,甚至可以窥到包豪斯美学的姿态,家,应该提供给居住者随心所欲的状态,不拘泥于形式或者目光,选择和创造令自己舒适的环境,钟爱和喜欢是唯一的理由。
布局得好,家里也可以是一个移动式酒吧。仿佛嵌在墙体的置物架,下班回家闲暇之余,给自己放一个随意畅饮的假,作为庆祝一天结束的 happy ending。
▲ 软装单品
①德赛斯岩板一体墙面
②瑞好/Cleaf 板材
③香格里拉帘
04【主卧】
冬日最美好的状态,必定是暖暖阳光照进房间,把空气烘烤的温暖。
而温润木质包裹下的房间,搭配毛毯子,推开门,一下子拥有了抵御寒冬的居家温馨感。
日常生活的氛围,是最具有疗愈感的。
木质调过渡,线条与柔和光线是整个空间的焦点,也是基调。
简洁干净的室内空间,深色系配色,呈现出“柔和、内敛、平衡”的气质。深色木皮、与金属、玻璃、羊皮座椅等材质,组合成一抹低调的质感。
▲ 软装单品①Molteni&C 单椅②全铜++ 玻璃吊灯③香格里拉电动帘
05【冷静次卧】
家是人的内心折射,大面积的暗色系不仅仅代表冷酷,同时也拥有慵懒、神秘的气质。
规整的收纳空间与榻榻米,归根结底,都是在袒露内心,整理真正的需求,寻找自我。
06【洗手间】
镜柜与灯带、线条的灵活组合,让人发现美和理性原来也可以共存。人工增加的灯光,让这个冷硬石材的卫浴空间一下子明亮、舒适,每个人的在意的细节之处不同,但我想,一个暗色系充满整洁感的卫浴空间,是构成舒适生活体验感里必要的一环。
Type 建筑:125㎡平层住宅
Design Team 全案设计:周龙祯 陈思彦
Furniture Soft 软装设计:别漾陈设
photography 摄影:辰吾工作间
END|感谢关注
客服
消息
收藏
下载
最近


















































