查看完整案例


收藏

下载
对于许多生活在大城市里的小青年来说,小公寓可能是他们拥有的第一个家。今天的案例就来自一对刚步入社会不久的年轻人,这是他们的第一套房子,一间 42㎡的商住两用小公寓。
房子不大,而且空间设计上多多少少还有些小毛病,层高最高的地方有 3.2 米,最低的地方又仅有 2.3 米。他们希望这里能成为一份长久保存的记忆,即使以后换房也不打算卖掉。跟设计师沟通自己的需求后,双方达成了“经典不过时,美观且实用”的共识,让我们看看他们是如何实现的呢。
新锐 90 后室内设计师,生活方式主义者,处女座的前网红咖啡店店主,毕业后开了一家咖啡店,慢节奏的安逸生活让她思考内心的真实渴求,籍于对家居美学与空间设计的热爱,2018 年重新调整出发投身到自己热爱的行业里。
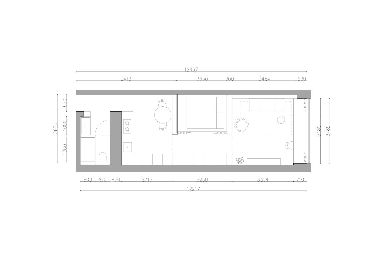
1,平面布局,动线规划单调;
3、厨房闭塞且距离用餐区太远;
4、餐厅/客厅/卧室空间划分不明晰。
1,重新进行空间划分,每个功能区各自独立,动线流畅;
2、改变过于狭长的过道,让进门后的视线止于餐厅;
3、厨房和卫生间位置置换,让餐厨区域合并,增加空间利用率;
4、小浴室也能干湿分离,且放置了浴缸;
5、将采光最好的空间设置成起居室。
置物架:Vitra 乳胶漆:Myladns 60 色号 微水泥:宅匠
一体无缝的微水泥地面,以及跟墙面刷成了同色号的防盗门,让小空间显得更加简约干净。进门右手边是一组顶天立地的收纳柜,不破坏空间整体性,与门上的挂式收纳搭配起来,共同提供了充足的收纳空间。
边几:-Tradition 单人沙发椅:-Tradition
客厅是整个房子里层高最高的区域,3.2 米的层高和整面大落地窗相搭配,让人不自觉地就感到心情开阔起来。这个空间的色调延续了整体的温柔奶白,但是设计师特意放置了一个暗红色的主沙发做点缀,让视觉更富有生机。
落地灯:101Copengagen
地毯:Classic Collection
这款沙发在最初设计时就是为了民政局结婚登记等候而准备的,作为一对爱侣的新家具,再合适不过了。
黑色的沙发腿和黑色挂画、黑色花瓶、黑色插座相呼应,在纯色的大背景下呈现出独有的沉稳。
厨房和卧室与客厅之间有不小的层高差距,而且厨房和卧室上方还有许多管道需要隐藏起来,这样一来,显得两者和客厅之间的高度差就更大了。但也正因如此,视觉上的空间感变得更有趣。为了让夜晚的灯光氛围更有层次,设计师用了九个隐藏了灯带的圆孔来加持。
为了让灯光效果更有层次感,内侧做了一层隐形缝隙,即便在白天不开灯的时候也会投下阴影,细节之处更增美感。
窗前的百叶窗与纱帘相互搭配,调节光线方向和明度,营造出静谧的光影氛围。沙发、地毯、纱帘、茶几、墙面,空间中的颜色基本统一,但材质更不相同,和谐中不失丰富。
工作椅:-Tradition
沙发的对面定制了一排不锈钢收纳柜,由于投影的需求转移到了卧室,客厅就不再放置电视。不锈钢材质的现代感在空间中形成反差,悬空的轻盈设计,简约脱俗。
台灯:Anglepoise Paul Smith
采光极佳的落地窗前定制了一张长书桌,供业主在家办公或阅读时使用。桌面下做了一排抽屉,用于随手收纳。
书桌台面上内嵌了电源轨道,能够根据使用位置的具体变化而移动,完美解决了插座位置问题。
全屋柜体定制:三只喜鹊
空间有限,餐厅和厨房并为一体。一整面墙的高柜充分利用了空间,将冰箱、洗衣机、烘干机、收纳柜都纳入其中,隐藏起来。柜门用按压回弹的方式代替了把手,视觉上简洁干净。
业主很少在家做饭,日常生活中多以简单的烹调为主,所以取消了燃气灶,设置了内嵌式的电磁炉,更加节省台面空间。
抽油烟机和洗碗机则隐藏在亚光的不锈钢柜门里,稍稍打破整体一致色调的平衡,让厨房多了一丝随意的生活气息。拉丝的不锈钢柜门不易留下指纹,方便日常打理。墙面也同样做了一体无缝微水泥,防水抗污,便于清洁。
吊灯:-Tradition
餐桌:-Tradition 餐椅:Fredericia 餐椅:CarlHansen-son
操作台的对面设置了一张供两人使用的小餐桌,设计师在这里借用卧室的空间做了一组开放的壁龛,方便置物的同时增加了空间的层次感与纵深感。餐厨区采用了浅橡木色的人字拼接地板,为极简风格增添了一份暖意。
餐桌和餐椅都来自一家丹麦设计品牌,一方面沿袭了经典设计的简洁,另一方面也不失现代感的趣味性。
布帘隔断 让空间更灵感
穿过餐厨区就进入到了卧室的区域,左边是顶天立地的衣柜,右边是睡眠区,两者之间通过亚麻材质的帘子做了隔断,平常将布帘拉上,就留出了独立的动线。
壁灯:-Tradition
睡眠区的双人床是根据空间大小定制的,床垫做了下沉处理,让整体空间重心下降,尽可能地减少小空间的压抑感。床品的材质与布帘一致,都是自然的亚麻元素,两种颜色混搭,富有层次感。一盏造型简约的小小壁灯,打破了空间的沉闷,添一抹温馨。
床头的矮台可以用于放置水杯,也可以用于放置投影仪,浅色小空间包裹感很好,窗帘一拉就能成为一个小小的私人影院,营造出一种浪漫的氛围感。
极简布局,再小也要实现泡澡自由
毛巾架:Ferm Living
玄关的一侧就是卫生间的空间,整体色彩与玄关保持一致。亚光乳胶漆墙面与一体无缝的微水泥地面颜色相近,但截然不同的材质又使两者拉开了层次感,和谐且不单调。
特意定制的洗手台采用了和墙面乳胶漆同色的肤感烤漆,悬空安装,下方的空隙可以用于收纳扫地机器人。顶部暖白色的灯带一方面补充了光源,方便日常使用,另一方面也为空间增加了灵动感。
定制的洗手台颇具匠心,岩板一体的台盆耐磨性十分出色,左侧的隔板活动可取,可以根据使用习惯自行调整,隐藏式的下水口,视觉效果上简单利落,充满艺术感与巧思,日常打理起来也不费力。
挂壁式马桶让卫生死角不再烦心,马桶上方的空间被打造成了储物柜,柜门连同墙面也做了防水一体的微水泥,材质的抗污防水性让日常清洁变得轻松。
虽然小户型空间有限,但提升幸福感的浴缸也并非不能实现,内嵌式的浴缸将空间的利用率大大提高。马桶与浴缸之间日常用浴帘做基础的隔断,手持花洒和龙头的高度相一致,视觉上更和谐统一。
为了保证空间的通透感,干湿区域之间采用了透光不透视的玻璃门做分隔,区别于如今随处可见的长虹玻璃,银波纹的设计要别致许多,与周遭的白色相搭配,展现出一种明快的朦胧美。
对于热爱生活的年轻人来说,一间只有 42㎡的小家并不能限制住他们对美好生活的想象,更不能降低他们对生活品质的追求。少了华丽繁复的装饰,小家变得简约又不简单,也许只要一隅之地,就能追求心之所向。
客服
消息
收藏
下载
最近































