查看完整案例


收藏

下载
由马岩松带领的MAD建筑事务所发布了海南科技馆的方案设计。这是MAD继“海口云洞图书馆”之后,为海南设计的又一个重要公共项目。
▼项目概览,preview © MAD
海南科技馆是海南省的省级科技馆。科技馆位于海口市西海岸长秀片区,这里汇聚五源河国家湿地公园、体育场馆,是海南自贸港重要的科普基地和优质旅游景点。
▼建筑外观效果,exterior rendering © MAD
▼“原始雨林与未来科技相遇” “Pristine Rainforest Meets Future Technology” © MAD
本项目总建筑面积46,528平方米,地上建筑面积27,782平方米。地上场馆主要包括科技馆主体建筑、天象馆、风雨连廊和室外广场等。
从城市远观,科技馆主体建筑螺旋上升。当参观者进入园区时,抬头可见漂浮于丛林之上的科技馆。科技馆表皮采用FRP材料,如一个银色反光体,极具未来感。
▼科技馆主体建筑螺旋上升,The main building spirals up © MAD
由于海南气候潮湿多雨,阳光充足,连廊为市民提供遮阴避雨的舒适环境。以科技馆主展馆为核心,延伸起伏的架空连廊向四面八方展开,参观者可以从各个角度进入。连廊将不同功能的场馆连接在一起,连廊北侧为巨幕影院和飞行影院,西南角为天象馆和天文观测台。
▼连廊将不同功能的场馆连接在一起 Corridors link the different functions of the venues © MAD
▼架空连廊,the elevated corridor © MAD
海南科技馆采用了独特新颖的结构体系,由三个落地核心筒、弧形桁架、屋盖、及螺旋坡道组成,实现建筑效果与结构体系和谐统一。
▼结构分析图,structural analysis © MAD
参观者进入场馆时,仰头遥看,科技馆内部以一条螺旋状的斜坡贯穿展览空间。天光透过玻璃穹顶洒入宽敞的中庭,明亮温暖。
▼中庭,atrium © MAD
▼玻璃穹顶,the glass dome © MAD
科技馆主体为六层,分为地上五层和地下一层。设计的室内游览动线是由上至下。参观者可先搭乘核心筒电梯直升到顶层的360度观景台平台,遥望大海、城市景观。随后参观同层的前沿科技和太空展厅,沿着坡道,过渡到四层的海洋和生命科学展厅、三层的数学和科学浪潮、二层的多媒体互动体验区和儿童乐园。
▼功能分析图,programme © MAD
▼室内游览动线由上至下,circulation diagram © MAD
▼展厅内部,exhibition area © MAD
当参观者沿着坡道向下游览时,可透过玻璃幕墙欣赏室外的景色,也可通过开放的坡道空间一窥不同楼层的展厅,坡道展厅亦设有展陈内容,延伸观展体验。
▼坡道展厅,ramp exhibition © MAD
科技馆整体环境由丰富多样的热带植物包裹,随处是自然教育的场所。室外陨坑状的下沉广场、倒影水池、连廊下的灰空间是供大众日常休憩的公共空间。来访者除了参观展览之外,也可以享受大片的自然环境。
▼下沉广场和倒影水池,the sunken square and reflecting pool © MAD
海南科技馆是发现科技与自然奥秘的场所。它不仅是激发大众对科学的好奇心之地,更是一个汇聚公众智慧之地,鼓励大众从城市、自然中寻求想象力。
目前项目处于施工图深化阶段,预计于2021年8月动工,2024年建成并投入使用。
▼总平面图,site plan © MAD
▼首层平面图,ground floor plan © MAD
▼二层平面图,2nd floor plan © MAD
▼五层平面图,5th floor plan © MAD
▼地下一层平面图,B1 floor plan © MAD
▼南立面图,south facade © MAD
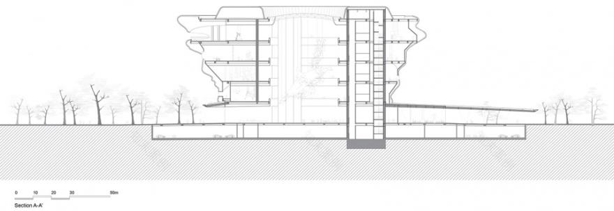
▼剖面图A-A’,section A-A’ © MAD
海南科技馆 中国海口 2019-2024
类型:博物馆
总建筑面积:46,528平方米
地上建筑面积:27,782平方米
地下建筑面积:18,746平方米
主持合伙人:马岩松, 党群, 早野洋介
主持副合伙人:李健, 傅昌瑞, Tiffany Dahlen
设计团队:王一丁, Reem Mosleh, 孙菲菲, Alan Rodríguez Carrillo, Rozita Kahirtseva, 邬巧灵, Edgar Navarrete, 朱禹豪, 郑程文, 张耀辉, 里慧, 杨雪兵, Dayie Wu, 周海萌, 林子涵, 尹建峰, 郭璇
业主:海口市城建集团有限公司
甲级设计院:悉地国际设计顾问有限公司
幕墙设计:阿法建筑设计咨询(上海)有限公司
景观设计:泛亚景观设计(上海)有限公司
室内设计:悉地国际设计顾问有限公司
灯光设计:北京宁之境照明设计有限责任公司
标识设计:悉地国际设计顾问有限公司
展陈顾问:同济大学建筑设计研究院
客服
消息
收藏
下载
最近



































