查看完整案例


收藏

下载
“建筑”的生命就是它的美。这对人类是很重要的。对一个问题如果有许多解决方法,其中的那种给使用者传达美和情感的就是建筑。 ——路易斯 · 巴拉干
沈阳,中国最重要的以装备制造业为主的重工业基地,有着“共和国长子”和“东方鲁尔”的美誉。项目以当地特色的红砖与原始工业为设计基调,从中探索属于沈阳的工业文化记忆。 过去烟筒林立、高大的厂房、齿轮声响、马达欢唱、二八车、铁饭盒......对于老沈阳人来说,这些形象并不陌生。齿轮的轰鸣猛然间划破寂静,蒸汽腾腾的时代瞬间鲜活起来,如今,这一幕幕城市记忆再次被唤醒,将工业辉煌的沈阳定格于此。
奉天作为工业城市,齿轮是不可磨灭的文化符号。 齿轮化身历史的切片,唤起久远的记忆。设计将建筑的红砖引入室内使得室内外做到协调统一,垂落而下的金属杆件简约凌厉,呼应了奉天的工业气质。设计将齿轮元素演化为艺术吊灯,兼具品质与文化记忆,从踏入大堂那一刻起,简洁明快的金属线条与水泥面突出高级的品质感保证了十足的仪式感。
在设计表达上,设计师采用不同的材质打造简练利落的空间感,使设计思路清晰地流动在空间之内。挑高的空间赋予场所宽敞明亮的氛围,在复古的设计元素下,金属的精致为空间提升了精致度,与红砖的粗犷碰撞出新的火花。
洽谈区运用柱跨间的阵列关系打破物象意义的羁绊,以简约、干净回应现代人的理性、克制。柱跨间的做旧金属拥有粗粝的质感,宛如一个古老的女神,褶皱中富含美感。水吧采用了金属与石材两种材料相互融合,身处其中便能直接感受到自然变幻的意象空间。
从空间维度来看,工业文明在文明过程中是独一无二的,是一种进步的力量,从这股力量中得到的感受皆为艺术。场景之内皆是结构艺术下点、线、面的再造,由点连线,由线集成面,在不同的维度中穿插相融。
空间设计中不断提取齿轮元素,向多维方向深化发展,贯穿空间,从原始工业中体现现代艺术的精品质感,彼此关联但各有特色,打造丰富的空间感受。
“城市时光”机械装置 设计元素的一以贯之为空间联动增加主题印象。时间在机械美学装置的指针的左右摆动中缓缓流过,记录下城市在时光中的变迁。
长桌区呈现了空间的一体性与联动性,结合自然韵律将场所串联,从外至内地与室外景观相融合。时间在机械美学装置指针的左右摇摆间缓缓流过 仿佛飞鸟在挥动着翅膀,在当代时代中周而复始,是血液里永存的美好回忆。
“飞鸟”装置艺术 为了避免工业感的坚硬冰冷,长桌区放置了群鸟从留声机飞出的装置。“飞鸟”装置的置入,齿轮化为飞鸟寓意着自由。留声机播放的不仅有旋律,更有生命活力,从齿轮变成小鸟,鸟羽扑簌间让坚硬的红墙内生出一份柔软。
水磨石与金属材质之间的融合达到了连贯的材质效果,以联动空间的理念选择以优质的材料,布置考究的灯光和精心的细节处理来强化空间表达。水磨石的大面积使用,为空间带来硬朗、大气的质感。
整个空间以独具匠心的设计手法,使室内整体一以贯之,以工业设计突出先锋感的空间营造作为视觉享受,在文化记忆的影响下提升艺术氛围。
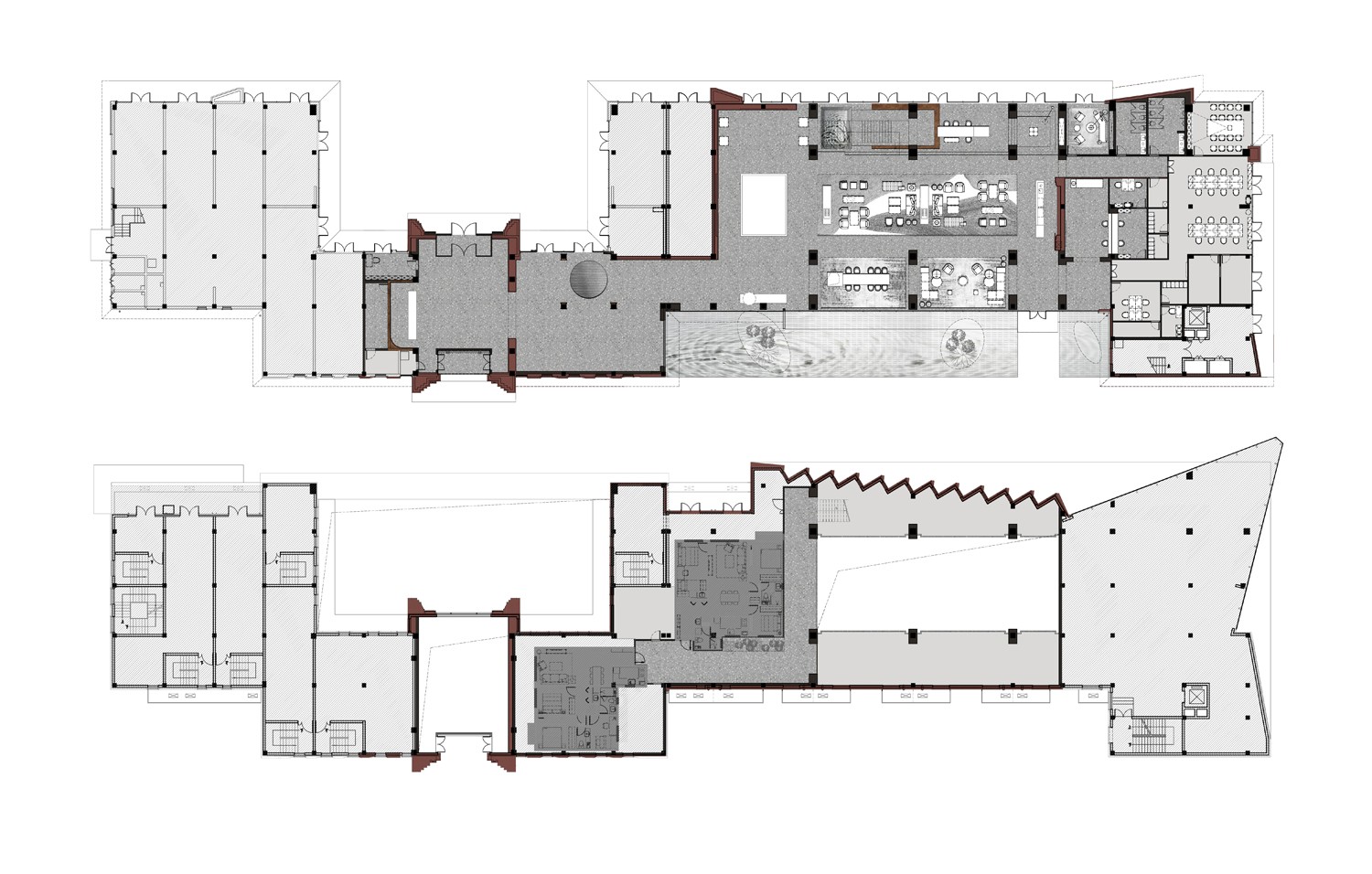
平面布置图 项目名称 | 沈阳招商公园1872示范区 甲方单位 | 招商蛇口 项目地址 | 沈阳 PM负责人 | 郝晓龙、张笑琳 硬装设计 | G-ART集艾设计-北京团队 软装设计 | G-ART集艾设计-全逸工作室 设计指导 | 贾逸俊 完工日期 | 2021年5月 项目摄影 | 郑焰
客服
消息
收藏
下载
最近

































