查看完整案例


收藏

下载
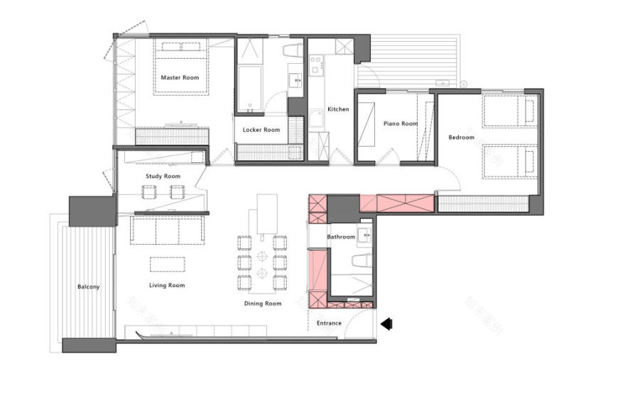
原有空间拥有大面落地窗,加上高楼层,采光已经很好,因此格局上没有变动太多,尽可能的不让装潢将光线挡住;客厅我们不做过多的装饰,用天花高低差以及色块区分空间,剩下的就留给大面落地窗外的城市景观吧!
我们将第四房改为玻璃半开放式书房,看似大众的配置,其实我们用了一点设计手法,让人进到空间时感觉开阔,好像没有什麽收纳,但我们将所有的储藏及收纳空间都整合在旁边,尽可能不要遮住光线;柜子并不是随意放置这麽简单,而是要经过「整合」,与墙面、窗户、天花板做连结,这就是设计的意义。
入口进来映入眼帘的就是落地窗外的景观,我们将收纳整合在右边的盒子四周,包含了储藏室、鞋柜、展示柜和酒柜等等;落尘区地板为义大利地坪涂料,转角隔出的储藏室也与客浴门片整合。
电视墙面保持简洁,并包版到窗边刻意做一个弧形收尾,有种板子脱开的感觉,加上後方墙面与天花灰色系增加层次感;我们在大部分的案子中都是以白色为主要基调,这一次我们则以大面灰色为主,希望营造中性稳重的氛围,包含木地板也选用灰橡。因沙发上原有一只大梁穿过,所以我们用薄板造型修饰,折板的设计将书房包覆也延伸到入口玄关,客厅上方就尽量拉高。
因为原有厨房在里面,所以餐桌也整合了中岛,中岛的桌脚用铁件圆管支撑,表面烤玫瑰金颜色,呼应空间中的灰色系;上方的云型灯条也很适合和长条俐落感的中岛作搭配。
主卧也是从客厅延伸到房间的大面落地窗,窗边设计卧榻,电视墙与拉门整合,不影响後方柜体收纳下还可以左右移动;小孩房的床头我们用雷射雕刻刻出世界地图,再一块一块拼上去,虽然费工,但效果真很好!
设计:虫点子创意设计
图片 © 虫点子创意设计
客服
消息
收藏
下载
最近
































