查看完整案例


收藏

下载
Carturesti Carusel (罗马尼亚语:CărtureștiCarusel,直译为“光之旋转木马”)
是一家位于罗马尼亚首都布加勒斯特Lipscani街55号的书店,为城市中心居民的阅读、社交和艺术探索提供了一片文化空间。
Cartuesti Carusel是将纪念碑的古老部分与未来主义、现代概念相结合的全面设计,
整个建筑沐浴在白光之中,蜿蜒的地板形状营造出类似于移动旋转木马的动感氛围,完美契合了它的名字——“光之旋转木马”。
设计师选择了具有暖光谱的定时照明系统。
看似随机分布,但所有灯具的布置已经经过计算并能满足各种产品的照明需求。
无论是靠近图书、光碟等产品展架所需的光线,还是其他必要的照明光线(两者统称为功能性光),或是让环境氛围锦上添花的背景光,都经过精心精算和设计。
轻盈通透的白色空间、顶层天窗和温暖的人工照明,这一切的灵感都源自于星空,尽量让你的所见就像夜晚透过中央天窗看到的那样。
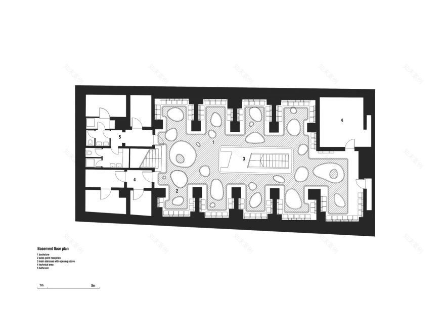
Carteresti是一家概念型旗舰书店,占地1000㎡,拥有超过10000本书籍和5000张专辑和电影DVD。
地下室设有多媒体区,一楼设有艺术画廊和展览区,顶层设有植物咖啡馆和小酒馆,提供美味的食物、咖啡、茶、葡萄酒等。
这栋优雅的19世纪建筑在1903年由着名的Chrissoveloni银行家族占有,在罗马尼亚共产主义时期,它被没收并变成了Familia商店。
Jean Chrissoveloni先生(创始人Nicolas Chrissoveloni之孙)投资100万欧元,签署Square One建筑事务所对其进行历史性的改造,工程历时5年。
客服
消息
收藏
下载
最近

















































