查看完整案例


收藏

下载
这世界如果有更多的人热爱美食与诗歌胜过爱黄金,这世界会是一个更美好的地方。 The world would be a better place if more people loved food and poetry than gold.
—— 托尔金 J.R.R.Tolkien
乔村创始人2017年在杭州创立了乔村二十八道.钱江世纪城店,这也是乔村和澜廷合作的首店。连续三年位列大众点评必吃榜。好的餐厅与设计从来都是相辅相成的,时隔三年,不同领域的合作伙伴再次携手。将饮食上升到美学的层次,严格甄选原材料,凭借对美食的研究、创作和极佳的审美,加之高雅格调的设计氛围,旨在为美食爱好者带来一场心灵之旅。
In 2017, the founder of Qiaocun set up Qiaocun Twenty-eight paths·Qianjiang Century City in Hangzhou, which was also the first restaurant that cooperated with Lanting. It has ranked on the Dianping top list for three consecutive years.. Great restaurant and design are always complementary to each other, after three years, different fields of partners working together again. The food will be raised to the aesthetic level, strict selection of raw materials, by virtue of the research, creation and excellent aesthetics of food, oupled with the elegant and simple style of design atmosphere, it aims to bring foodies a spiritual journey.
▼餐厅入口立面,entrance facade of the project ©王大丑
▼沿街的落地窗,Floor-to-ceiling Windows along the street ©王大丑
▼隐藏式的入口,Hidden entrance ©王大丑
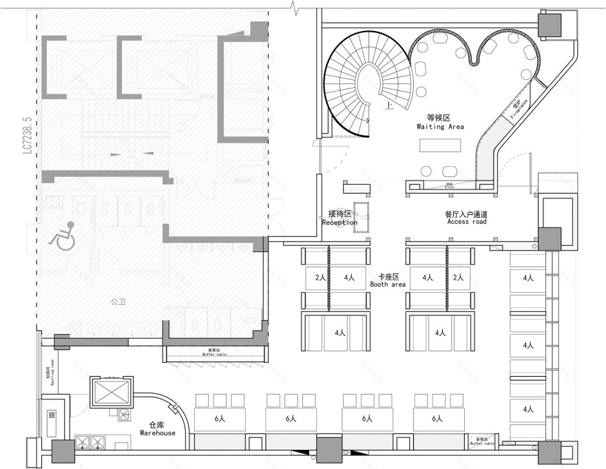
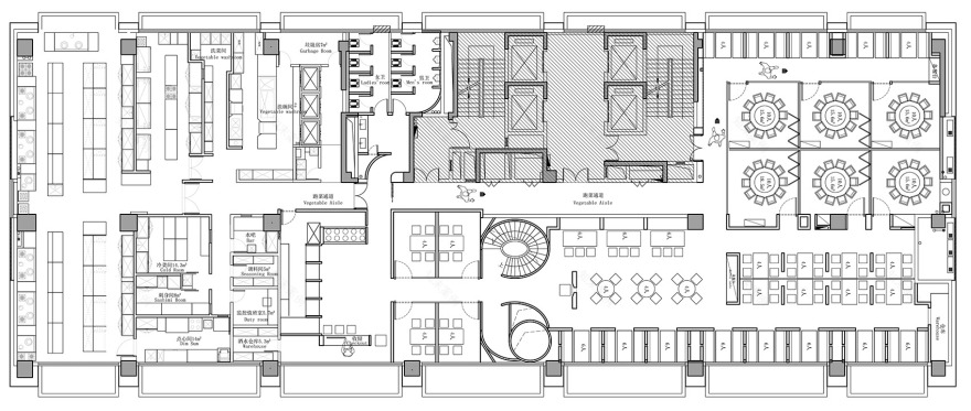
设计团队热衷于通过设计来营造自然的气息,将建筑设计的手法运用到室内,重视细节的呈现,使用最原始的材料清水混凝土作为建筑的主要肌理,提升建筑空间的尺度感。功能分区:一层为接待区、等候区、散座区域;二层为散座区、小包厢区域、厨房;三层主要是大包厢区域。
The design team is keen to create a natural atmosphere through design, applying architectural design to the interior, paying attention to the presentation of details, using the most original material which is fair-faced concrete as the main texture of the building, to enhance the sense of scale of the architectural space. Functional zones: The first floor is the reception area, waiting area and seating area; The second floor is seating area, small mezzanine area and kitchen; The third floor is mainly the big mezzanine area.
▼底层入口等候区剖面图,section of the ground floor entrance waiting area ©杭州澜廷设计
入口门厅:以清水混凝土作为肌底,通过建筑手法将入口隐藏,通过小景陈设以及灯光效果引人入胜。接待区:入口通道两侧采用天然的老木头行成阵列感,顶部为拱形,通过烛台及灯带的指引,尽头接待台庄重而有仪式感。
Entrance foyer: It is hidden by architectural techniques with plain concrete as the base, achieving attractive lighting effect with small scenery display. Reception area: The entrance passages are made of natural wood with arched top, the reception desk is standing solemnly at the end combining with candlesticks and light bands.
▼入口通道,The entrance passages ©王大丑
等候区:圆形的挑空区域直通二楼,对应底部等候区圆形卡座,与旋转楼梯交相呼应。搭配进口中古家具,尽显质朴之美。
Waiting area: The circular empty area leads to the second floor, complying with the circular booth and the spiral staircase, showing the beauty of simplicity with medieval furniture.
▼等候区,Waiting area ©王大丑
▼等候区圆形卡座与旋转楼梯交相呼应, the circular booth and the spiral staircase ©王大丑
▼等候区细部,details of the waiting area ©王大丑
散座区:设计师注重光影效果的打造,运用镂空几何砖,既能与清水混凝土的肌理统一,同时又能引进光影效果,增加趣味性,使散座区域既开放又私密,保证顾客的用餐体验。
Seating area: Designers have focused on the creation of light and shadow effects in hollow geometric bricks, which not only can be unified with the texture of plain concrete, but also introduce light and shadow effects, returning both open and private for the guests’ dining experience.
▼散座区入口,entrance of the seating area ©王大丑
▼镂空几何砖使散座区域既开放又私密,the hollow geometric bricks returning both open and private for the guests’ dining experience ©王大丑
▼散座区,the seating area ©王大丑
▼统一的清水混凝土肌理,unified concrete texture ©王大丑
▼散座区空间细部,spatial details of the seating area ©王大丑
▼桌椅与灯具细部,detail of the table and the lamp ©王大丑
包厢区域:包含用餐区、水吧、品茶区及休闲区,采用木质和混凝土的搭配柔化空间,朴实无华的软装搭配为整个空间创造了最原始的体验。强调采光、尺度、私密感以及光影效果的营造,提供适合沉思和私人用餐的宁静而温馨的室内空间。尽量让不同的区域产生关联并保持各自独立。通过不同的光线、视觉和空间整合,诠释自然质朴的设计理念。
Mezzanine area: It includes dining area, water bar, tea room and leisure area. The collocation of wood and concrete could soften the space, while the simple and unadorned soft outfit have displayed the most original experience. We have emphasized the lighting, scale, privacy and light effects on the embraced closeness of shadow, offering a quiet and warm interior space for contemplation and dining. We have kept the different related areas in separate sections, so that interpreting the design concept of natural simplicity through diverse light, visual and spatial integration.
▼包厢休闲区,leisure area ©王大丑
▼适合沉思和私人用餐的宁静而温馨的室内空间,a quiet and warm interior space for contemplation and dining ©王大丑
▼强调采光、尺度、私密感以及光影效果的营造,the lighting, scale, privacy and light effects ©王大丑
▼休闲区空间细部,spatial details of the leisure area ©王大丑
▼包厢,Mezzanine area ©王大丑
过道:光与影的融合,尽显寂静质朴之美。空间整体风格运用单色调,搭配精致而细腻的摆件,用宁静、精致取代单一色调空间的沉闷和乏味。空间采用进口古董老家具,搭配原始清水混凝土的自然肌理,化繁为简,为空间营造一种舒适、自然、简朴的就餐环境。
Corridor: the fusion of light and shadow reveals the beauty of silence and simplicity. We preferred the single tone in overall style with delicate and exquisite ornaments, which also replaces the dull and boring monotone with quietness and glory. We adopted imported vintage furniture and natural texture of raw concrete to simplify the complexity, thus creating a comfortable, natural and simple dining environment.
▼过道,Corridor ©王大丑
▼精致而细腻的摆件,delicate and exquisite ornaments ©王大丑
▼光与影的融合,the fusion of light and shadow ©王大丑
▼餐厅logo,logo of the project ©王大丑
▼底层平面图,ground floor plan ©杭州澜廷设计
▼二层平面图,second floor plan ©杭州澜廷设计
▼三层平面图,third floor plan ©杭州澜廷设计
▼立面图,elevation ©杭州澜廷设计
▼用餐区剖面图,section of seating area ©杭州澜廷设计
客服
消息
收藏
下载
最近








































