查看完整案例


收藏

下载
当经典被传承,时代被改写,未来被创造。人居场所发生着质的改变,无论老宅村落的古朴静谧,现代空间的时尚奢华,还是未来人居的智能科技,都蕴藏着居住者对这片空间的情感与依赖。
When the classics are passed on, the times are rewritten and the future is created, our dwellings are undergoing qualitative changes. No matter the simplicity and quietness of old homesteads, the fashion and luxury of modern spaces, or the intelligent technology of future homes, all contain the occupants’ feelings and dependence on the space.
不断更新迭代的社会环境和生活习惯,潜移默化地影响人们对理想人居的需求。面对新的考验,我们提出“如何建立精致优雅、安放自我的生活场?”这一思考。
The constantly renewed and updated social environment and living habits are subtly influencing people’s demands for an ideal residence. Facing new challenges, we think about how to build an exquisite and elegant living space to place ourselves.
并以周边客群为基础,结合中青年追求生活必须功能、勇于探索新鲜事物等特质,通过流动的现代语言,将“线”与“形”贯穿整个场域,实现空间与情绪交融。
Based on surrounding customers, with young and middle-aged people’s pursuit of functionality in life and courage to explore new things in mind, we adopt "lines" and "shapes" throughout the whole space through a flowing modern language, to achieve the fusion of space and emotion.
我们在空间里注入对地域人居品质与生活方式的新思考,用艺术、情感与细节缔造了一个时尚舒适、精致而不乏品质现代的生活场。
We inject our new thinking on regional living quality and lifestyle into the space to create a stylish, comfortable, exquisite and high-quality modern living space with art, emotions and details.
简与奢 | 恰到好处的精致
摒弃和突破传统空间布局,厨房和客餐厅以开放、流动的手法,形成回字形的行走动线,以更多的交流、互动空间营造更为温馨、舒适的家庭陪伴氛围。
The traditional spatial layout is abandoned and broken. The kitchen and the dining + living room are open and flowing, forming a rectangular ambulatory, creating a warmer and more comfortable family atmosphere with more space for communication and interaction.
充足的采光在金属、玻璃材质下光影流转,一抹佳兆业“橙”点缀空间情绪,在沉静稳重中渲染着一份低调与热烈。开放性厨房岛台划分则不动声色地保持着空间的开阔性与通透感。
Plenty of sunlight flows on the metalware and glassware. A touch of Kaisa’s "orange" embellishes the space’s mood, rendering a low-key passion in calm and dignity. The open kitchen island quietly retains a sense of openness and transparency in the space.
细节处减少繁杂的装饰,在简与奢之间追求着一种平衡,干净的用色、简约的质感,传达着空间居住者的生活态度与品味。
Intricate decoration is reduced in details to pursue a balance between simplicity and luxury. Clean coloring and simple texture convey the occupants’ attitude toward life and taste.
线与形 | 温馨时尚的舒居
视觉延伸至主卧,在低调的灰中搭配活跃的橙,并在墙面嵌以木格栅的纹理与质感,用流线型空间过渡链接地面与墙面,以简约手法与环保材质勾勒出纯粹、静谧、多元的生活情境。
The sight extends to the master bedroom, where low-key gray is matched with lively orange. The walls are inlaid with battens, creating the texture of a wooden grille. The streamlined space is a transitional link between the floor and the walls. Simple techniques and environment-friendly materials outline a pure, tranquil, diverse life scenario.
对称墙面上点缀的艺术画作融合空间线条,传递空间层次感。在流动开放的空间里,创造出简约优雅的艺术张力和个性包容的场景能量,构建舒适宁静的休憩场所。
The artistic paintings on the symmetrical walls integrate the lines in the space to convey a sense of depth. In the flowing and open space, a simple but elegant artistic tension and personalized but inclusive scenario energy are created to build a comfortable and quiet place for rest.
缤纷活力的儿童房用金黄、橙、银等鲜明色彩装点孩子彩色的梦,条纹墙面打破空间的内敛,传递张扬的个性。向上跳跃的球员,亦如在家人陪伴下勇于突破、奋力成长的少年。
The kid’s bedroom is colorful and vibrant, using golden, orange, silver and other bright colors to decorate the kid’s colorful dreams. The striped wall breaks the introversion of the space, convey an extroverted character. The player jumping up symbolizes a teenager who dares to break through and strives to grow up with the company of his/her family.
质与美 | 触动心灵的场域
强烈线条感灯饰串联起二楼空间,在大理石不规则纹理中,形成光影流动的韵律,传递出时尚精致且不乏内敛的人文气息,艺术品装置则以多面角度诠释居住者的气质与涵养。
The linear lamps connect the downstairs and upstairs spaces. In the irregular texture of marble, the flowing rhythm of light and shadow is formed, which conveys a trendy, fine and reserved cultural atmosphere. The art installations interpret the occupants’ temperament and self-restraint from multiple angles.
盥洗室双洗漱台设计,可独享一个人洗漱的愉悦心境,亦能与家人共享盥洗的轻松时刻。简约时尚的黑白调与橙色搭配,辅以大理石天然材质的质朴,让家,成为身与心真正的港湾。
The double washstand in the washroom allows the occupants to enjoy the pleasure of washing up alone or share the relaxing moment of washing up with other family members. Simple but fashionable black-and-white tone is matched with orange, supplemented with plain natural marble, turning home into a real harbor for body and heart.
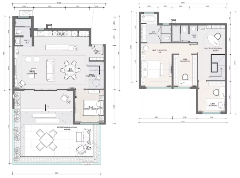
图纸呈现
——
Plan of the Duplex Apartment
▲ 平面图
项目名称:佳兆业晓岸云起叠墅
甲方单位:佳兆业地产西南集团
项目地址:中国·重庆
项目面积:136㎡
设计时间:2020 年 8 月
竣工时间:2021 年 6 月
硬装设计:成都九度装饰设计有限公司
软装设计:重庆元禾大千艺术品有限公司
甲方团队:刘丹、韩端、刘林、林磊、李小东
项目摄影:404NF STUDIO 工作室
Project name: Duplex Apartment of Kaisa Clouds by the River
Party A: Kaisa Southwest Region Real Estate Group
Project location: Chongqing, China
Project rea: 136㎡
Design time: Aug. 2020
Completion time: June 2021
Hard outfit design: Nine Dimension Design
Soft outfit design: Esperluette Chongqing Company
Party A’s team: Liu Dan, Han Duan, Liu Lin, Lin Lei, Li Xiaodong
Photographer: 404NF STUDIO
客服
消息
收藏
下载
最近


























