查看完整案例


收藏

下载
前言
PREFACE
南通叠石桥国际家纺城是国内最集中的家纺商贸中心,云集了众多家纺商户及企业。本案就位于家纺城的核心区域——金一东路。
在行业内卷化及快消式的大背景下,提升商业形象成为了业主的迫切需求。
商业空间的设计离不开流量、网红、热度、消费等关键词。在与业主沟通后,我们把空间的风格定调为当下炙手可热的侘寂风,侘寂的本质其实是与商业空间的属性是有矛盾的,但我们希望通过克制含蓄的设计语言去模糊空间的商业属性。让进入空间的客人能在放松的情境下进行商业活动,从而潜在的影响消费行为。
本案的建筑形式属于联排商户,每家商户有南北两个宽约6米高约10米的独立立面,东西两侧则与其他商户相连。
设计既需要实现在众多商铺中突出视觉识别的目的,同时也需要提升和优化内部空间。
▲改造前室内外实景
方案
立面设计FACADE DESIGN
面对10米高的门头尺度,如何合理利用体量,塑造立面比例美感是我们需要考虑的方向。
方案采取了简化主体、丰富细节的处理方式,使用了1/3的视觉比例来划分立面中心,重新梳理了立面比例关系。
▲南立面效果图
南立面左上方突出立面的条形体块指向LOGO,聚焦了立面的视觉中心,且隐喻了向上的积极概念。右侧内缩式的窗洞可以满足二楼仓库的通风需求,斜切构造以及红棕色的涂刷又给予了观者充足的想象空间。
南入口处没有采用原有的双开门通廊式结构,而是设计了一个内缩式的缓冲区,入口开向了东侧,含蓄而克制的引导了入口,并提升了内部空间的神秘感,提高了人们的探索欲,西侧则作为陈列橱窗。
▲北立面效果图
北侧立面的玻璃砖同样照顾了二楼的采光需求,并同入口两侧的采光窗均采用了内缩一级的设计,通过这一级的落差丰富了立面的构成关系。
室内设计INTERIOR DESIGN
▲模型分解轴测动图
▲原始平面图
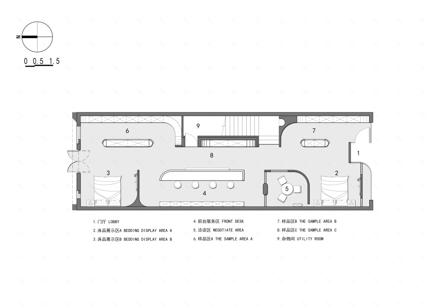
▲平面布置图
▲方案手稿
室内为6X20米的一个狭长空间。需满足面料陈列、床品展示、接待区、洽谈区等功能。
我们仍然保留了动线居中的设计,划分出上下两个功能半区的布置逻辑,但相比原布局,新的功能分区动线更清晰,且极大提升了空间利用率和空间体验感。
上半区利用原有楼梯作为布料陈列区,设置了两个中岛体块作为枕芯陈列区形成环绕式的洄游动线,充分利用了空间,同时提升了参观体验感。
下半区南北两端作为床品展示,居中设置了收银接待台,接待台南侧作为茶室兼洽谈区功能。
实景
客服
消息
收藏
下载
最近









































