查看完整案例


收藏

下载
-户型图/平面布局图 -
原始结构图|The original figure
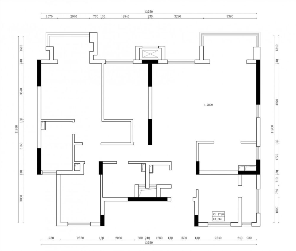
平面布置图|Floor plan
玄关
隐形门的设计让入户的感受简洁干净,看不到零乱的杂物。衣帽间不仅可以收纳鞋服,还可以暂时存放一些快递包裹,非常实用。90°转角柜内嵌电子壁炉,温暖明艳的炉火欢脱地跳跃着,点亮了整屋的氛围。
客厅
在客餐厅的布局上,设计师将原北房间改为厨房;把原厨房空间全部释放出来,利用两段承重墙定制吧台式餐桌,打造出仪式感十足的餐厅区域……通过对厨房、餐厅的巧妙改造,打破了固定格局,使客餐厅面积达到了惊人的60㎡。整体风格遵循业主喜欢的简洁的现代风,以灰、白、黑,搭配胡桃木色为主基调,散发出一种永不过时的经典。
餐厅
餐厅采用定制化的方式,将承重墙巧妙的用木饰面装饰,和餐桌台面连为一体,形成回字形的框景造型。同时,餐桌台面采用经典爵士白岩板材质,还可兼以吧台料理之用,满满的仪式感颇有创意。
厨房
主卧
主人房体现出高级素雅的调性,背景采用墙布硬包的处理方式,内嵌金属条加上胡桃木色的格栅装饰,简约而富有层次感。
儿童房
卫生间
公卫设计了三分离的形式,即干区、马桶间、淋浴房/洗衣房,为生活提供了极大的便利。干区设计有超长的洗手台面、实用的镜柜以及充足的收纳柜。淋浴房和洗衣房合二为一,不仅方便洗衣也隔绝噪音。墙地面统一使用爵士白瓷砖,更为明亮整洁。主卫的则采用米灰色墙地砖,更具高级感。配以暖黄色灯光后,更是多了一分温暖的调性。
项目地址|Location:上海·嘉定
套内面积|area:145㎡
设计机构|Design Agency:简狄设计事务所
客服
消息
收藏
下载
最近
































