查看完整案例


收藏

下载
类型:公寓
地点:明斯克
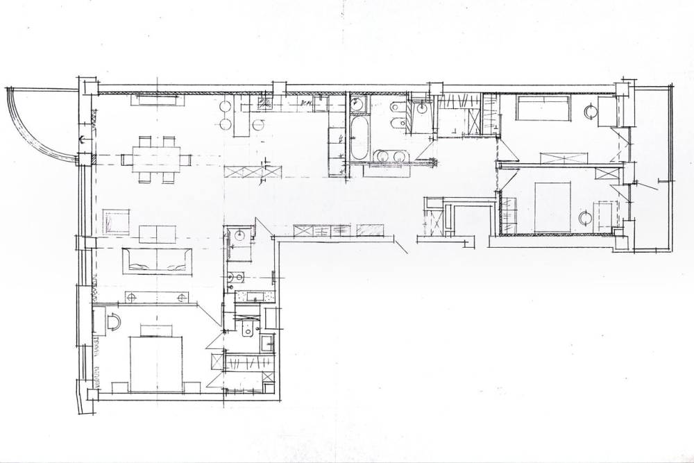
面积:150 м2
风格:不拘一格
构思:短期出租的通用公寓
颜色:柔和的颜色
设计师:Lyubov Pyaskovskaya
这间公寓是为游客以及女主人的朋友和亲戚设计的公寓。这不是该项目的客户第一次与设计师 Lyubov Pyaskovskaya 合作,因此这项工作是建立在完全信任的基础上的。 “我们对这套公寓的外观的品味和想法完全相同。我们都喜欢柔和的色调、自然的纹理和昏暗的灯光。所有的决定都是迅速做出的,尽管事实证明内饰非常灵活,但我们还是设法体现了业主的个性,” Lyubov Pyaskovskaya 说。
这间公寓原本是一个细长的暗室,墙壁是弯曲的。 一切都必须拆除和重建。 由于公寓是为出租而设计的,设计师试图为有孩子的家庭和成熟的夫妇创造一种同样舒适的布局。 例如,两间有窗户可以俯瞰庭院的房间可以用作客房、工作办公室或儿童房。
“在室内设计中,我们没有坚持任何特定的风格方向,混合经典元素、波西米亚风和殖民风格,”设计师继续说道。 - 所有房间都使用相同类型的墙纸,但色调不同,这有助于营造整体形象。 窗户开口处的砖块也从视觉上将房屋统一起来。”
“为了强调公寓的主要优势——从窗户看到的景色——在客厅区域,我们放弃了体积窗帘,转而使用罗马窗帘,并提高了阳台的地板高度,现在您可以舒适地坐在扶手椅上并欣赏城市的全景”。
“公寓里有很多有趣的东西,其中一些是女主人旅行时带来的。 位于用餐区的椅子是在跳蚤市场购买的,以前住在客户的别墅里。 柳条椅和抽屉柜也从她的乡间别墅里搬了出来。 室内也有很多艺术品。 客厅里有灯塔的主图是对公寓位置的一种反映:河岸、高度和视野。”
语言:俄语
客服
消息
收藏
下载
最近


















