查看完整案例

收藏

下载
被北京壮丽的西山景观包围的五里春秋泛文化艺术中心试图创造一个建筑、景观、室内三位一体的项目,它的建筑和室内设计试图让观者可以体验身临其境的被景观环绕的感受。一条连续的从外到内的坡道盘旋上升,远处的景观被动态的而不是静止的引入到建筑中来,此时,景观的“第一本质”便和室内的“第二本质”无缝的联系在了一起。由于室内外都紧密围绕着景观展开,这个向上的路径空间的气氛在某种程度上具有了一种朝拜自然的仪式感。
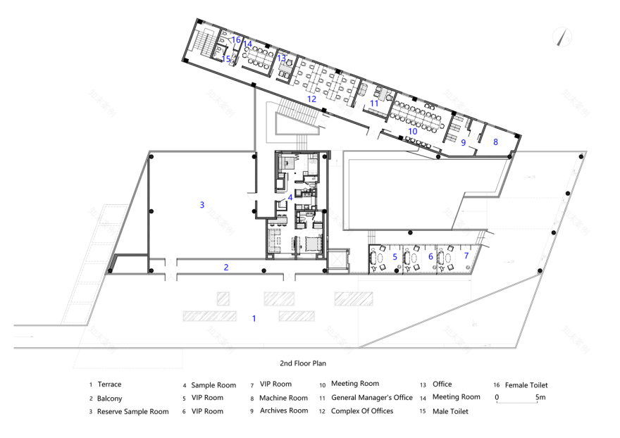
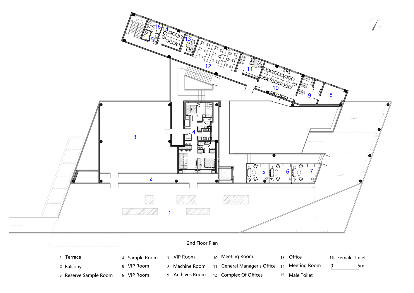
由于项目地段是三角形的,建筑通过一系列曲线墙堆叠在一起回应了基地的轮廓,这些沿水平展开的或空中悬浮的墙以交错的方式创造了一系列多层次的庭院。为了与北京的四合院和长城形成对话,墙体的材料是精心控制比例的混凝土砖,这些砖同时也被用于景观地面、建筑墙体和室内墙体——统一的色调为项目带来了历史感的庄严。该项目包括一个1500平方米的社区体验空间和一个400平方米的滑冰场。
项目以三种方式诠释了自然:第一,室内空间以数字化的方式描绘了自然:“西山秋叶”的标志性印象在这里以天花板上粼粼的木质垂片加以呈现,其颜色由温暖的黄色变成了白色,暗示着从入口到滑冰场的过渡;在更大的尺度上,天花板的层叠递进的曲线形成了“倒置西山”的形态。
第二,第一特征和潜在的第二特征是并列出现而同时又紧密的结合在一起的:环保混凝土砌块被切成薄片,拼成弯曲的具有自然形态的曲线,犹如山丘和流淌的瀑布,在天光和人工光的刻画下展现了自然的凝固和抽象,而自然的易逝与不朽之间的对比带给了人们思考自然的时刻。
第三,远处的景观以动态的方式被引入室内,景观边成为生活空间的一部分。
地址:石景山区黑石头路 99号,北京,中国
客服
消息
收藏
下载
最近







































