查看完整案例


收藏

下载

翻译
Folk Architects created a functional small-family home with a series of multi-use spaces in Storybook House, an extension of a single-fronted Victorian Terrace in Melbourne’s inner North. The brief included requirements typical of period house renovations such as open-plan living, an additional bedroom and abundant natural light. Beyond this, design decisions were influenced by personal nuances, including a need for distinctive zoning with hidden nooks and conscious choices around environmentally friendly, natural building materials.
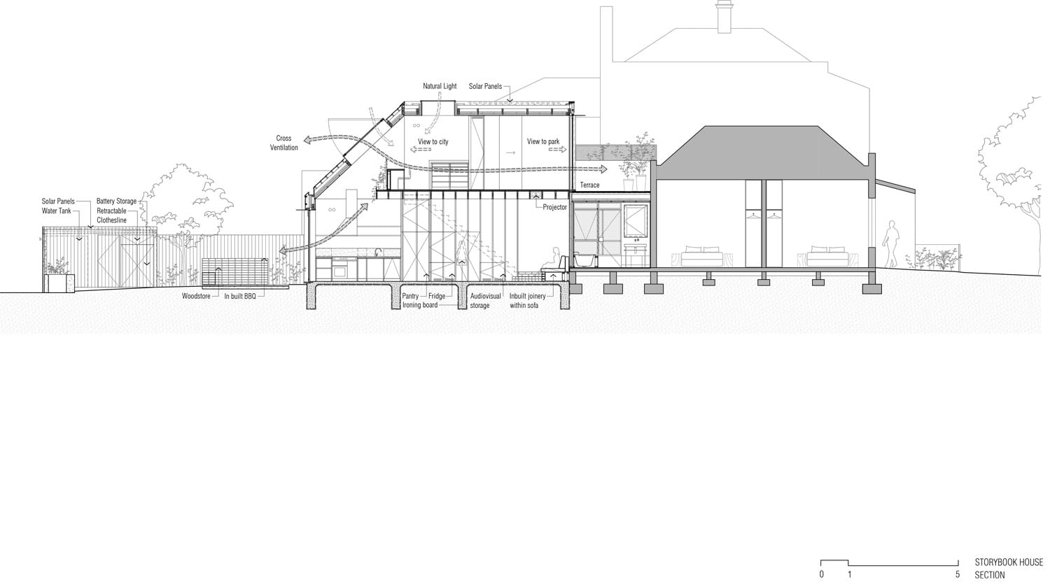
Folk’s design approach was to pack as much as possible into a small building footprint, with no single plane or surface underutilised — for example, the balustrade to the upper-level doubles as a built-in desk and study. The functional planning is tight, however clever tweaks help to create the perception of a larger volume that is efficient and pragmatic, including ceiling heights, mezzanine levels, active circulation spaces concealing a laundry, services and kitchen, and storage under an in-built sofa. Folk Architects have an ongoing interest in small footprint living, often looking to international housing for inspiration. Principals adopted by contemporary Japanese homes, where existing space is used as efficiently as possible, were applied to Storybook House.
The building is curated to frame views to a series of open garden spaces, including internal courtyards, a roof garden, the adjacent park and outlook to Melbourne’s skyline. Implementing such open space connects the home to its local environment while supporting passive ventilation, natural daylight and environmentally sustainable design principles. Framing the outdoor views in an urban environment ensures the clients can engage with their surrounding context and enjoy the light at different times of the day while maintaining privacy.
The Storybook Style houses built in America during the 20s further inspired the architects, in the way in which they transcend architectural conventions to achieve something entirely new, blending art and architecture, whimsy and practicality. The material palette supports this clarity, neutral in tone and texture and subservient to the neighbourhood. White and cream terracotta tiles clad the exterior of the new addition to emphasise its formal qualities and the vocabulary it mimics, that of the traditional pitched tile roof.
Sustainability is also at the core of Storybook House, with the white roof and glazed terracotta tiles assisting in keeping the home naturally cool. Shade management and passive ventilation eliminate the need for air-conditioning, and a large water tank has been integrated into the garden, with roof water captured and reused to flush toilets and water plants. Solar panels with micro-inverters cover the new roof extension.
[Images courtesy of Folk Architects. Photography by Tom Blachford.]
客服
消息
收藏
下载
最近

















