查看完整案例


收藏

下载

翻译
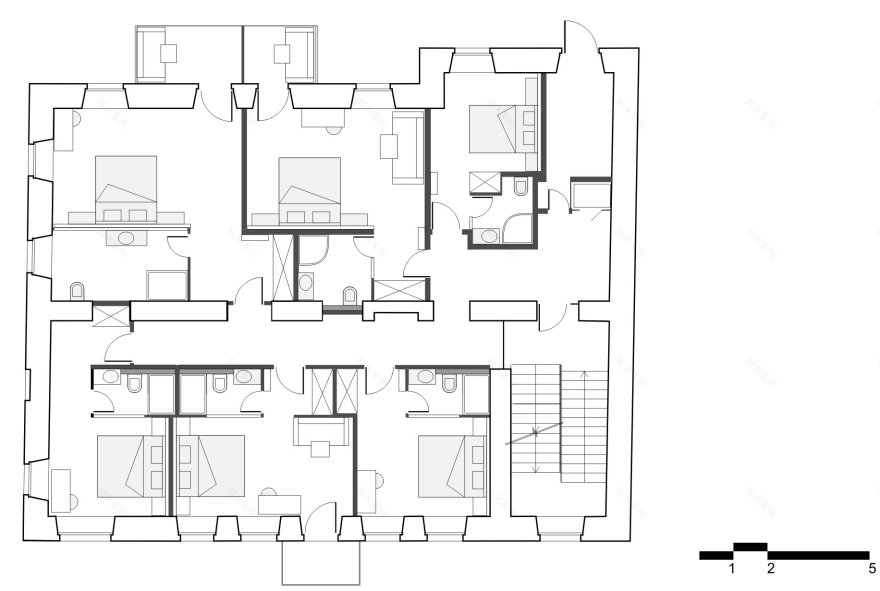
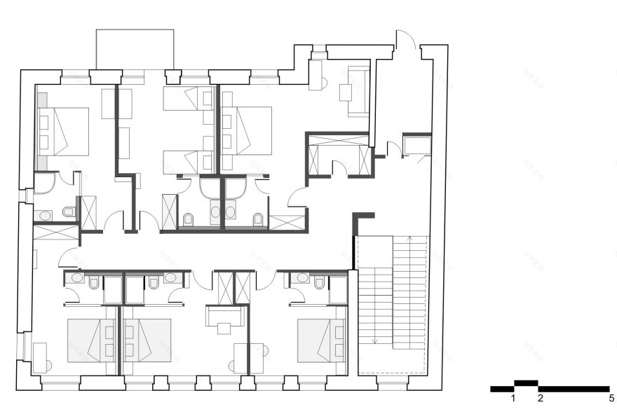
The subject of our project is an ordinary urban house of the early 20th century with an additional floor added in the year 2000. Our aim was simple – to strip away artificial details and reveal the authentic ones hidden behind them, so restoring the building’s original character. We then had to perform a fundamental redesign of the building’s interior. We are grateful to the client for her attention to authenticity and understanding of simple beauty.
客服
消息
收藏
下载
最近






















