查看完整案例


收藏

下载

翻译
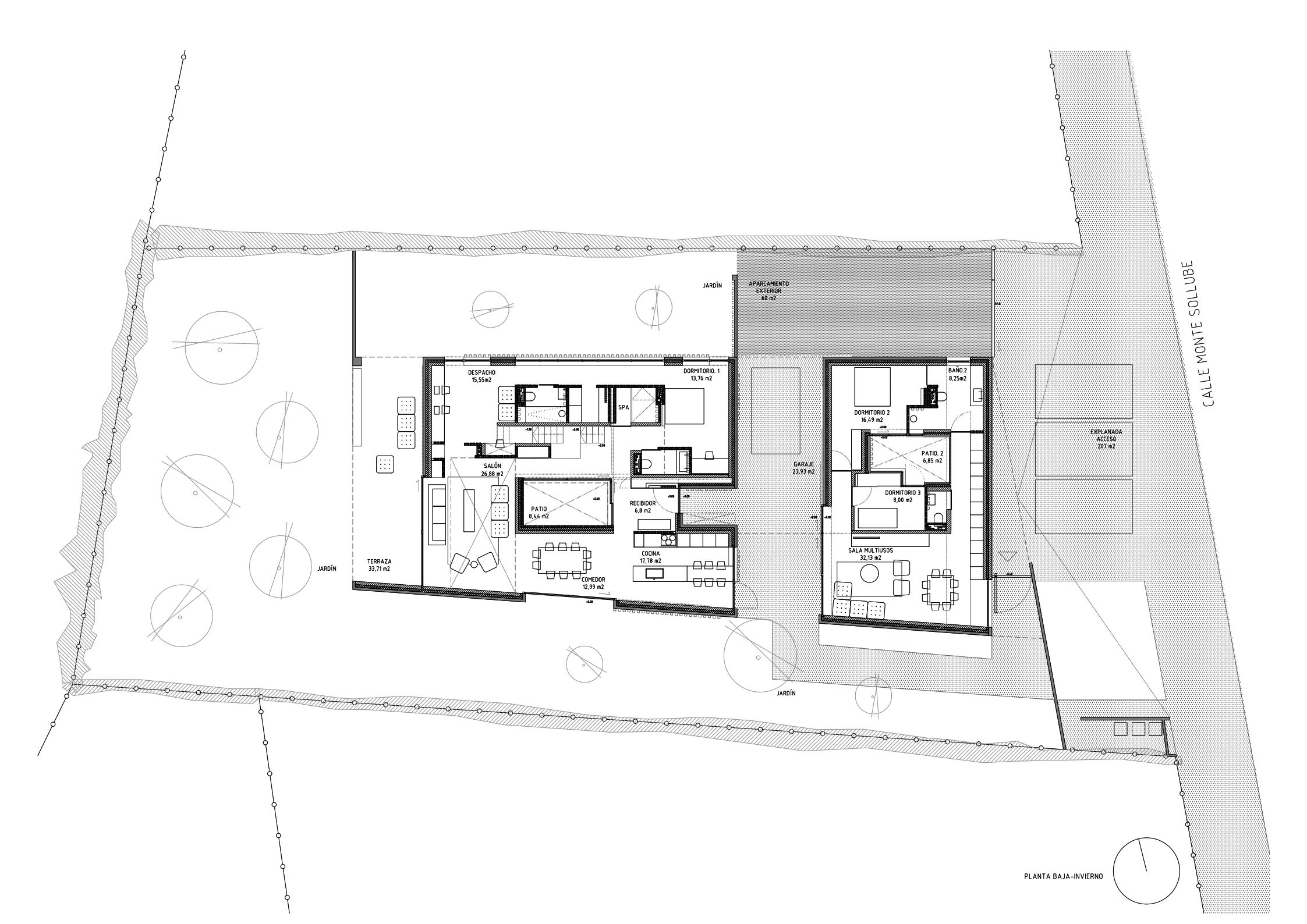
Allow yourself to get immersed in Alvaro Siza’s Leca Pool-like experience with Malu de Miguel’s MS5 House. Located in Madrid Spain, MS5 was commissioned to house three generations. At 400 square metres, the residence is made of sturdy rectilinear accents is two houses (affectionately described as pavilions) interlocked by a maze-like terrace and light-capturing courtyards. This two-storey multi-generational home comprised of an open garage and garden flanked between bedrooms and many rumpuses is Spanish architect Maria Luisa ‘Malu’ de Miguel’s first ever commission. Stitched of tactility, tasteful details, and brutalist qualities, this house is a confident debut for her practice three years old and counting.
MS5 is unassuming on first impressions given the pale-mandarin tactile brickwork and timber gates seamlessly integrated with the street front and the site’s historical context. A solid volume on the outside with obvious generous balcony spaces disguises and interior of the open plane with joinery pieces strategically placed to create pockets of breakout and living spaces. Typical programmatic needs such as the kitchen and wet areas are either partitioned off-centre or to the side respectively, creating enough of a boundary without the need of doors. Although, sections closed off by glass doors (internal courtyards and gardens for instance) are separated by large glass doors, offering the option to expand the ground floor area into a complete pavilion.
The concrete-like home is characterised by lightwells, different window widths, and sightlines that offers enough privacy and publicness at the user’s will. The main pavilion, made of two floors is mostly introduced with entertainment spaces on the ground floor, and is orientated to overlook the courtyard wide enough to offer the privacy of the bedrooms in the second pavilion. The openness expands through the double-height ceiling and the second floor, with more personal or public breakout spaces to enjoy the sandy colours and views from the terrace. A counterpart to the main pavilion, the sleeping spaces are placed off the side, to offer a secondary retreat ready to entertain another private party.
Malu de Miguel carefully directs the gentle combination of neutral coloured exposed concrete and light grey rendered OSB boards to harmoniously marry bricks coated with a transparent primer. Masonry from the façade gracefully weaves itself in wet area partitions and structural columns as subtle wayfinding. Combining thoughtful sightlines and ceiling-high windows, light gently shifts into place, ready for the stone-textural qualities to reflect soothing light to soften its hard nature. Even the enviable mezzanine library is positioned in a way that endorses borrowed light with a glowing compliment.
MS5’s fluidity is not reduced to tangible design decisions. Room names are loosely used to dictate the space, inviting the owners to decide at their own time and will. The same goes for the circulation.
If you ever find yourself stopping on the brutalist-like staircase to observe the overall wayfinding, you might notice the varying possibilities that can potentially transport you into an Escher’s beloved optical illusion etching.
Just make sure you don’t get too lost in the plan!
[Images and drawings courtesy of Malu de Miguel.]
客服
消息
收藏
下载
最近


































