查看完整案例


收藏

下载
| 隔壁邻居都惊呆了:只有33㎡?!
赋予空间更多可能,使人与境产生新的对话。 ——辰境设计
谁说超小户型就不能好玩又好住? 居高不下的一线房价劝退了不少年轻人, 却挡不住有群热爱生活的人, 看似糟糕的户型里也能折腾出花儿~ 当然,其中少不了专业设计师的帮忙。 今天的房子位于北京市顺义, 居住者是一对小情侣 两猫 一狗, 两位屋主分别从事HIPHOP文化和珠宝设计。 房子面积很小,带个小院儿, 他们希望将房子打造成一个有趣的空间。
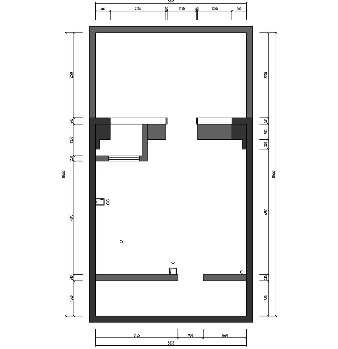
原户型为长宽高都是5.8m的立方体, 上部往外过道突出1.6米。 一楼单层面积仅为33㎡, 且有多根上下的管道及烟道贯穿其中; 开发商没有搭建楼板以及楼梯。
对于这个接近正方体的空间, 除了解决屋主的基本功能需求之外, 如何让空间产生更多的对话和场景 是设计师重点考虑的问题。 最终大家一致决定利用层高优势干预空间, 通过不同的水平高度去界定功能区, 使空间产生围合感,错落起伏, 居住其中获得更丰富的视线与行为体验。
搭建钢结构将空间改为两层, 一楼承载起居、会客、用餐的功能, 包含卫生间与楼梯间。
改造要点: 1、整个一楼分为下沉区域(灰色部分)与抬高区域(浅色部分),通过高差去界定各功能区; 2、进门下沉区连接户外与玄关,实现无尘入户; 3、电视矮墙和高差使一楼形成了具有高低落差的回游动线。
二层包含两个独立带窗卧室, 两个卫生间和手工区。
改造要点: 1、主卧打造悬空电视柜,与步入式衣帽间形成分界,保障采光和通透并形成回游动线; 2、靠近楼梯打造马桶间 洗手区,方便偶尔居住的亲友使用。
与其两层均分5.8米获得一个平凡的层高, 不如牺牲一点层高去做一个更有趣的空间, 将5.8米分为3.2米(一楼) 2.4米(二楼)。
一楼通过地面高差去界定各个功能区, 也让33㎡获得更多的视觉纵深。
Now,曾经的方盒子变身迷你带院别墅~
水平高差形成了无尘入户, 开放收纳格 穿衣镜 挂衣钩, 实现收纳零用品和衣帽、检查形象的功能。
入户就能享受空间的乐趣, 楼梯踏步可以顺便用作换鞋凳。
高低落差形成了下沉式的客厅, 也提供了一个很好的围合式聚会空间。 平时屋主和拜访的友人 更喜欢坐在台阶上而非沙发, 人在空间中自由随意,惬意而有安全感。
整个空间明净简洁,没有琐碎装饰, 目之所及都是最基础的材质: 温润的木地板,纯白色墙漆,美观经典。
百叶帘让晴天的光线更加柔和, 外面是一个小院子,拍照时还没有完成。
留白的设计语言让小户型更显宽敞, 通过结构关系使空间层次丰富, 起伏错落,行走其中获得游廊般的感受。
楼梯转折处特地开出一个圆洞, 目的是将光线引入楼梯间, 两只猫主子最爱在此巡视, 帝王般俯瞰众生,与一楼的人对望。
家具只简单布置几件必需品, 留出更多空间休闲活动,也显得更宽敞。 沙发后方特地留出置物空间和灯光, 放置屋主人收藏的艺术品, 如今意外成了猫主子心仪的小路。
电视矮墙隔开了餐厨区与客厅, 高低落差暗示区域界定,形成回游动线, 不管是在厨房还是在下沉的客厅, 都能有明显的场域感。
灯光采用了无主灯设计, 使顶面更整洁,也不影响层高。
过道宽度保证人通行的舒适, 长虹玻璃移门隔开卫生间。 空间虽小,生活品质却不将就, 冰箱,洗碗机,烤箱,一应俱全。
橱柜采用全白柜体与岩板台面, 清爽,视觉上不觉拥挤; 浅灰色瓷砖通铺,耐看耐脏。
电视后方设置餐台提供简单的就餐环境, 朋友来访则到院子里开桌享受自然。
餐桌虽小,两人用也足够, 也能作为操作台增加厨房备餐面积。
采用透光不透人的长虹玻璃门隔断, 内部做了充足的收纳柜子, 洗衣机也置身于此。
楼梯下的隔间做成了储物柜与鞋柜, 一举解决玄关和客厅的储物需求。
每两个踏步植入壁灯, 星星点点的光源更显温馨舒适, 也便于夜间行走看清视线。
楼梯中部开了一个圆形孔洞, 引入自然光线化解楼道采光通风问题, 还特意在此摆放一朵植物, 藤蔓生出,形成了特有的景色。
此处也成为两只猫咪最喜爱的场所, 每日巡视~(用猫咪巡视视角与猫咪对望)
楼梯的扶手是整块钢板制作, 做了弧边处理,极简且整体感很强; 角落处原有暖气管道通过圆弧造型包裹。
拾级而上来到二楼, 一盏垂落的吊灯投射光影变幻; 主卧门采用磨砂玻璃, 保证了隐私,也为走廊引入光线。
门后是宽敞的主卧,自带衣帽间和卫浴, 功能完整且私密性良好。
床对面用悬挂电视柜隔开衣帽间, 设计手法与一楼相似。
但细节中亦有区别—— 电视柜通过钢架结构固定顶面, 与地台之间用透明的钢化玻璃支撑, 增加稳固性的同时保证通透感。
整体的风格仍延续简洁和留白手法, 床头做了白色背板,隐藏灯光。
洗漱池独立在淋浴区域之外, 功能模块化让使用更加便利舒适。
电视柜后方设计了大面积镜门, 玻璃的反射增加视觉距离, 一墙相隔获得较为隐私的步入式衣帽间。
主卫将干区洗手池外移, 门后是淋浴间和浴缸, 用简单的灰色砖墙地通铺。
为了方便偶尔小住的亲友使用, 省去晚上爬楼梯烦恼, 二层专门设置了一间独立的卫生间。 因入口正对楼梯, 采用了格栅板隐入墙体。
内部还贴心配备了迷你洗手池。
次卧空间留给客人及家人来访使用, 空间有限,采用了榻榻米, 床头和床侧都预留了收纳空间。
下沉式客厅,围合空间,回游动线, 让这个33平的家获得了别样居住体验, 来访的亲友都感叹不相信-这个家只有33㎡! 这也是本案最值得思考的地方: 在面积有限,且看似浪费的抬高地面, 却收获了独特的空间感受, 起到了功能划分作用且加强了空间纵深感。
大家表示最喜欢这个下沉式客厅, 让人不再为沙发,电视,桌椅的位置拘束, 坐在任何角落都能随性地交流。 这也是设计师所提倡的人与空间的关系, 有趣的空间能让居住者在其中 产生更多的对话与互动, 随性、自在、舒畅,才是快乐的家。
客服
消息
收藏
下载
最近














































