查看完整案例

收藏

下载

翻译
Humming Tree was tasked with the design of the Limotex office, a construction company located in Kerala, India.
The brief was extremely sharp; that the space was to have two lives. The building should adorn an enjoy-work ethos and to have an exceedingly dynamic space, with heaps of daylight.
The client was after a minimal, outlandish look, so ‘we took inspirations from commercial and art gallery spaces, as opposed to typical office interiors’, says Afnan & Arun founders of Humming Tree. Limotex is a Construction / Builders company with 4o years of experience in the industry. As we were approached for our quirky taste in design, this workspace has to be distinguished from other builder’s office which is typically designed keeping exposed materials in mind.
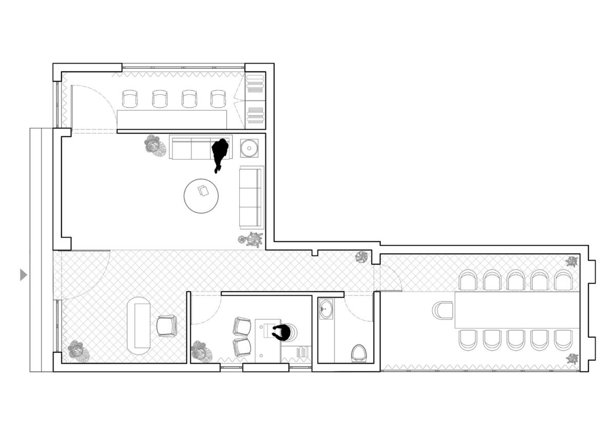
Our concept was to have an office space which has a design language of contemporary art galleries. We did not want to make something having complex aesthetics. The office has a linear planning of about 1010 sqft, a small workspace, with an amazing sun kissed reception area facing west. Next to it is the waiting lounge with Prussian blue couch dividing the small workspace consisting of 4 workstation table. Ahead of it is the cabin for manager and a beautiful, mirror reflecting conference room bringing the outdoor greens in making the most of pleasant ambient daylight, which in turn saves a lot of electricity.
Design: Humming Tree
Photography: Justin Sebastian
8 Images | expand for additional detail
客服
消息
收藏
下载
最近










