查看完整案例

收藏

下载

翻译
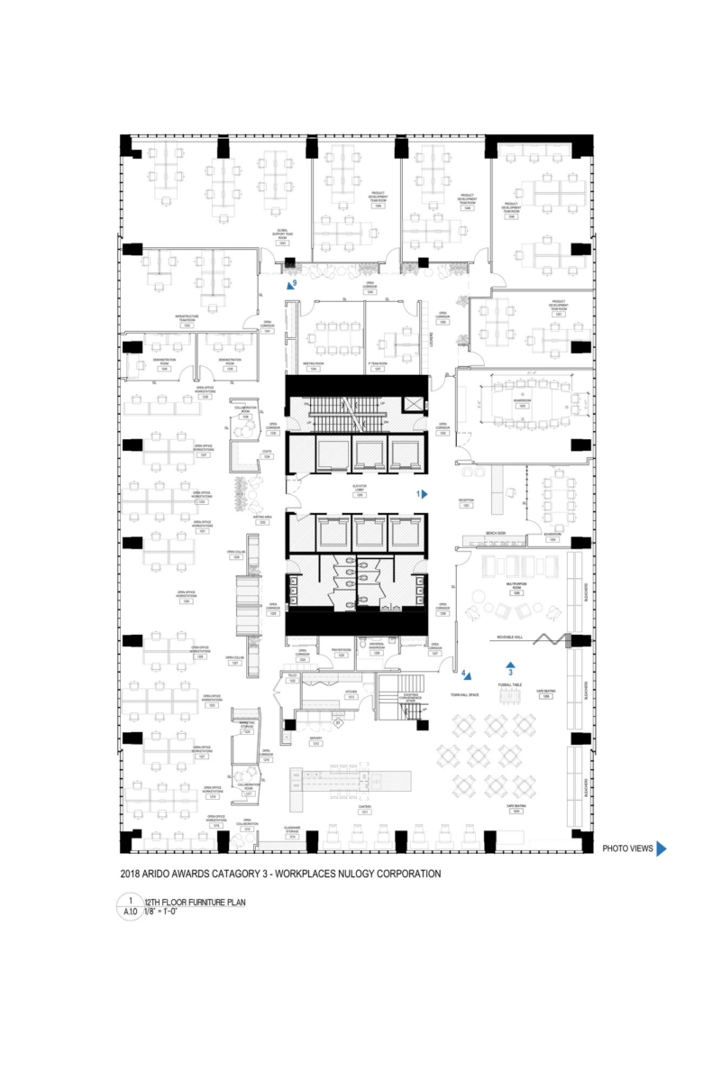
SDI Design completed the design for the office software company, Nulogy , located in Toronto, Canada.
Nulogy is a global company developing, supporting, and selling logistics & quality control software. The client desires a unique identity with an emphasis on transparency & openness; a design challenge what to develop an appropriate narrative for a client with a somewhat intangible suite of products & services.
A narrative was developed on the concept of conveyor lines, with counters in reception and canteen areas rendered in ribbons of black-stained concrete. Linear movement is emphasized with the use of suspended open wood ceiling slabs and angled glass partitions along linear corridors. Manufacturing plant aesthetics are referenced via concrete floors, open ceilings and celebrating the building’s exoskeleton, some of which are treated in “Nulogy Blue”. “Bleachers” line in the Townhall.
Designer : SDI Design
Design Team : Glenn Cheng, Joanne Chan, Terilyn Augustine
Photography : Steve Tsai
15 Images | expand for additional detail
客服
消息
收藏
下载
最近

















