知末
知末
创作上传
VIP
收藏下载
登录 | 注册有礼

那不勒斯海岸线上的现代“逃亡”之家

2018/03/17 04:04:27
查看完整案例
微信扫一扫
收藏
下载
那不勒斯海岸线上的现代“逃亡”之家-0
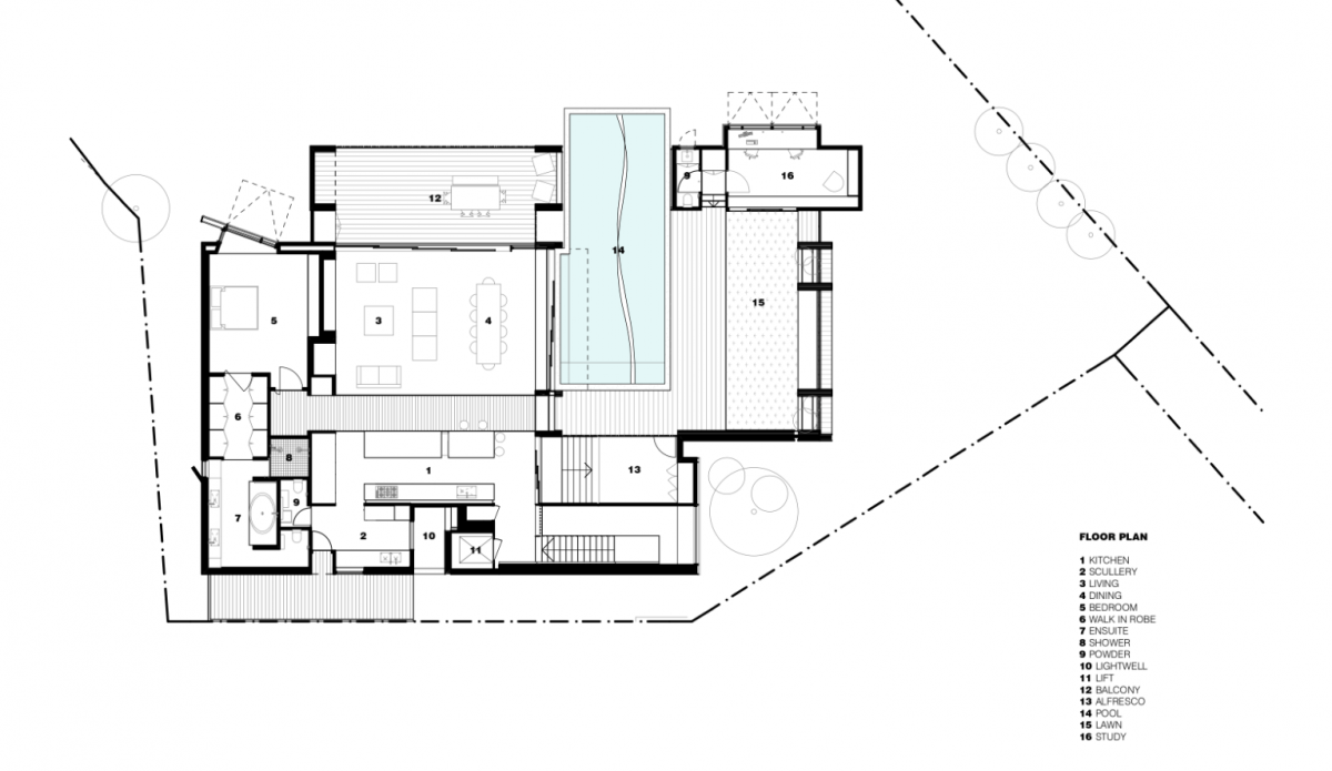
       Wolveridge完成了位于意大利那不勒斯的索伦托的一座豪华的现代别墅The Clubhouse的设计。对于该项目的客户来说,索伦托是一个充满怀旧之情的地方,特别是这个地方,他们在一个商人的家里长大。不出所料,这里成了他们结束海外生活回国后创造“逃亡”之家的理想之地。住宅的外部通过木材的使用和与景观的联系,借鉴了经典的海岸氛围。
那不勒斯海岸线上的现代“逃亡”之家-2
那不勒斯海岸线上的现代“逃亡”之家-3
那不勒斯海岸线上的现代“逃亡”之家-4
那不勒斯海岸线上的现代“逃亡”之家-5
那不勒斯海岸线上的现代“逃亡”之家-6
那不勒斯海岸线上的现代“逃亡”之家-7
那不勒斯海岸线上的现代“逃亡”之家-8
那不勒斯海岸线上的现代“逃亡”之家-9
那不勒斯海岸线上的现代“逃亡”之家-10
那不勒斯海岸线上的现代“逃亡”之家-11
那不勒斯海岸线上的现代“逃亡”之家-12
那不勒斯海岸线上的现代“逃亡”之家-13
那不勒斯海岸线上的现代“逃亡”之家-14
那不勒斯海岸线上的现代“逃亡”之家-15
那不勒斯海岸线上的现代“逃亡”之家-16
那不勒斯海岸线上的现代“逃亡”之家-17
那不勒斯海岸线上的现代“逃亡”之家-18
那不勒斯海岸线上的现代“逃亡”之家-19
那不勒斯海岸线上的现代“逃亡”之家-20
那不勒斯海岸线上的现代“逃亡”之家-21
那不勒斯海岸线上的现代“逃亡”之家-22
那不勒斯海岸线上的现代“逃亡”之家-23
那不勒斯海岸线上的现代“逃亡”之家-24
那不勒斯海岸线上的现代“逃亡”之家-25
那不勒斯海岸线上的现代“逃亡”之家-26
那不勒斯海岸线上的现代“逃亡”之家-27
那不勒斯海岸线上的现代“逃亡”之家-28
那不勒斯海岸线上的现代“逃亡”之家-29
那不勒斯海岸线上的现代“逃亡”之家-30
那不勒斯海岸线上的现代“逃亡”之家-31
那不勒斯海岸线上的现代“逃亡”之家-32
那不勒斯海岸线上的现代“逃亡”之家-33
那不勒斯海岸线上的现代“逃亡”之家-34
那不勒斯海岸线上的现代“逃亡”之家-35
南京喵熊网络科技有限公司 苏ICP备18050492号-4知末 © 2018—2020 . All photos and trademark graphics are copyrighted by their owners.增值电信业务经营许可证(ICP)苏B2-20201444苏公网安备 32011302321234号
客服
消息
收藏
下载
最近