查看完整案例


收藏

下载
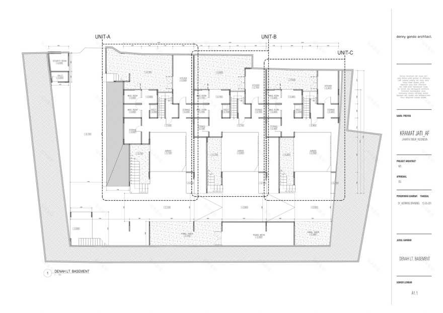
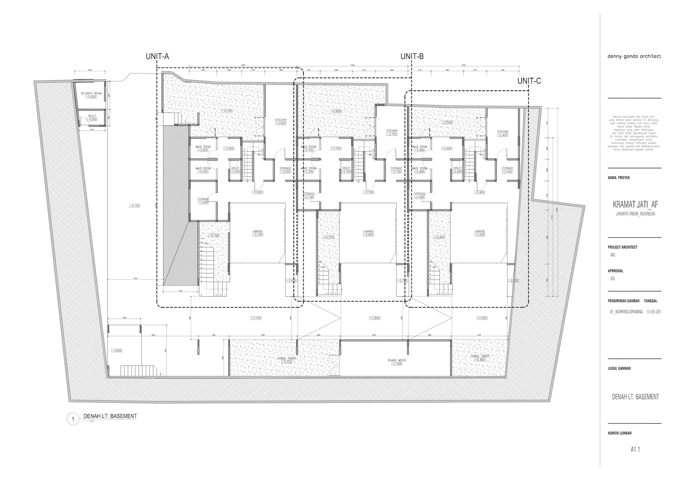
Studio Air Putih:Kramat Jati住宅是专为一个有两个已婚子女的大家庭而设计的。建筑根据“共享住宅”的概念,布置成三个紧凑的房屋,并通过一个由游泳池、花园和休息区组成的公共区域互相连接。每栋房子都共用一个服务区和车库,这样更便于后期维护。建筑向内朝向公共区域,因此从外面看起来体量很大,这种立面是也为了给居民创造隐私,并控制住宅与农村地区的距离。
Studio Air Putih:Kramat Jati House is designed for a one big family with two married children. Through the ‘sharing house’ concept, the building is arranged into three compact houses connected through a communal area consists of a swimming pool, garden, and sitting area. Each house share the same service area and garage which makes it easy for maintenance. The building masses are oriented inward towards the communal area, hence making it looks massive from the outside. This facade is deliberately shown to create privacy for the residents and to restrict the house from the rural area.
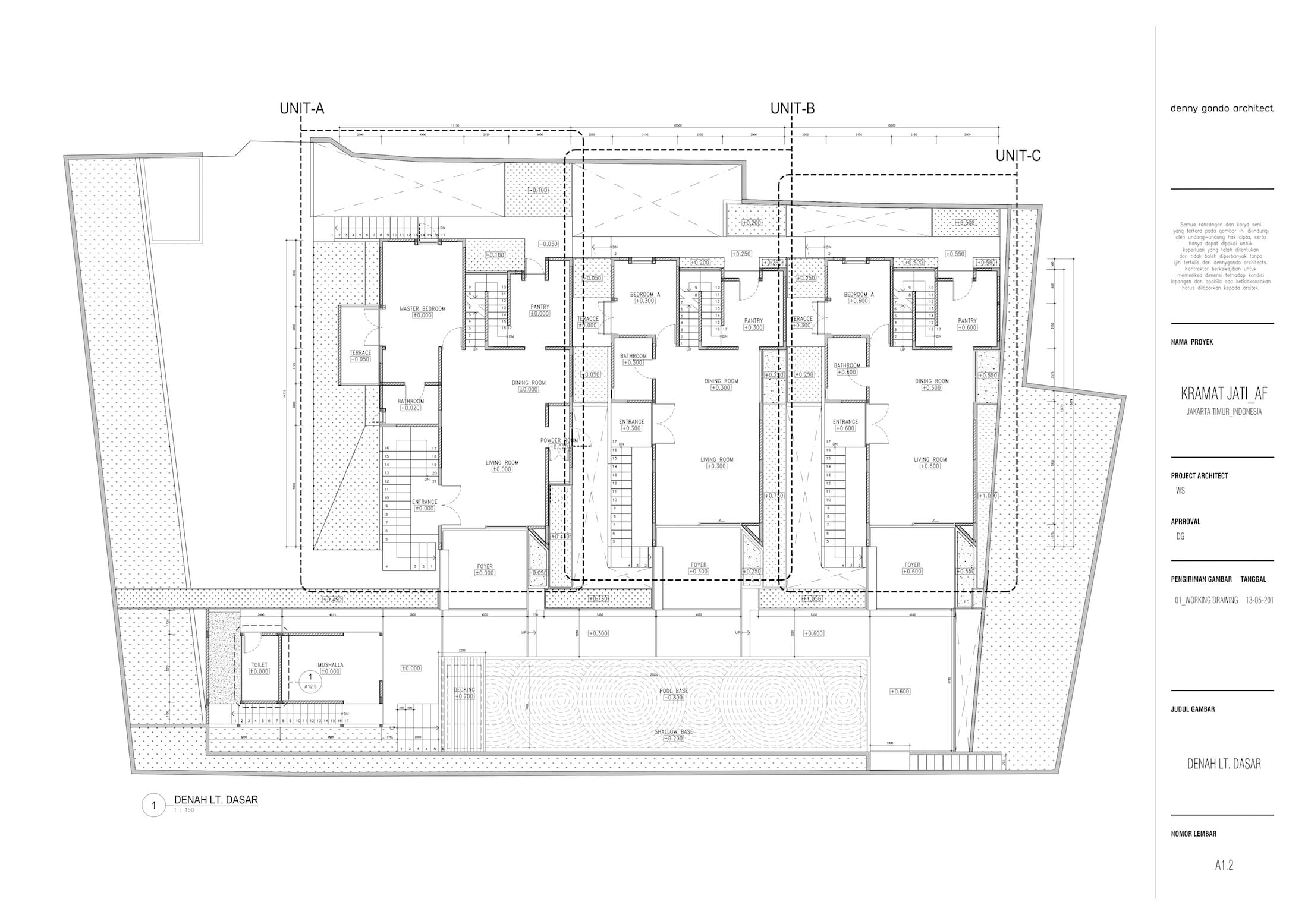
由于场地面积有限,我们应用了双层概念在客厅和游泳池下方分配了车库和服务区,客厅和阳台采用了相同的地板装饰,也通过放大花园和游泳池的开口,给人以宽敞的印象。
Due to the limited area, the double decker concept is applied by allocating the garage and the service area beneath the living room and the swimming pool. A spacious impression is created by using the same floor finishing for the living room and the terrace, also by making large openings towards the garden and swimming pool.
▼红砖墙立面 The facade
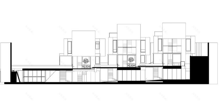
▼建筑高差细节 The double decker
Kramat Jati住宅使用当地砖块材料,墙壁使用深灰色涂料,楼梯使用木材,地板使用ujung pandang大理石。砖块被切割成5个薄而轻的部分用作墙面装饰,同时也被装饰在墙面和天花板上。该建筑采用混凝土梁柱刚性框架作为主体结构,尽管建筑看起来很现代,但由于地处热带气候,住宅仍然采用了传统倾斜屋顶。
Kramat Jati House uses bricks as local material and dark grey paint for walls, wood for stair finishing, and ujung pandang marble for the floor finishing. The bricks are used as wall finishing where the bricks are cut into 5 thin and light pieces. These bricks plate are installed on the wall finishing and the ceiling. Meanwhile, the building uses rigid frame as its main structure with concrete beam and column. Despite the modern look on the building, the house still apply the slanted roof as it is located in a tropical climate.
▼建筑各层平面图 FloorPlan
▼建筑剖面图 Section
项目名称:Kramat Jati House
设计及竣工年份:2014年(设计);2018(完成)
设计:PT. Studio Air Putih
首席设计师:Denny Gondojatmiko
项目地点:印度尼西亚东雅加达
景观面积:1200平方米
摄影:Mario Wibowo Photography
承包商:Mohamad Samsi
客户:A.W.
Project name: Kramat Jati House
Design year & Completion Year: 2014 (designed) ; 2018 (completed)
Design: PT. Studio Air Putih
Leader designer: Denny Gondojatmiko
Project location: East Jakarta, Indonesia
Landscape Area: 1200 sqm
Photo credits: Mario Wibowo Photography
Contractor: Mohamad Samsi
Clients: A.W.
客服
消息
收藏
下载
最近
























