查看完整案例


收藏

下载
大足区位于重庆西郊方向,历史悠久,其中大足石刻更是闻名于世。大足数千年来积淀了丰厚的文化资源,赋予空间中建筑的底蕴,室内联合未来的气度,以现代的材质传达以古鉴今的理念。在新时代语境下让传统对话当下,既是溯源回归,更是一种探索性的实践。
亦景太阁受邀操刀大足棠荣府售楼处的室内设计,即以此为思考契机,遵从并合理延续建筑形制,秉承其一贯的克制平衡之道,将艺术审美与现代格调、自然人文相融合,致力打造都市中的一处安逸之所。
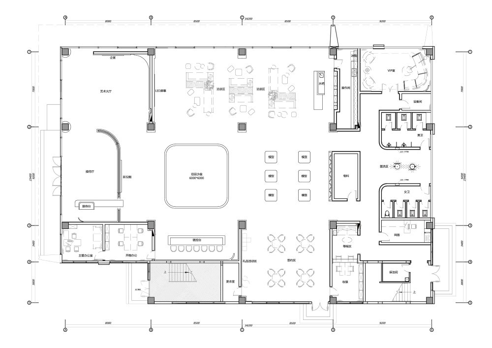
接待前厅删繁就简,借助石材与木饰面的穿插组合,流线的背景墙,辅以灯光的点缀效果,行如流水的艺术装置,萦绕婉转,层次感与格调性顿生,予人端庄大气的视觉观感与心境体验。
移步深入,即可见企宣与艺术装置的结合,恰似一道门廊,更是一重礼序。在朦胧光影的烘托下,仿佛超越了时空的限制,用润物细无声的方式,娓娓道来大足的历史文化与风土人情,唤醒在地记忆。
沙盘区的顶面软膜天花形成阳光,立面运用建筑集合的的手法,整个空间呈现出虚实交替的美学意境,同时形成了纵深的阵列感,无限广垠。
水吧台在简洁的空间中穿插、渗透,纵横交错间又捕捉到不拘一格的随性。
木饰面的基底铺陈出简约的气质,古铜的隔断在灯光的映衬下,尽显端庄淡雅的风范。
VIP室现代解构手法余灯光的运用,简洁干练的笔触,大片的木饰面、利落的块面孕育出素雅基调,橙色亚克力单椅与绿灰色的挂饰相交呼应则为其注入生机,彼此交汇,恰如其分的铺展开安谧幽然的气氛。
卫生间将接待厅的水之气引入至此,利用金属管的形式将水之韵律融入其中,材质直接的碰撞调和,硬装软装的高低起伏、明暗交织,充分调动了视觉张力。
摄影团队:图里摄影
主要材质:人造石、木饰面、古铜拉丝不锈钢、石材、软膜天花等
客服
消息
收藏
下载
最近
























