查看完整案例


收藏

下载
© Jaime Navarro Soto
(Jaime Navarro Soto)
架构师提供的文本描述。Tolsá61是对“Vecindad”(邻里关系)的重新解释,这是市中心的一种城市生活,位于墨西哥城历史中心西南角的Ciudadela社区。
Text description provided by the architects. Tolsá 61 is a reinterpretation of “Vecindad” (neighbourship) an urban life in downtown area, located in the Ciudadela neighbourhood, which is in the southwest corner of the historic center of Mexico City.
© Jaime Navarro Soto
(Jaime Navarro Soto)
这一社区保留了18世纪和19世纪早期的传统建筑,如墨西哥重新装修的图书馆何塞·瓦斯康塞洛斯(JoséVascontelos)。
The neighborhood mantains much of its traditional architecture of the 18th and early 19th century buildings such as the remodeled Library of Mexico José Vasconcelos.
© Jaime Navarro Soto
(Jaime Navarro Soto)
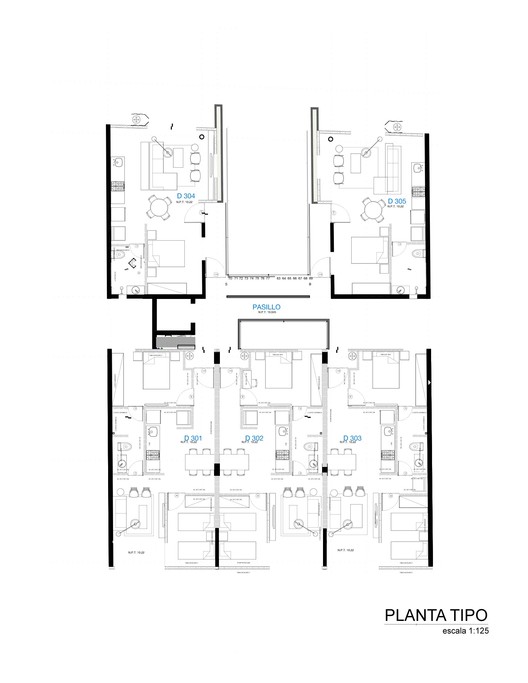
该项目受Porfirian“Vecindad”模式的启发,该项目的中心是一个纵向庭院,用于寻找一种基于社区、脆弱和居民归属感的新的生活方式。61岁的托尔萨试图通过促进有意义的关系的物理空间来挑战传统公寓的生活。
Inspired by the Porfirian “Vecindad” model, with a longitudinal patio to the center of grouped apartments, the project is designed for the inhabitant looking for a new way of living based on community, fexibility, and a fundamental belief of belonging among its inhabitants. Tolsa 61 seeks to challenge the life of traditional apartments through physical spaces that foster meaningful relationships.
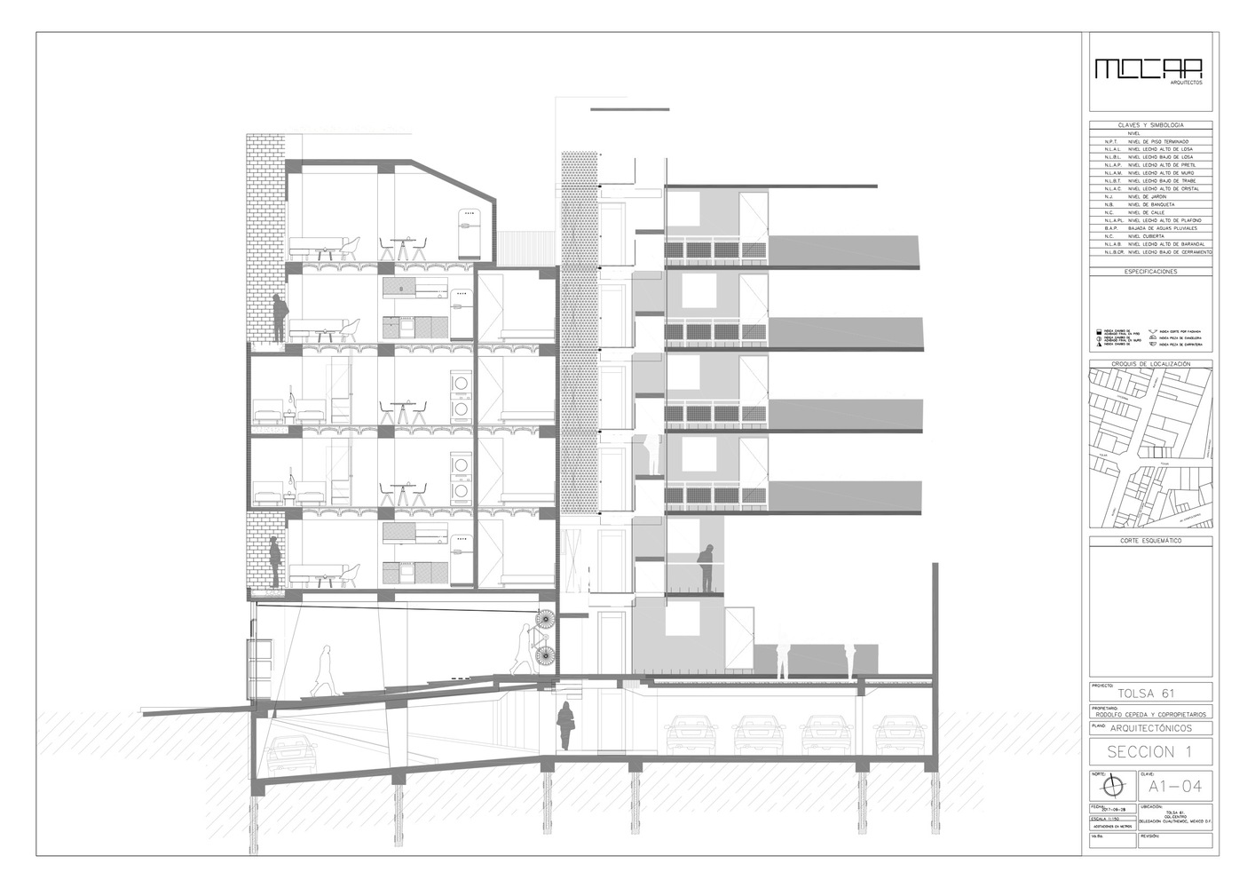
该设计利用上下文产生所需的机制,通过控制“挖掘”建筑质量的开口,将房屋与其直接分类连接起来。这些整体的伏鲁门将有助于有一个更好的环境性能,但也寻求设计能够经受时间的考验。
The design takes advantage of the context to generate the mechanisms needed to link the housing with their immediate sorroundings through controlled openings “excavated” in the building mass. These monolithic volumen will help to have a better environmental performance but also a search for design capable of withstanding the test of time.
© Jaime Navarro Soto
(Jaime Navarro Soto)
外墙的物质性是白色的玻璃砖,有助于降低未来的维护成本,因为它的釉质搪瓷层使其不受污垢和天气的影响。
The materiality of the facade is white vitrified brick, helping to reduce the cost of maintenance in the future as its glazed enamel layer makes it repellent to the degradation by dirt and weather.
其结果是一个6层的混凝土结构与俄罗斯方块正面,在这里的开口是作为一个露台设置室内树木是为了帮助冷却气流到达室内,使自然光过滤通过建筑物。专为低收入家庭设计,包含25套公寓,面积从45平方米到60平方米不等。包括一间和两间卧室的混合房。每个工作室都有自己的阳台或露台,可以俯瞰中央庭院建筑群。
The result is a 6-story concrete structure with a tetris facade, where the openings are presented as a terrace setting indoors where trees are located to help cool the airflow before it reaches the interior, as allows natural light to filter through the building. Designed for low-income families, containing 25 apartments, ranging between 45 and 60 sqm. Including a mixture of one and two bedrooms. Despite its small áreas and simple interiors, each studio has its own balcony or terrace overlooking to the central courtyard complex.
© Jaime Navarro Soto
(Jaime Navarro Soto)
这种流动性是基于社区住宅的理念,我们的目的是要使一个人满为患、杂乱无章的地方变得无限富饶。
The fluidity is based on the idea of community housing.Our intention was to make an infinetly rich place that is crowded and disorderly.
Architect MOCAA ARQUITECTOS
Location Tolsa 61, Colonia Centro, Centro, 06000 Ejido del Centro, CDMX, Mexico
Architects in Charge Juan Pablo Cepeda, Raul Morales, Luis Enrique Angeles, Patricia Juarez Samperio
Area 2500.0 m2
Project Year 2017
Photographs Jaime Navarro Soto
Category Apartments
Manufacturers Loading...
客服
消息
收藏
下载
最近





















