查看完整案例


收藏

下载
为什么我的眼里常含泪水?
因为我对这土地爱得深沉……
——艾青
对土地的热爱与尊重,是时代赋予设计师最大的使命。我们的每一个作品,都应当是怀着对土地、自然的敬畏之心,加以自己对生活的些许感知而得来的。金茂智慧国际城的售楼展厅就是如此,在即墨这片古老的土地上,屹然而起。
01
古城新印象
古城之下,新城之中;千年即墨,续前世唱今生。天地有大美而不言,言有尽而意无穷,意古今徐徐佳话,意脚下炙热土地。
石墙之美,浑然天成;古人用“我心匪石不可转也”,形容对爱的坚定;用“明月松间照,清泉石上流”,倾听心静如禅的意境,接待区背景墙就寄情于城墙怀古,以城墙砖砌结构开启时空回转的故事;着力取意,将大地之美融入在一砖一瓦之中。用大自然中最朴实的土与石,演绎生活中最美的朴与实。
木之美,静之悠。
吧台区大面积的胡桃木立柜尽显精致美感,稳重的大色块与大空间形成强烈对比,成为整个空间的又一焦点。极致美感且具有现代感的金属线条,是传统格调与现代艺术情怀的对唱。
以木之名,携木之美。
它捧起历史长河的砂硕,“筑”得美好沙壁,设计师巧妙地将壁柜延续了古墙的元素,与之形成时间与空间的对话。一砖一石是即墨土地的悠悠历史,一开一合是我们对过去与未来、自然与科技的接纳融合。
02
璞玉之美,力由心生
万物自生自化,延绵不息。
沙盘区如万物齐放的宗地;设计师借助意由璞玉切割般的建筑形态,室内空间的线条横纵交错,但又极具条理,各有文章。一方璞玉百方石,沙盘区既有璞玉的灵动姿态,又有石的理性质感。
四方端正,将最工整的区域留给了客人—洽谈区。无干扰的纵向空间,使得视线得以聚焦,拉长了空间感,这种手法也是古代皇室中常用的手法,无论是线还是面,都体现了礼序之美,精工之力。
璞玉之美,力由心生。
03
原趣·趣缘
原趣
席地而坐,发呆看水。原原本本的趣味就是如此。空间也是,这里以极简的手法和原木色的材质结合,感受与大地的距离,最原始的生活状态,从而探寻原始趣缘的另一种可能——趣缘无形于空间之中。
趣缘
儿童活动区。趣味性的模块化设计,雪白色块由地面放大到后面的楼梯白色大块面,大小体块上的萌反差,趣味性的空间使用场景,能感受到设计师是在认真的传递快乐。
空间的设计,
空间之下是对土地的热爱,
空间之上是对精神的隐喻。
设计师尊重历史,尊重每一块土地。
匠之心,心是对自然的敬畏,对设计的真诚,
是将身子俯下,用耳朵贴到地表,倾听土地的心声。
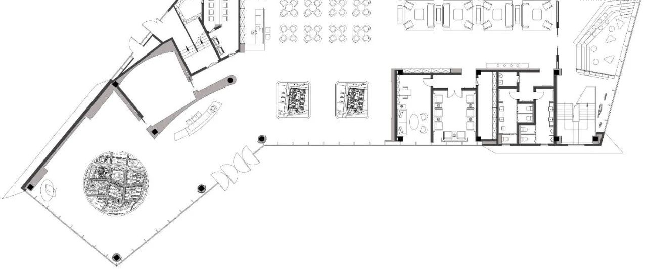
1F平面图
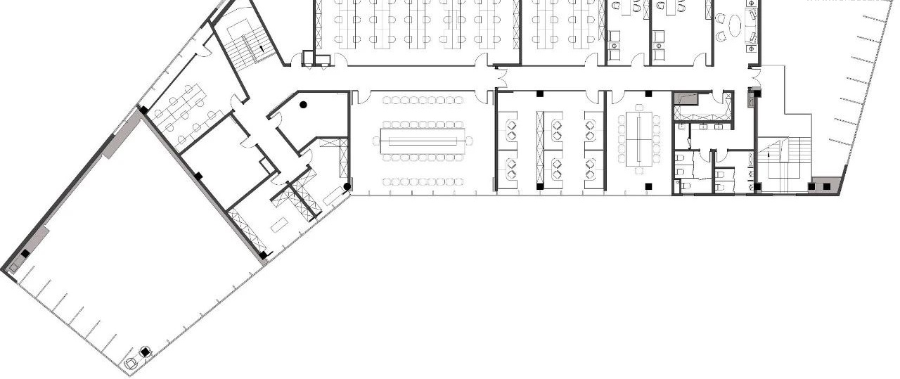
2F平面图
项目信息
项目名称:金茂智慧国际城
项目地址:中国、青岛、即墨
室内设计:北京盘石典艺装饰设计有限公司
主创设计:王程、李永杰
设计团队:刘超敏、胡文、吴嘉彬
项目面积:1060平方米
设计时间:2019年02月
竣工时间:2020年04月
主要材料:塞浦路斯灰、沉香白雪、布拉格灰、黑色不锈钢、木作
开 发 商 :金茂青岛·青岛金翰置业有限公司
项目编辑:张欢
项目摄影:张静
关于北京盘石设计
北京盘石设计于2003年创立,公司16年来专业为会所、售楼中心、样板间、楼盘全精装、商业空间等提供室内设计及顾问服务。与众多优秀地产商保持长期密切合作,一直以共同创造高品质生活为基本理念。我们力求通过人与空间、智慧与自然的相互融合,产生启示未来设计发展的新概念,以创作出忠于原创的设计作品,并使之变为可持续价值。
客服
消息
收藏
下载
最近





























