查看完整案例


收藏

下载
© Marco Zanta
c.马尔科·赞塔
架构师提供的文本描述。该项目位于特雷维索市中心边缘的许多地方,取代了一座破败而过时的有三个单元的住宅建筑。这座建筑被许多中低密度的房产所包围。
Text description provided by the architects. This project is located in a lot outside the edge of Treviso city center, in place of a crumbling and obsolete residential building with three units. The building is surrounded by many properties of low and medium housing density.
© Marco Zanta
c.马尔科·赞塔
该项目的出发点是客户希望对该地区进行升级和再开发,以获得巨大的投资财产。
Starting point of the project was the client desire of upgrading and redeveloping the area to obtain a great investment property.
拆除现有建筑物是实现建筑符合现行法规和质量标准的必要条件。
The demolition of existing structure was necessary to realize a building in line with current standards in terms of regulations and quality.
© Marco Zanta
c.马尔科·赞塔
现有的城市规划数量和规范允许增加容纳6个住宅单位的数量。
The available volume and norms of urban planning allowed an increase of volume that permitted to accommodate six residential units.
© Marco Zanta
c.马尔科·赞塔
建筑师面临的更大挑战是,尽管居住密度较高,但仍能给居民提供较高的生活舒适度。按照这一方法,通过重新解释住宅集体住房的主题,将建筑体积增加了一倍,并使外部空间翻了一番。
Architect's greater challenge was permitting an high living comfort to residents despite of the higher living density. In alignment with this approach, the doubling of building volume was developed together with the doubling of outside spaces, by reinterpreting the theme of residential collective housing.
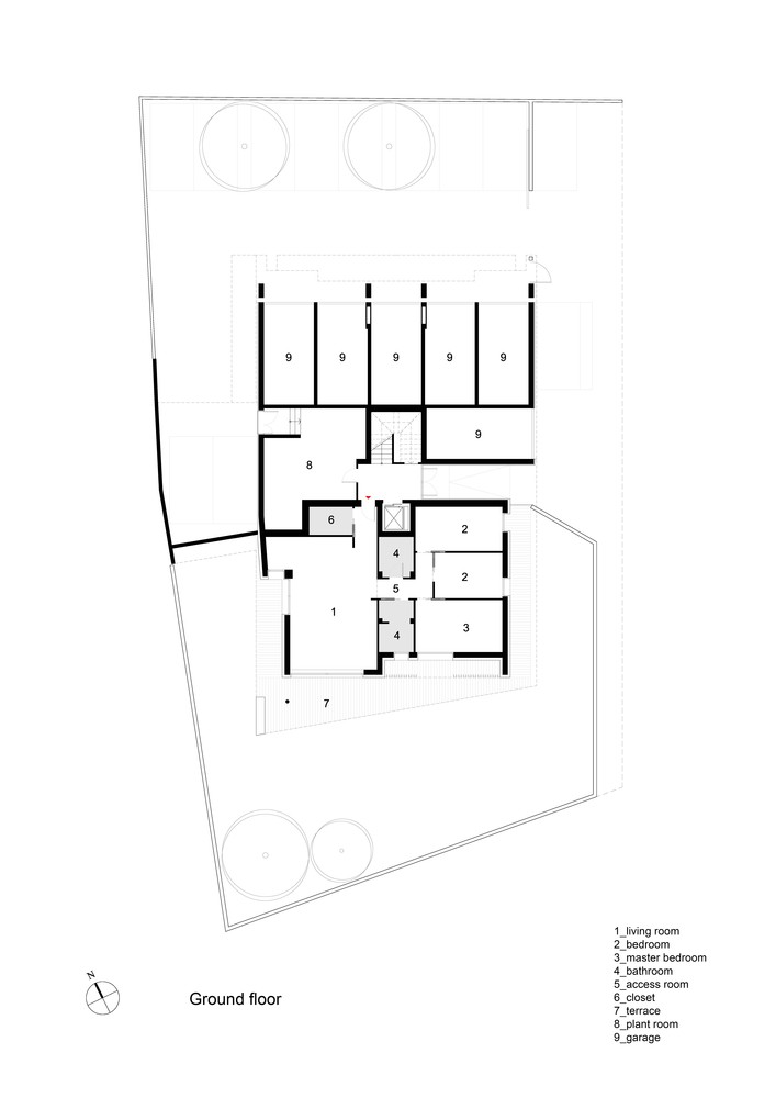
1st Floor Plan
一楼图则
为了达到这一解释,每套公寓都设计了高质量的室外开放空间,创造了“室外房间”,放大了空间的感觉,遮住了典型的集体住房的内外界限。
To achieve this interpretation, each apartment has been designed with outside open spaces of high quality, creating "outside rooms" that amplify the perception of space, shading the boundary between interior and exterior that is typical of the collective housing.
© Marco Zanta
c.马尔科·赞塔
想要的效果是,即使在公寓楼里,也要有私人休憩空间,比如单一或半独立的房产。这一干预措施旨在通过提高城市密度,同时节约土壤占用,提高能效和确保城市质量,为城市和环境带来积极的再生。
The desired effect is having homes with a private open space, as for single or semi-detached properties, even if in an apartment building. The intervention aims to be a positive regeneration for the city and for the environment, by allowing a greater urban density and at the same saving soil occupation, increasing energy efficiency and ensuring urban quality.
© Marco Zanta
c.马尔科·赞塔
Architects PERUZZO Architettura
Location 31057 Lanzago TV, Italy
Architect in Charge Stefano Peruzzo, Simone Peruzzo
Area 934.0 m2
Project Year 2017
Photographs Marco Zanta
Category Apartments
Manufacturers Loading...
客服
消息
收藏
下载
最近



























































