查看完整案例


收藏

下载
© Derek Swalwell
德瑞克·斯沃韦尔
架构师提供的文本描述。我们的光锯屋代表了一个当代的,基于设计的解决方案,可持续的建筑。
Text description provided by the architects. Our Light Saw House represents a contemporary, design based solution to sustainable architecture.
© Derek Swalwell
德瑞克·斯沃韦尔
我们的客户建立在一个现有的双正面爱德华天气板,我们的客户寻求当地的建筑反应,他们拥有了一段时间,但没有在海外居住15年。
Built upon an existing double fronted Edwardian weatherboard, our clients sought a local architectural response to a property they had owned for some time, but not lived in for 15 years whilst overseas.
© Derek Swalwell
德瑞克·斯沃韦尔
为了完成项目的要求,原来的房子被保留,但复古适合的方式超过了目前的建筑标准。紧凑型延伸到后方,解决了需要带来光明和温暖的顶部,现有的房子。所创建的体积允许紧凑的平面图感觉慷慨和与原来的房子成比例,同时允许从所有新房间的花园景观。
To accomplish the project requirements, the original house was retained, but retro-fit in such a way as to exceed current building standards. A compact extension to the rear addresses the need to bring light and warmth over the top of the existing house. The volumes created allow the compact floor plan to feel generous and in proportion to the original house while simultaneously allowing for garden views from all new rooms.
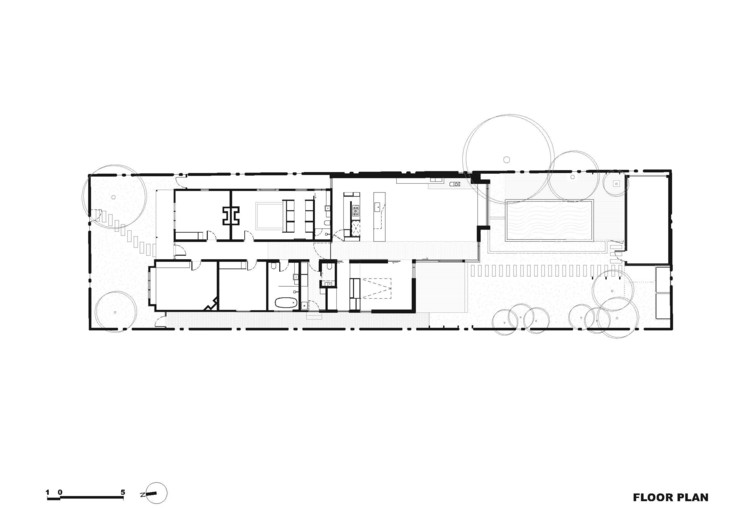
Ground Floor Plan
回收或可循环利用的材料是首选的始终。现有的外部砖铺路、小径和花园床被打捞出来,内部重新设想,将花园与潮湿地区连接起来。在建筑期间保留和保护的关键树木现在一个新的景观环境中茁壮成长。
Recycled or recyclable materials are preferenced throughout. Existing external brick paving, paths and garden beds were salvaged and re-imagined internally to connect the garden to the wet areas. Key trees, retained and protected during construction, now thrive within a newly landscaped environment
© Derek Swalwell
德瑞克·斯沃韦尔
Architects Zen Architects
Location Melbourne, Australia
Design Team Ric Zen, Penny Guild, Luke Rhodes
Area 225.0 m2
Project Year 2016
Photographs Derek Swalwell
Category Houses
Manufacturers Loading...
客服
消息
收藏
下载
最近




















