查看完整案例


收藏

下载
拉脱维亚铁路历史博物馆的中标竞争提案:领土发展、现有历史建筑的重建和新的附件的设计
[地名] 地区(英语):
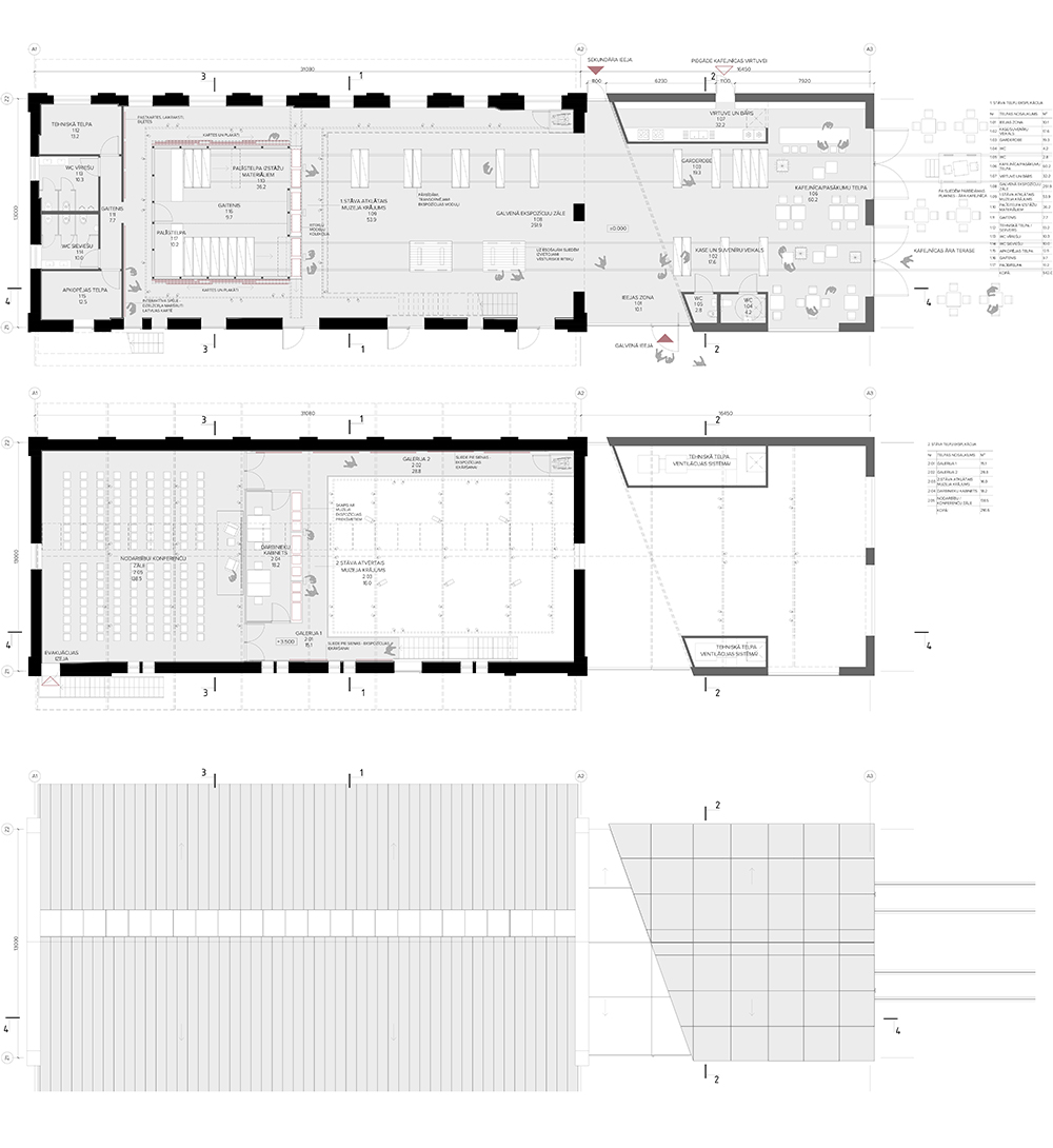
博物馆的版图是一个开放的社会互动环境。香港的主轴是由一条行人步行街、一条自行车道和一条服务道路组成。步行街连接全港的所有元素:博物馆、火车展览、兄弟会广场、咖啡馆露台、野餐区、儿童铁路、公共厕所和停车场。所有现有的轨道都被保留下来,一些新的轨道被设计成连接到LRHM的新卷。
重建现有仓库:
所有的正宗建筑和现存历史建筑的部分都在室内保存和展示:有拱门的红砖墙,有屋顶结构和历史窗户。现有的大部分建筑计划为多功能展览厅;建筑物的一部分被分成两层,其中一个会议厅位于楼上,并与一个走廊、楼梯和电梯相连。地面水平返回到原来的高度,恢复和显示历史轨道。轨道以移动金属建筑展台为特色。一个线性屋顶灯确保大量的自然光为历史仓库。
新附件卷:
新卷位于现有仓库的末端,保留了历史建筑的主立面。在建筑物的历史部分和新部分之间有一个玻璃卷,可以在历史仓库的尽头展示拱门。它是一个清晰的入口,允许充足的阳光进入大楼。新的附件还包括历史上的铁轨和移动金属建筑架,用作衣柜、小纪念品商店和现金桌。在新卷的正面有两扇玻璃门,模仿历史大门的形状和大小。它们允许大量铁路车辆进入,并确保与咖啡馆露台的连接。新附着物的入口处也可作为展厅的延续,使用相同的移动金属结构展台。
Firm NRJA
Type Cultural › Museum
STATUS Concept
SIZE 5000 sqft - 10,000 sqft
BUDGET $500K - 1M
keywords:architecture, architecture news, interiors, interior design, portfolio, spec, brands, marketplace, products Latvian Railway History Museum
关键词:建筑,建筑新闻,室内设计,组合,规格,品牌,市场,产品拉脱维亚铁路历史博物馆
客服
消息
收藏
下载
最近














