查看完整案例


收藏

下载
© Julien Forthomme
朱利安·福索姆
“.。我们想要一座看起来像我们自己的房子,它似乎是为我们建造的,是在我们选择的土地上建造的,它的价格是我们估计的公平和合适的。
«.. we would like a house that looks like us, that seems made for us, on the land that we chose and for a price that we estimate fair and appropriate. »
要实现建筑的“简单”生产,往往需要复杂的自反工作。限制所有建筑成本-地基、结构、屋顶等。-我们设想了一个紧凑和合理的统一,它占用最少的足迹,将建筑物向上延伸到叠加功能,通过室内空间带来光,并获得对周围景观的最大程度的解读。
Realizing a “simple” production of architecture often requires a complex reflexive work. To limit all construction costs - foundations, structure, roofing, etc. - we have imagined a compact and rational unity that occupies a minimal footprint and stretches the building upward to stack functions, bring light through the interior spaces and to get a maximum degree of reading of the surrounding landscape.
© Julien Forthomme
朱利安·福索姆
该地块的自然坡度强烈地制约了功能的位置;因此,在一楼方便地建立了与街道直接相连的通道。入口大厅被认为是项目不同层次之间的连接区域,由于它的大海湾,从南方的曝光率中受益,在较低的层提供照明。
The natural slope of the parcel has strongly conditioned the position of functions; thus the access is conveniently created on the ground floor, which is directly connected to the street. The entrance hall, conceived as an area of connectivity between the different levels of the project, offers lighting at the lower level thanks to its large bay, which benefits from southern exposure.
Axonometric
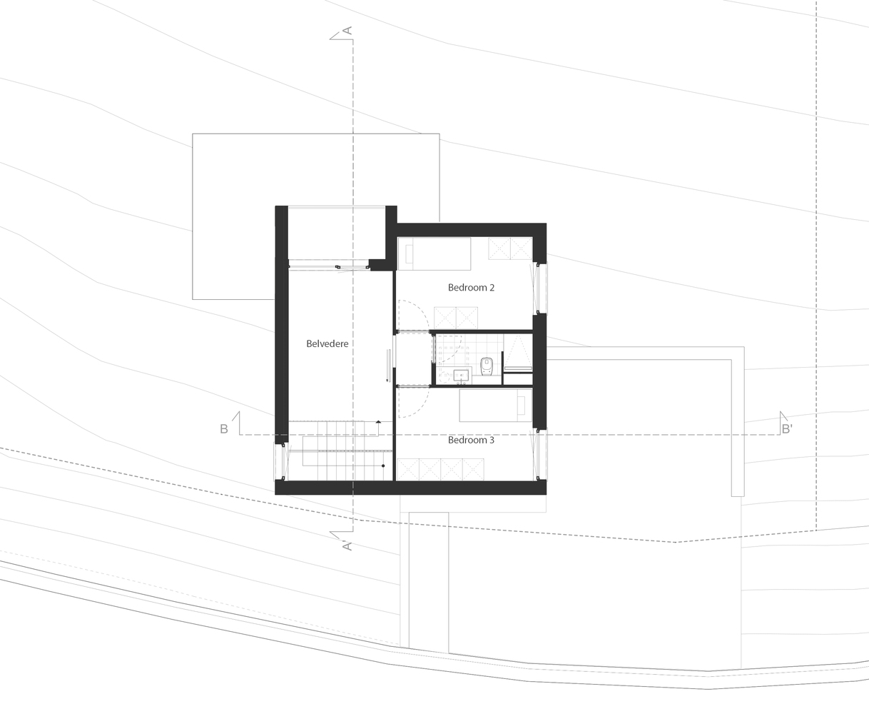
父母的空间,靠近门厅,但与楼梯相连,占据了底层。这间半埋的起居室被设计成一个亲密而明亮的空间,与花园直接相连。顶层,完全为儿童服务,组织在一个公共区域,在那里人们可以享受从社区的高度全景。
The parents' space, closed to the entrance hall but connected to the staircases, occupies the ground floor. The half-buried living room has been designed as an intimate and luminous space, directly connected to the garden. The top floor, entirely dedicated to children, is organized around a common area, where one can enjoy a panoramic view from the height of the neighborhood.
© Julien Forthomme
朱利安·福索姆
至于黑色的石板,这加强了项目的清醒和渴望的身份,同时定义了建筑的景观。一些小木箱也被添加到主板上,强调入口和顶层的露台,认为这是反映这座小观景台与其环境之间相互作用的两种截然不同的气氛。
As for the black slates, this reinforces the sober and desired identity of the project, while defining the building in the landscape. Some small wooden boxes are also added to the main block to emphasize the entrance and the terrace of the top floor, thought as two contrasting atmospheres that reflect the interaction between this small belvedere and its environment.
Elevation 01
Elevation 01
Elevation 03
Elevation 03
从简单的数量和适度的预算开始,在一个将丰富性和复杂性结合在一起的项目中创建了大量的氛围和视角。
Starting from a simple volume and a modest budget, a multitude of atmospheres and perspectives have been created in a project that brings richness and complexity together.
© Julien Forthomme
朱利安·福索姆
Architects URBAN architectes
Location Assesse, Belgium
Architect in Charge Anthony Seutin
Area 193.0 m2
Project Year 2017
Photographs Julien Forthomme
Category Houses
客服
消息
收藏
下载
最近



























