查看完整案例


收藏

下载
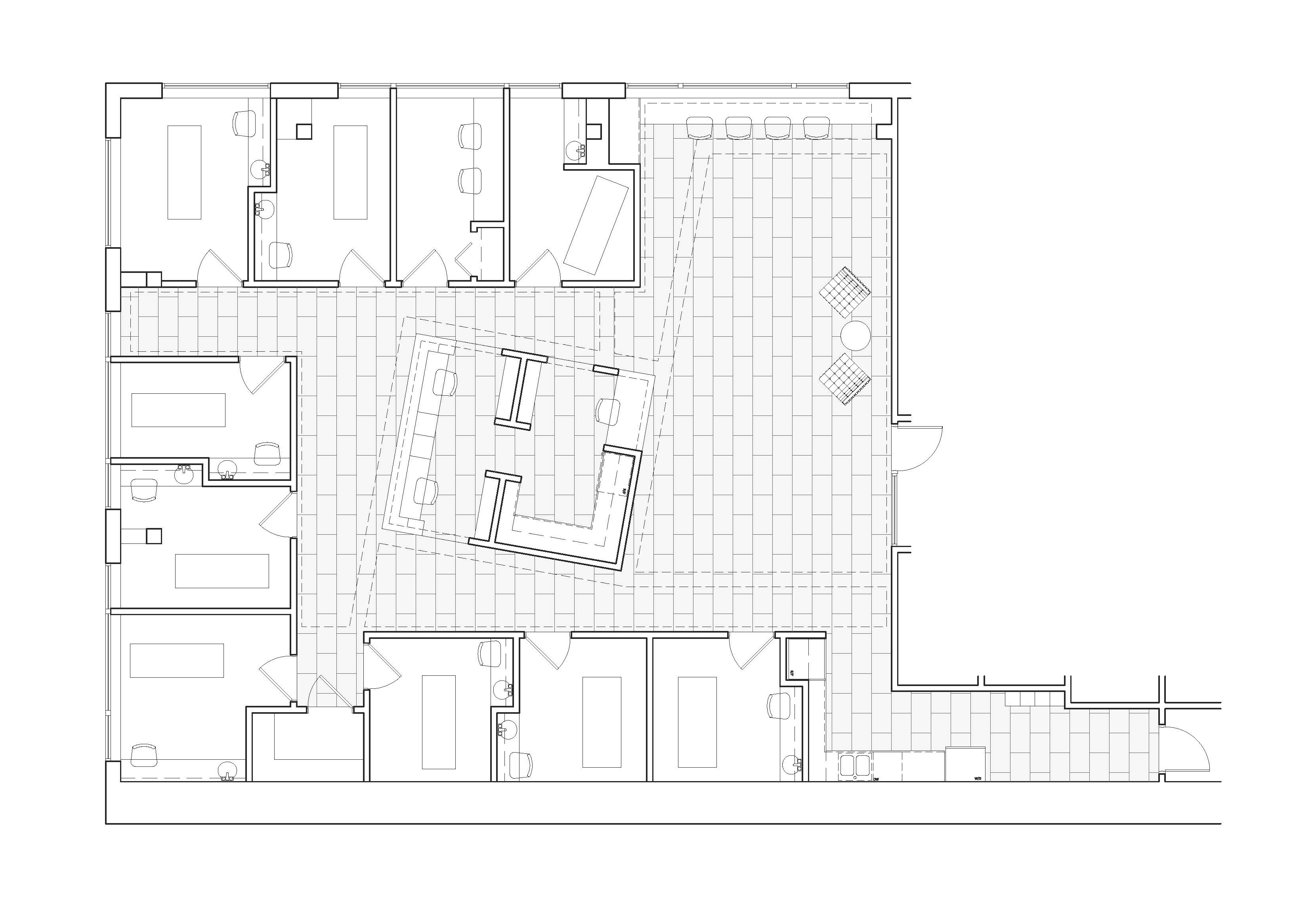
这个项目是一个简单的并列和约束练习。一个中央旋转立方体被放置在空间的中心-一个在白色区域中的多面胡桃的图形。住宅接待和办公的所有关键操作功能,立方体作为一个视觉钥匙在空间和一个目标的方向。病人和工作人员在进入、接受治疗和离开空间时都会围绕着它。
Firm ELLIPSIS
Type Government + Health › Medical Facility Hospitality + Sport › Wellness/Spa
STATUS Built
YEAR 2017
SIZE 1000 sqft - 3000 sqft
keywords:architecture, architecture news, interiors, interior design, portfolio, spec, brands, marketplace, products CDAM
关键词:体系结构、体系结构新闻、内部设计、内部设计、产品组合、规格、品牌、市场、产品CBAM
客服
消息
收藏
下载
最近









