查看完整案例


收藏

下载

翻译
Name: Restaurant Lunar
Concept: Tranquil
Gross Built Area: 260 square meters
Address: No.222 West Jianguo Road, Shanghai, China
Client: Opposite Group
Completion Year: 2020
Photographer: Wen Studio
Design director: Yifan Wu, Mengjie Liu
Space designer: Hongchen Lin, Alex Zeng, Nectarine Yi
Furniture brand: MATZform
Lighting brand: Herman Miller
Painting: RIALTO
Terrazzo: Agglotech
Wood Sheet: Tabu Veneer, B:Sanfoot
Florist: Maggie Mao
Lunar: Back to Nature
Sò Studio creates the space in the hope of conveying a sense of tranquility and comfort, drastically different from the bustling and dazzling city chores. The interior design is not only focused on the Chinese traditional structure details but also pay attention to the big picture of the beauty aesthetic. Coheres the ambiance with oriental design basics to an appropriate scale, integrating geometry ratio.
Lunar is a Modern Chinese restaurant situated inside a standalone villa at the heart of Shanghai on West Jianguo Road, which is running by opposite group and chef Johnston Teo. Termed Modern Chinese, the cuisine at Lunar is to celebrate the quintessential way of Chinese dining. The namesake pays homage to the Chinese lunar calendar. Resonating with the lunar customs is essential to the ethos of dining experience design. Embracing the seasonality and terroir is at its core.
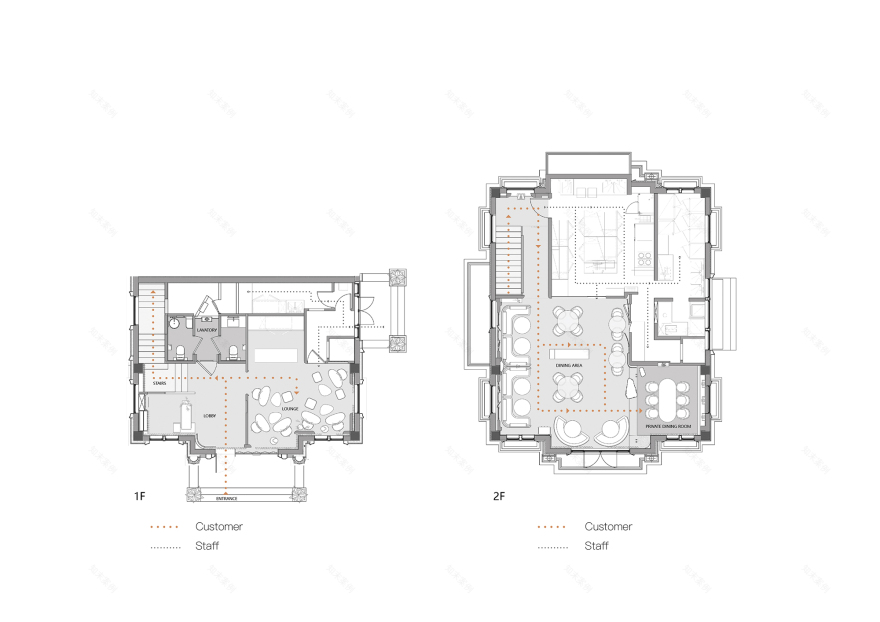
The tea stall is located on the first floor. The soft lighting showered over the shoulder, conveying a sense of comfort, combines with the scent of tea brick and bamboo curtain immerses one in a moonlight night the moment of stepping in.
Ascending along the stairs, the passing pebble-paved trail would land one on the second floor of Lunar. A unique hanging cornice, made possible by the outlining curves of classical Jiangnan garden fusing into the architectural structure of the space, guides the way connecting to the dining area and private dining room.
The mural hand painting renders orange fluorescence like moonlight shadow, echoing the shooting tea stall on the first floor. Collaborating with the florist and designer Maggie Mao to add an orange haze to the space, the small and delicate decoration adds a touch of Zen in the simplicity.
The most important material in the whole space is matte surface. Without excessive reflection, conveying calm and beauty through the texture and touch.
客服
消息
收藏
下载
最近


































