查看完整案例


收藏

下载

翻译
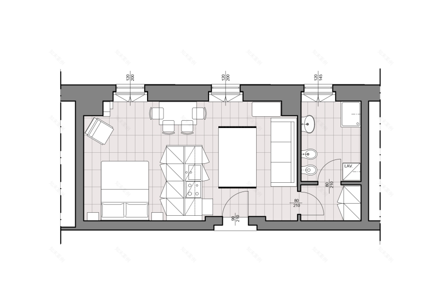
Piccolo appartamento di 55/60 mq, studiato nei minimi particolari e reso funzionale in tutte le sue parti. La cucina e il mobile della camera da letto, progettati su misura, dividono il locale principale in due ambianti, la zona giorno e la zona notte, senza la realizzazione di pareti divisorie, mantenendo così la sensazione di un unico spazio ma con due funzioni ben distinte. Gli ambienti chiari e luminosi sono stati vivacizzati con arredo colorato e moderno. Inoltre i clienti hanno voluto finire l'arredamento con quadri/stampe raffiguranti la storica competizione automobilistica italiana. Da qui arriva il nome dell'appartamento: Dreaming Mille Miglia"
客服
消息
收藏
下载
最近

















