查看完整案例


收藏

下载

翻译
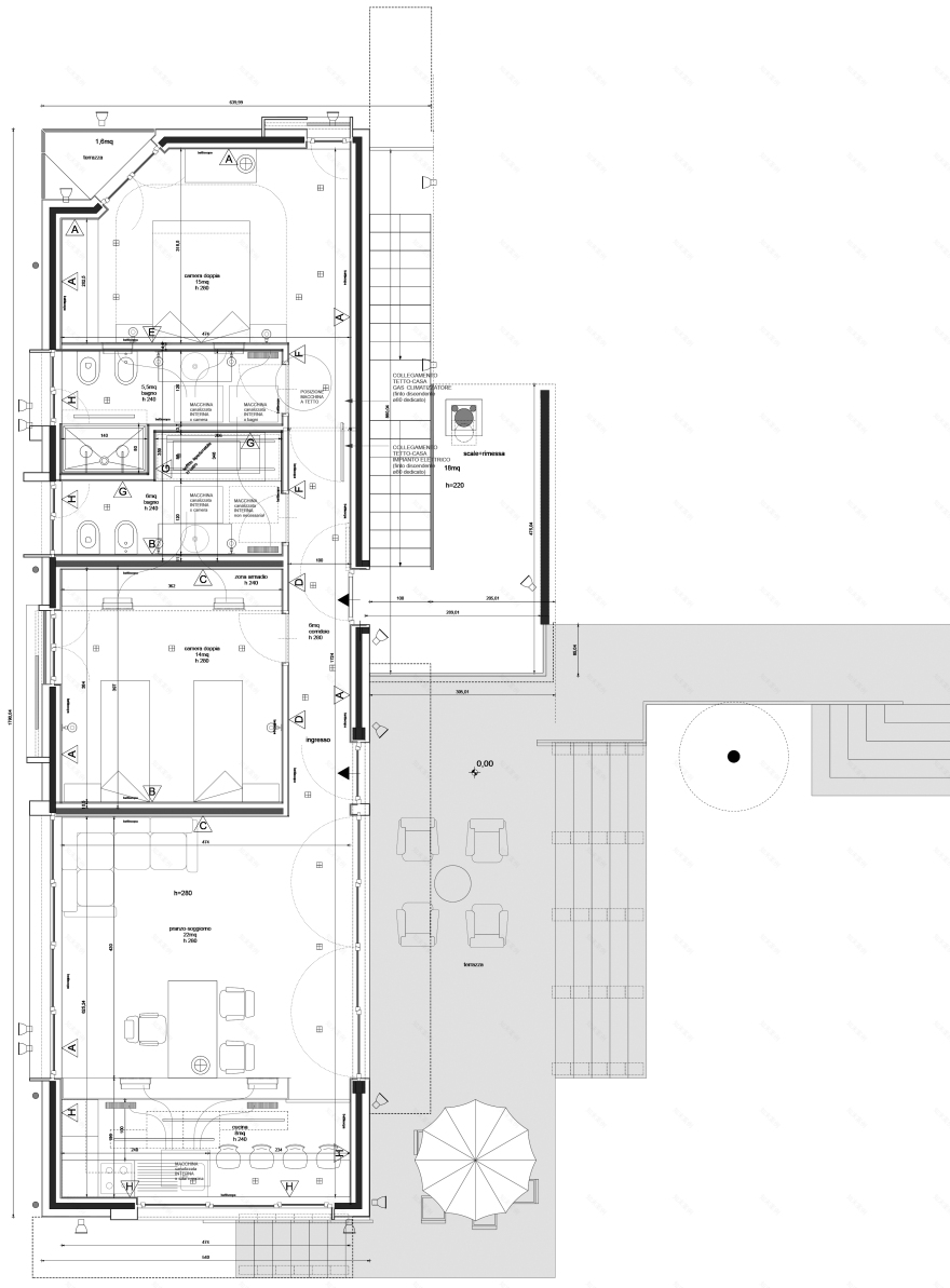
Costruita nel giardino di una villa anni '70 di cui dieci anni prima, per la medesima committenza, ne era stato curato il progetto di riqualificazione, la casa per ospiti è un elemento architettonico inedito per questo contesto. La nuova struttura come un padiglione dialoga con la villa attraverso il suo rapporto con il giardino. Immersa nel verde, si posiziona ai margini del lotto, di lato rispetto alla villa e si organizza strutturalmente e funzionalmente in modo autonomo.
Il progetto interpreta la storia della famiglia e parla di nuovi modi di abitare, di convivere e condividere gli spazi domestici. Nella richiesta del committente di uno specifico spazio dell’ospitalità abbiamo letto un modo diverso e più attuale dello stare in famiglia, rispettoso dell’intimità dei singoli nuclei, delle diverse abitudini e degli stili di vita che da una parte permangono e dall’altra inevitabilmente si modificano e si mescolano con altre culture. Un rispetto che non è solo generazionale.
Su una struttura in cemento armato brut che si inserisce nel dislivello del giardino al fianco della villa è stata appoggiata la piccola “boîte”, una scatola con un’anima in legno composta da pannelli in Xlam sui quali un pantografo ha disegnato le bucature come su di un foglio di carta. Tagli orizzontali e verticali si aprono liberamente, là dove c’è uno sguardo, un panorama o un orizzonte o per orientare lo sguardo verso il cielo e catturare la luce. I carter in ferro li incorniciano come fossero dei quadri e aggettando, insieme alle linee verticali dei discendenti e alle ombre orizzontali delle tettoie, modellano e disegnano tridimensionalmente le facciate della casa-padiglione, come per gioco.
Una grande vetrata si apre completamente sul giardino, senza guardare direttamente la villa padronale, ma garbatamente ponendosi di sguincio. Il piano orizzontale in cemento dove è appoggiata la casa-padiglione, si allarga e diventa una terrazza che discende con i gradini sul prato. Qui lo spazio soggiorno, che è confine tra dentro e fuori, è per noi il luogo simbolo dell’incontro familiare.
客服
消息
收藏
下载
最近
















