查看完整案例


收藏

下载
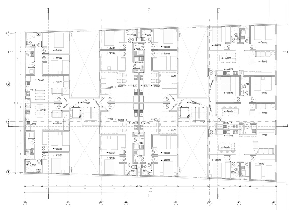
架构师提供的文本描述。该项目位于一个长方形地块上,其短边面向街道,位于墨西哥城对社会住房需求很高的地区。42个单元被安置在三座塔楼中,为每套公寓提供内部景观和自然通风,与露台上方的两座垂直核心和桥梁相连。
Text description provided by the architects. The project is located on a rectangular plot with its short side facing the Street, in an areas with a high demand of social housing in Mexico City. The 42 units are placed in three towers, generating interiorcourtyards for views and natural ventilation for each apartment, connected with tow vertical cores and bridges above the patios.
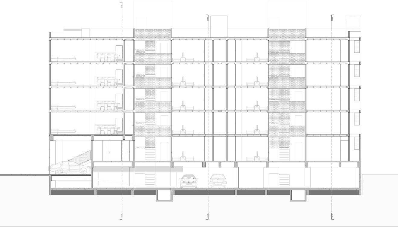
Ground Floor
停车层结构采用钢筋混凝土结构,将荷载传递给以上五层砖墙。
The structure on the parking level is made of reinforce concrete, transferring the loads to masonry brick walls on the fifth levels above.
© Rafael Gamo
拉斐尔·贾莫
砌体砖墙作为结构的一部分,对传统的砖墙进行重新诠释,模糊了结构与装饰之间的界限,在工程中起着重要的作用。
The masonry brick walls play an important role on the project as they are part of the structure and re-interpret the traditional brick wall, blurring the boundary between structure and ornament.
© Rafael Gamo
拉斐尔·贾莫
使用一个单一的单位,赤泥手工砖块,我们能够产生一个异质的一致性,在正面,创造墙壁是敏感的阴影和灯光。
With the use of a single unit; red mud artisanal brick we were able to produce a heterogeneous coherence in the facades, creating walls that are sensible to shadows and lights.
该项目的限制因素,如预算、材料、结构和命运,被视为机遇,传统建筑技术几乎没有变化,产生了新的空间品质,符合当地的审美,产生了新的选择和技术之间的关系-一种传统。
The constrains of the project such as; budget, materials, structure and destiny where conceived as opportunities and with few mutations of the traditional construction techniques, which generated new spatial qualities that responds to the local aesthetic, producing new alternatives and relations between technology an tradition.
© Rafael Gamo
拉斐尔·贾莫
客服
消息
收藏
下载
最近





















