查看完整案例


收藏

下载
摄影作品:Yano Toshiyuki Yano
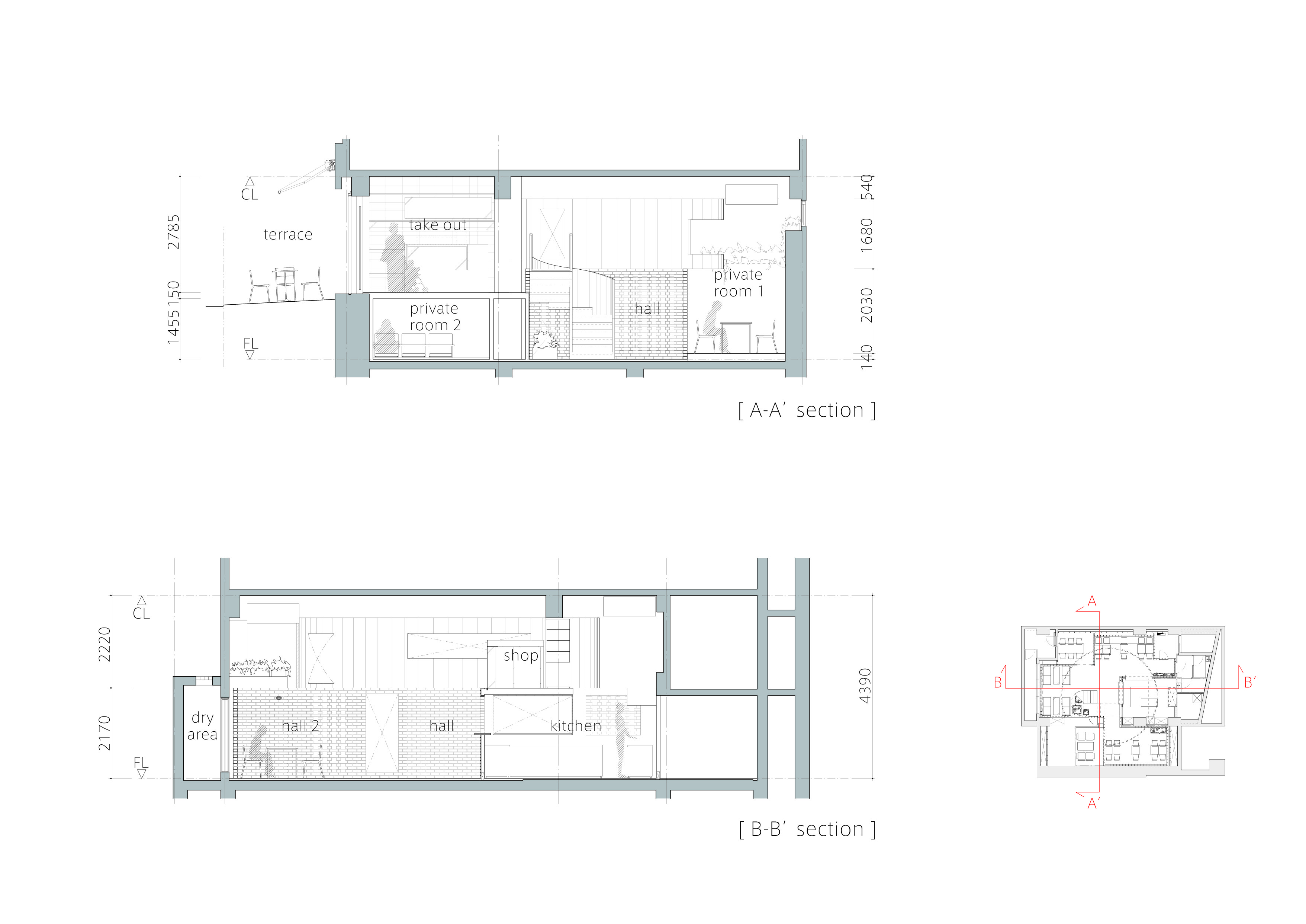
这个项目是为吉玉街的一家有机餐厅设计的,该餐厅距离东京最大的公园之一Komazawa奥林匹克公园仅需一小段路程。这家餐厅位于一栋三层公寓楼的底层,地下半层。
餐厅有三个基本功能:外卖小酒馆、有机食品店和餐厅。最显著的特色在于其楼层,比入口的地面低1.6米。这意味着室内天花板的高度是4.39米。
我们设计的出发点是研究本卷中三种功能的排列。通过将餐厅放置在半地下楼层,外卖柜台在地面前入口,商店从外卖柜台斜移,我们可以让光线从上面的正面光圈进入餐厅区域。商店空间比外卖空间高0.56米,因为厨房正好在它下面。
每个功能有三个楼层,所以人们在空间中上下移动。我们在上面和下面的空间中建造了不同的墙壁,以不同的方式划分空间,这样人们就可以体验到不同的环境,并对其他的空间产生好奇。
在上面的空间里,一堵白色的墙遮住了原有的墙壁和设备,比如空调系统和管道。墙壁也作为一个框架,强调图形,植物或内部风景的餐厅。这堵墙围绕着楼梯,在空间内部勾画出一个巨大的空隙。在较低的空间里,你仍然可以感觉到你头上漂浮着的白色墙壁的形状,这与被砖墙隔开的餐厅楼层的计划有很大的不同。砖墙多次向右转弯,形成内部的厅堂空间。它还形成了一个私人房间,厨房和储藏室之间的砖墙和原来的墙外。大厅空间被划分为三个地方,但它们同时连接。我们分发小种植园,这样它们就可以从室内的任何地方看到。
Firm sinato
Type Hospitality + Sport › Restaurant
YEAR 2011
keywordsarchitecture, architecture news, interiors, interior design, portfolio, spec, brands, marketplace, products +green
关键词建筑,建筑新闻,室内设计,组合,规格,品牌,市场,产品绿色
客服
消息
收藏
下载
最近






















